Eladó ház - Kisnémedi

árcsökkenés!
Árcsökkenés
KAPCSOLAT
Gere Géza


+36 70 558

hesu52@

Az időpont kérés naptár ikonja
IDŐPONTOT KÉREK
A visszahívás kérés telefon ikonja egy azt körbe ölelő nyíllal
VISSZAHÍVÁST KÉREK
Ajánlom egy ismerősömnek ikon
AJÁNLOM EGY ISMERŐSÖMNEK
Facebook megosztás ikon
MEGOSZTÁS

KAPCSOLATFELVÉTEL

Küldés

Az üzenetet sikeresen elküldtük!
Hiba történt!
INGATLAN ADATAI

Ingatlan jellege

családi ház

Belső terület

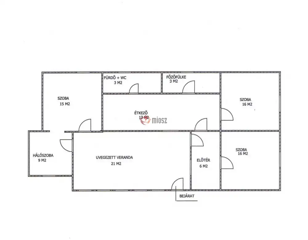
81 m²

Telek terület

1300 m²

Tájolás

dél, délkelet

Építési állapot

használt

Építési mód

vegyes

Szobák száma

3+1 félszoba

Szobák elhelyezkedése

külön nyílik min. 2 szoba

Terasz

18 m²

Épület szintje

1.

Épült

kb. 1962

Ingatlan állapot

kívül: részben felújítandó
belül: átlagos

Ablak szerkezete

2 rétegű thermoplan

Fűtés

gázkonvektor

Komfort

összkomfort

Parkolás

van önálló garázs

Közműállapot

csatorna: bekötve
gáz: bekötve
villany: bekötve
víz: bekötve

Energetika

E 2024:

Az időpont kérés naptár ikonja
HTML
Az időpont kérés naptár ikonja
PDF
Eladó ház
Ingatlan azonosító:
12999_bhv

Pest megye, Kisnémedi

Irányár

30 M Ft
(370.37 E Ft/㎡)

Szobák

3+1 félszoba

Terület

81 m²

Telek terület

1300 m²
INGATLAN LEÍRÁSA
Kisnémedi csendes utcájában, családi ház eladó!

ÓRIÁSI ÁRZUHANÁS 34. 9 M Ft-ról - 30 M Ft-ra.

Váctól 17 km-re Kisnémediben a festői szépségű Pest megyei településen, a központ közelében 1300 m2-es belterületi telken, nettó 81 m2 hasznos alapterületű, ERŐSEN FELÚJÍTÁSRA SZORULÓ, 3 és fél szobás családi kertes ház eladó!

Az ingatlan betonúton megközelíthető 5-7 perc sétatávolságra a központtól.

A családi ház vegyes falazatú (kő, tégla, vályog), fa födémes cserép borítással rendelkezik.

Az öröklés után a tulajdonos elkezdte felújítani a házat, az ingatlanban egy szoba kivételével a teljes villanyhálózat át lett vezetékezve.

Az utcafronton található egyik szoba még nem lett felújítva, kompletten felújításra szorul.

Fűtése gáz konvektorokkal megoldott, de kéménye van a háznak és régebben kályhával fűtötték a helyiségeket.
Az ablakok nagy része műanyag nyílászárókra lett cserélve.

A házhoz tartozó hatalmas beépített teraszból (18-20 m2) egy gyönyörű nappali könnyű szerrel kialakítható.

Parkolási lehetőség önálló, saját kb. 16 m2-es garázsban lehetséges. A locsoláshoz ásott kút áll rendelkezésre a kertben.

Megvásárlását követően azonnal elkezdhetik a ház felújítását, ez már a Vevő dolga lesz!

Az ingatlan csendes, nyugodt vidéki életre vágyóknak kiváló lehetőséget nyújt, használható állandó lakhatásra vagy üdülési célokra is a felújítás után!

Kisnémedi község ellátottsága nagyon jó, hiszen a közelben megtalálunk mindent, amire a mindennapi életben szükség van.

ABC, posta, orvosi, gyermekorvosi rendelő, patika, kifőzde, pizzéria.

A közvilágítás számára esztétikus fém kandelábereket helyeztek el.

Az utca aszfaltburkolatát felszedték, helyette az utat és a járdákat térkő burkolattal látták el, a település többi utcájához hasonlóan.

A remek közbiztonságnak örvendő település dinamikusan fejlődik, a közterületei térkövezettek, az intézményeit, szolgáltató épületeit, parkjait gyönyörűen karbantartják, felújítják.

Az autóbusz közlekedés Vác és Budapest felé is megfelelően szervezett.

Ajánlom olyan családnak, akik szeretik a nyugalmas falusi életvitelt.

Irányára: 30. 000. 000.- Ft

További információért és a megtekintéssel kapcsolatban, várom megtisztelő hívását!

Amiben még segíteni tudok:

- energetikai tanúsítvány készítése 72 órán belül
- ingyenes hitelügyintézés
- jogi háttér
- földhivatali ügyintézés
- értékbecslés, piaci ármeghatározás
- költöztetés, lomtalanítás
- ajánlatok küldése e-mailben országos adatbázisból.

Tel: +36705581160


INGATLAN ADATAI

Ingatlan jellege
családi ház
Belső terület
81 m²
Telek terület
1300 m²
Tájolás
dél, délkelet
Építési állapot
használt
Építési mód
vegyes
Szobák száma
3+1 félszoba
Szobák elhelyezkedése
külön nyílik min. 2 szoba
Terasz
18 m²
Épület szintje
1.
Épült
kb. 1962
Ingatlan állapot
kívül: részben felújítandó
belül: átlagos
Ablak szerkezete
2 rétegű thermoplan
Fűtés
gázkonvektor
Komfort
összkomfort
Parkolás
van önálló garázs
Közműállapot
csatorna: bekötve
gáz: bekötve
villany: bekötve
víz: bekötve
Energetika
E 2024:
TÉRKÉP

Pest megye, Kisnémedi

Hitelkalkulátor


KAPCSOLAT
Gere Géza
Gere Géza


+36 70 558 1160

hesu52@gmail.com

KAPCSOLAT
Gere Géza

+36 70 558

hesu52@

Az időpont kérés naptár ikonja
IDŐPONTOT KÉREK
A visszahívás kérés telefon ikonja egy azt körbe ölelő nyíllal
VISSZAHÍVÁST KÉREK
Ajánlom egy ismerősömnek ikon
AJÁNLOM EGY ISMERŐSÖMNEK
Facebook megosztás ikon
MEGOSZTÁS

KAPCSOLATFELVÉTEL

Küldés

Az üzenetet sikeresen elküldtük!
Hiba történt!
INGATLAN ADATAI

Ingatlan jellege

családi ház

Belső terület

81 m²

Telek terület

1300 m²

Tájolás

dél, délkelet

Építési állapot

használt

Építési mód

vegyes

Szobák száma

3+1 félszoba

Szobák elhelyezkedése

külön nyílik min. 2 szoba

Terasz

18 m²

Épület szintje

1.

Épült

kb. 1962

Ingatlan állapot

kívül: részben felújítandó
belül: átlagos

Ablak szerkezete

2 rétegű thermoplan

Fűtés

gázkonvektor

Komfort

összkomfort

Parkolás

van önálló garázs

Közműállapot

csatorna: bekötve
gáz: bekötve
villany: bekötve
víz: bekötve

Energetika

E 2024:

Az időpont kérés naptár ikonja
HTML
Az időpont kérés naptár ikonja
PDF

Hasonló ingatlan hírdetések

Eladó családi ház, vagy kertes ház hirdetést keres Kisnémedi területén?
Jelenleg nincsenek hasonló aktuális ajánlatok Kisnémedi településen.
Tekintse meg további Pest megyei ajánlatainkat !

eladó ikerház, Pilis

eladó ikerház

Pilisen felújított tehermentes ikerházfél eladó

Pest megye, Pilis
A Teleki és Fia Ingatlan értékesítésre kínálja Pilisen csendes családiházas utcában ezt a 350 nm.-es elkerített saját telekrésszel rendelkező 56 nm.es belső hasznos alapterületű ikerház első felét. ...
Belső terület
56 m²
Telek terület
350 m²
Szobák
3

44.9 M Ft

CSOK igényelhető
CSOK igényelhető
eladó új építésű családi ház, Nagykovácsi

eladó új építésű családi ház

CSEND, NYUGALOM, FÉNY, KULCSRAKÉSZ CSALÁDI HÁZ – ENERGIATAKARÉKOS OTTHON NAGYKOVÁCSIBAN, AZ AMERIKAI ISKOLA KÖZELÉBEN!

Pest megye, Nagykovácsi, Ófalu
CSEND, NYUGALOM, FÉNY, KULCSRAKÉSZ CSALÁDI HÁZ – ENERGIATAKARÉKOS OTTHON NAGYKOVÁCSIBAN, AZ AMERIKAI ISKOLA KÖZELÉBEN! A TÉR, A FÉNY ÉS A NYUGALOM TÖKÉLETES EGYENSÚLYA – A+++ ENERGIABESOROLÁSÚ INGA...
Belső terület
210 m²
Telek terület
1 m²
Szobák
6

294 M Ft

eladó nyaraló, Szigetszentmárton

eladó nyaraló

Pest megye, Szigetszentmárton, Erdősor utca
Telekár alatt eladó dunaparti nyugalom Szigetszentmártonban! Eladásra kínálunk egy ritka lehetőséget Szigetszentmárton csendes, Dunapart közeli részén. Az ingatlan 317 m²-es telken helyezkedik el...
Belső terület
30 m²
Telek terület
317 m²
Szobák
1

22.5 M Ft

eladó családi ház, Szigetszentmiklós

eladó családi ház

Pest megye, Szigetszentmiklós, Kavicsbánya
SZIGETSZENTMIKLÓS KAVICSBÁNYA RÉSZÉN MEGVÉTELRE KÍNÁLUNK, EGY KÖZEPES ÁLLAPOTÚ, 34 M2 LAKÓTERŰ 2 SZINTES, KÖZVETLEN VÍZPARTI NYARALÓT, TERASSZAL, ÉS SAJÁT STÉGGEL! AZ INGATLAN SZÁRAZFÖLDÖN MEGKÖZEL...
Belső terület
51 m²
Telek terület
150 m²
Szobák
2

27.9 M Ft

vízparti!
Vízparti
eladó új építésű családi ház, Erdőkertes

eladó új építésű családi ház

Pest megye, Erdőkertes, Háromház
Eladó ÚJ ÉPÍTÉSŰ családi ház Erdőkertesen! BERUHÁZÓI ÁRON! Eladó Erdőkertes Háromház részén nettó 113 nm-es, amerikai konyhás nappali + 4 szobás földszintes családi ház 1100 nm-es telekkel. ...
Belső terület
126 m²
Telek terület
1100 m²
Szobák
5

94.9 M Ft

Új építésű!
Új építésű
eladó új építésű családi ház, Erdőkertes

eladó új építésű családi ház

Pest megye, Erdőkertes
Eladó ÚJ ÉPÍTÉSŰ családi ház Erdőkertesen! BERUHÁZÓI ÁRON! A földszintes, nettó 113 nm-es családi ház Erdőkertes Topolyos részén, 955 nm-es telken fog épülni. Jelenleg a telek tekinthető meg,...
Belső terület
126 m²
Telek terület
955 m²
Szobák
5

94.9 M Ft

Új építésű!
Új építésű
eladó nyaraló, Ráckeve

eladó nyaraló

Pest megye, Ráckeve
Privát nyugalom a Duna partján – Somlyószigeti hétvégi ház eladó! Eladásra kínálunk egy hangulatos, 30 m²-es hétvégi házat Somlyósziget egyik legcsendesebb, legbensőségesebb részén! A házhoz tartoz...
Belső terület
30 m²
Telek terület
373 m²
Szobák
1+1

22.9 M Ft

eladó családi ház, Ráckeve

eladó családi ház

Pest megye, Ráckeve
Eladó családi ház a Duna-part közelében, Ráckevén – hangulatos otthon, gyönyörű kerttel! Megvételre kínálunk Ráckevén, a Duna-parttól pár perc sétára, egy 540 m²-es telken elhelyezkedő, 1980-as éve...
Belső terület
82 m²
Telek terület
540 m²
Szobák
3

85.9 M Ft

Pest megye - Kisnémedi
Pest megye - Kisnémedi
Pest megye - Kisnémedi
Pest megye - Kisnémedi
Pest megye - Kisnémedi
Pest megye - Kisnémedi
Pest megye - Kisnémedi
Pest megye - Kisnémedi
Pest megye - Kisnémedi
Pest megye - Kisnémedi
Pest megye - Kisnémedi
Pest megye - Kisnémedi
Pest megye - Kisnémedi
Pest megye - Kisnémedi
Pest megye - Kisnémedi
Pest megye - Kisnémedi
Pest megye - Kisnémedi
Pest megye - Kisnémedi
Pest megye - Kisnémedi
Pest megye - Kisnémedi
Pest megye - Kisnémedi
Pest megye - Kisnémedi
Pest megye - Kisnémedi
Pest megye - Kisnémedi
Pest megye - Kisnémedi
Pest megye - Kisnémedi
Pest megye - Kisnémedi