Eladó új építésű téglalakás - Paks

alkalmi vétel
Alkalmi vétel
KAPCSOLAT
Görög Zoltán


+36 30 517 2

gorogzoltan@

Az időpont kérés naptár ikonja
IDŐPONTOT KÉREK
A visszahívás kérés telefon ikonja egy azt körbe ölelő nyíllal
VISSZAHÍVÁST KÉREK
Ajánlom egy ismerősömnek ikon
AJÁNLOM EGY ISMERŐSÖMNEK
Facebook megosztás ikon
MEGOSZTÁS

KAPCSOLATFELVÉTEL

Küldés

Az üzenetet sikeresen elküldtük!
Hiba történt!
INGATLAN ADATAI

Ingatlan jellege

téglalakás

Belső terület

65 m²

Tájolás

dél, délkelet

Építési állapot

új

Építési mód

tégla

Szobák száma

3 szoba

Kert

(közös kerthasználat)

Erkély

5.27 m²

Emelet

1.

Épület szintje

földszint + tetőteres.

Épült

2025

Lift

nincs

Ingatlan állapot

kívül: új
belül: új

Klíma

van

Szigetelés

10 cm

Ablak szerkezete

3 rétegű thermoplan

Fűtés

hőszivattyús

Komfort

összkomfort

Parkolás

van önálló garázs

Kilátás

udvarra

Energetika

nincs megadva

Az időpont kérés naptár ikonja
HTML
Az időpont kérés naptár ikonja
PDF
Eladó új építésű téglalakás
Ingatlan azonosító:
929_gz

Tolna megye, Paks, (Lakótelep), Zápor utca

Irányár

75 M Ft
(1.15 M Ft/㎡)

Szobák

3 szoba

Emelet

1

Terület

65 m²
INGATLAN LEÍRÁSA
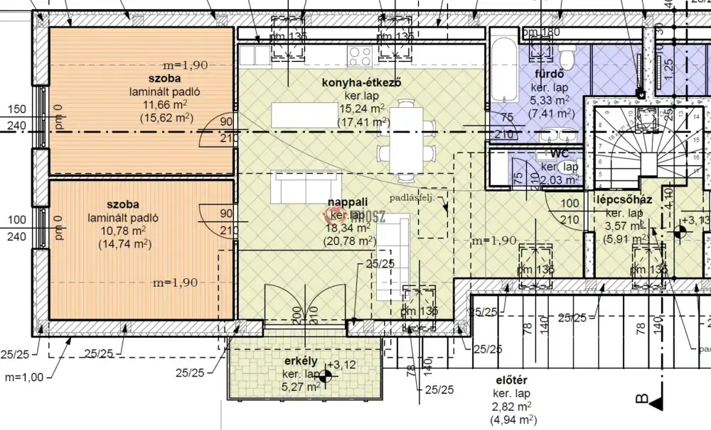
Paks, új építésű 3 szobás lakás ELADÓ!
Pakson, a lakótelep szomszédságában, kedvelt családi házas övezetben, első emeleti 65 m2-es lakás megvásárolható.
A lakást két világos hálószobával, egy tágas nappali-konyha-étkezővel, kamrával, egy kényelmes méretű fürdőszobával, és vendég WC-vel tervezik kivitelezni.
Az építkezés 2025. januárban kezdődik, az ingatlanok várható birtokbaadása 2025 év vége.
A kiváló elhelyezkedésű és belső elosztású kertkapcsolatos lakás fűtését és hűtését hőszivattyú biztosítja padlófűtés és mennyezet hűtés segítségével.
A jó minőségű 3 rétegű üvegezéssel rendelkező ablakoknak és a 10 cm grafitos hőszigetelésnek köszönhetően a lakás rezsije nagyon kedvező.
Parkolás az udvarban kényelmesen lehetséges, de igény esetén zárt garázs is vásárolható.
Tökéletes választás új otthonának, vagy befektetésnek is.
A beruházás kezdeti szakaszában kedvező finanszírozási konstrukcióban még kiválasztható új otthonát.
A megvásárolt ingatlan belső kialakítása, szaniterek, burkolatok, belső nyílászárók színe és fajtája egyénileg választható.

INGATLAN ADATAI

Ingatlan jellege
téglalakás
Belső terület
65 m²
Tájolás
dél, délkelet
Építési állapot
új
Építési mód
tégla
Szobák száma
3 szoba
Kert
(közös kerthasználat)
Erkély
5.27 m²
Emelet
1.
Épület szintje
földszint + tetőteres.
Épült
2025
Lift
nincs
Ingatlan állapot
kívül: új
belül: új
Klíma
van
Szigetelés
10 cm
Ablak szerkezete
3 rétegű thermoplan
Fűtés
hőszivattyús
Komfort
összkomfort
Parkolás
van önálló garázs
Kilátás
udvarra
Energetika
nincs megadva

Hitelkalkulátor


KAPCSOLAT
Görög Zoltán
Görög Zoltán


+36 30 517 2623

gorogzoltan@ingatlanpaks.hu

KAPCSOLAT
Görög Zoltán

+36 30 517 2

gorogzoltan@

Az időpont kérés naptár ikonja
IDŐPONTOT KÉREK
A visszahívás kérés telefon ikonja egy azt körbe ölelő nyíllal
VISSZAHÍVÁST KÉREK
Ajánlom egy ismerősömnek ikon
AJÁNLOM EGY ISMERŐSÖMNEK
Facebook megosztás ikon
MEGOSZTÁS

KAPCSOLATFELVÉTEL

Küldés

Az üzenetet sikeresen elküldtük!
Hiba történt!
INGATLAN ADATAI

Ingatlan jellege

téglalakás

Belső terület

65 m²

Tájolás

dél, délkelet

Építési állapot

új

Építési mód

tégla

Szobák száma

3 szoba

Kert

(közös kerthasználat)

Erkély

5.27 m²

Emelet

1.

Épület szintje

földszint + tetőteres.

Épült

2025

Lift

nincs

Ingatlan állapot

kívül: új
belül: új

Klíma

van

Szigetelés

10 cm

Ablak szerkezete

3 rétegű thermoplan

Fűtés

hőszivattyús

Komfort

összkomfort

Parkolás

van önálló garázs

Kilátás

udvarra

Energetika

nincs megadva

Az időpont kérés naptár ikonja
HTML
Az időpont kérés naptár ikonja
PDF

Hasonló ingatlan hírdetések

Eladó új építésű tégla-, vagy panellakás hirdetést keres Paks területén?
Tekintse meg további ajánlatainkat!

eladó panellakás, Paks

eladó panellakás

Tolna megye, Paks, (Lakótelep), Árnyas utca
Paks, Árnyas utcában 4. emeleti 2,5 szobás lakás ELADÓ! Az 57 m2-es ingatlan a képeken látható állapotban azonnal költözhető. Az épület szigetelt és a lakás minden ablaka is cserélve lett új hőszige...
Belső terület
57 m²
Szobák
2+1
Emelet
4

41.9 M Ft

eladó új építésű téglalakás, Paks

eladó új építésű téglalakás

Paks, Szent János utcában három szobás új építésű lakás ELADÓ!

Tolna megye, Paks, Szent János utca
Paks, Szent János utcában három szobás új építésű lakás ELADÓ! Az ingatlan egy új építésű 4 lakásos társasház 64 m2-es hátsó udvarra néző kertkapcsolatos lakása. A lakást az alaprajzon látható elren...
Belső terület
64 m²
Szobák
3
Emelet
földszint

80 M Ft

Új építésű!
Új építésű
eladó új építésű téglalakás, Paks

eladó új építésű téglalakás

Paks, Szent János utcában három szobás új építésű lakás ELADÓ!

Tolna megye, Paks, Szent János utca
Paks, Szent János utcában három szobás új építésű lakás ELADÓ! Az ingatlan egy új építésű 4 lakásos társasház 66 m2-es belső udvarra néző kertkapcsolatos lakása. A lakást az alaprajzon látható elren...
Belső terület
66 m²
Szobák
3
Emelet
földszint

79.5 M Ft

Új építésű!
Új építésű
eladó új építésű téglalakás, Paks

eladó új építésű téglalakás

Paks, Szent János utcában három szobás új építésű lakás ELADÓ!

Tolna megye, Paks, Szent János utca
Paks, Szent János utcában három szobás új építésű lakás ELADÓ! Az ingatlan egy új építésű 4 lakásos társasház belső udvarra néző kertkapcsolatos lakása. A lakást az alaprajzon látható elrendezés sze...
Belső terület
85 m²
Szobák
3
Emelet
földszint

89.9 M Ft

Új építésű!
Új építésű
eladó új építésű téglalakás, Paks

eladó új építésű téglalakás

Paks, Szent János utcában három szobás lakás ELADÓ!

Tolna megye, Paks
Paks, Szent János utcában három szobás lakás ELADÓ! Az ingatlan egy új építésű 4 lakásos társasház utcafrontján található. A lakást az alaprajzon látható elrendezés szerint a mai igényeknek megfelel...
Belső terület
68 m²
Szobák
3
Emelet
földszint

75 M Ft

CSOK igényelhető
CSOK igényelhető
eladó új építésű téglalakás, Paks

eladó új építésű téglalakás

Paks, óvárosában új építésű két hálószoba plusz nappalis lakás ELADÓ!

Tolna megye, Paks, Óváros
Paks, óvárosában új építésű két hálószoba plusz nappalis lakás ELADÓ! A bruttó 98 m2-es (nettó 86 m2) ingatlan egy kétlakásos társasház utcafrontján helyezkedik el. A lakások az alaprajzon látható k...
Belső terület
98 m²
Szobák
3
Emelet
földszint

79 M Ft

Új építésű!
Új építésű
eladó új építésű téglalakás, Paks

eladó új építésű téglalakás

Paks, óvárosában új építésű két hálószoba plusz nappalis lakás ELADÓ!

Tolna megye, Paks, Óváros
Paks, óvárosában új építésű két hálószoba plusz nappalis lakás ELADÓ! A bruttó 98 m2-es (nettó 86 m2) ingatlan egy kétlakásos társasház belső udvarra néző részén helyezkedik el. A lakások az alapraj...
Belső terület
98 m²
Szobák
3
Emelet
földszint

79 M Ft

garázzsal
Garázzsal
eladó új építésű téglalakás, Paks

eladó új építésű téglalakás

Modern tetőtéri lakás eladó

Tolna megye, Paks, (Óváros), Dózsa György út
Az újépítésű modern tetőtéri lakásban két különnyíló hálószoba található, tágas nappali-konyha-étkező egy légtérben, erkély, továbbá fürdőszoba és külön wc is rendelkezésre áll. A bruttó 72 m2-es laká...
Belső terület
72 m²
Szobák
3
Emelet
tetőtér

72 M Ft

Tolna megye - Paks
Tolna megye - Paks
Tolna megye - Paks
Tolna megye - Paks
Tolna megye - Paks
Tolna megye - Paks
Tolna megye - Paks
Tolna megye - Paks
Tolna megye - Paks
Tolna megye - Paks
Tolna megye - Paks
Tolna megye - Paks
Tolna megye - Paks
Tolna megye - Paks