Eladó új építésű téglalakás - Budapest, XIV. kerület

KAPCSOLAT
Homolya Gergely


+36 20 404

homolya.gergely@

Az időpont kérés naptár ikonja
IDŐPONTOT KÉREK
A visszahívás kérés telefon ikonja egy azt körbe ölelő nyíllal
VISSZAHÍVÁST KÉREK
Ajánlom egy ismerősömnek ikon
AJÁNLOM EGY ISMERŐSÖMNEK
Facebook megosztás ikon
MEGOSZTÁS

KAPCSOLATFELVÉTEL

Küldés

Az üzenetet sikeresen elküldtük!
Hiba történt!
INGATLAN ADATAI

Ingatlan jellege

téglalakás

Belső terület

32 m²

Tájolás

északnyugat

Építési állapot

új

Építési mód

tégla

Szobák száma

1 szoba

Emelet

2.

Épület szintje

4.

Épült

2026

Akadálymentes

igen

Lift

van

Ingatlan állapot

kívül: új
belül: új

Fűtés

hőszivattyús

Komfort

összkomfort

Kilátás

kertre

Energetika

A+:

Az időpont kérés naptár ikonja
HTML
Az időpont kérés naptár ikonja
PDF
Eladó új építésű téglalakás
Belső azonosító:
C201
Ingatlan azonosító:
350_pln

Budapest, XIV. kerület, Alsórákos

Irányár

65 M Ft
(2.03 M Ft/㎡)

Szobák

1 szoba

Emelet

2

Terület

32 m²
INGATLAN LEÍRÁSA
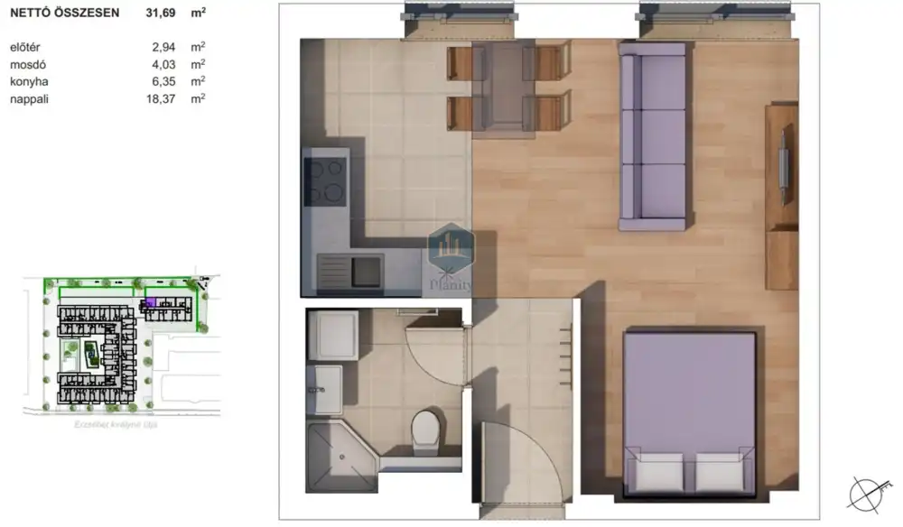
Zugló dinamikusan fejlődő részén, modern lakóparkban kínálunk eladásra egy 32 m²-es, egyszobás lakást.

A 2. emeleti, 32 m²-es lakás praktikus elrendezésének köszönhetően jól bútorozható, ideális választás első lakásnak vagy befektetésnek.

Az ingatlan egy tégla építésű, liftes társasházban helyezkedik el, 2026. júniusi átadással. A korszerű mennyezeti hűtés-fűtés rendszer egész évben kellemes hőérzetet biztosít, miközben az energiahatékony megoldások alacsony fenntartási költségeket eredményeznek.

A társasház -2 szintjén mélygarázs kerül kialakításra, fűtött lehajtóval, ahol igény szerint beállóhely és tároló vásárolható.

⚠️ Fontos: a lakás kizárólag készpénzes vásárlók számára érhető el.

Elhelyezkedés
Zugló fejlődő, egyre népszerűbb részén, jó közlekedéssel és infrastruktúrával.

Ideális választás
Első lakásnak vagy kiadásra – könnyen fenntartható, jól hasznosítható ingatlan.

INGATLAN ADATAI

Ingatlan jellege
téglalakás
Belső terület
32 m²
Tájolás
északnyugat
Építési állapot
új
Építési mód
tégla
Szobák száma
1 szoba
Emelet
2.
Épület szintje
4.
Épült
2026
Akadálymentes
igen
Lift
van
Ingatlan állapot
kívül: új
belül: új
Fűtés
hőszivattyús
Komfort
összkomfort
Kilátás
kertre
Energetika
A+:
TÉRKÉP

Budapest, XIV. kerület, Alsórákos

Hitelkalkulátor


KAPCSOLAT
Homolya Gergely
Homolya Gergely


+36 20 404 0393

homolya.gergely@planity.hu

KAPCSOLAT
Homolya Gergely

+36 20 404

homolya.gergely@

Az időpont kérés naptár ikonja
IDŐPONTOT KÉREK
A visszahívás kérés telefon ikonja egy azt körbe ölelő nyíllal
VISSZAHÍVÁST KÉREK
Ajánlom egy ismerősömnek ikon
AJÁNLOM EGY ISMERŐSÖMNEK
Facebook megosztás ikon
MEGOSZTÁS

KAPCSOLATFELVÉTEL

Küldés

Az üzenetet sikeresen elküldtük!
Hiba történt!
INGATLAN ADATAI

Ingatlan jellege

téglalakás

Belső terület

32 m²

Tájolás

északnyugat

Építési állapot

új

Építési mód

tégla

Szobák száma

1 szoba

Emelet

2.

Épület szintje

4.

Épült

2026

Lift

van

Ingatlan állapot

kívül: új
belül: új

Fűtés

hőszivattyús

Komfort

összkomfort

Kilátás

kertre

Energetika

A+:

Az időpont kérés naptár ikonja
HTML
Az időpont kérés naptár ikonja
PDF

Hasonló ingatlan hírdetések

Eladó új építésű tégla-, vagy panellakás hirdetést keres Budapesten a XIV. kerületben?
Tekintse meg további ajánlatainkat!

eladó panellakás, Budapest, XIV. kerület

eladó panellakás

Budapest, XIV. kerület, Nagyzugló
A...
Belső terület
48 m²
Szobák
2
Emelet
2

67 M Ft

eladó panellakás, Budapest, XIV. kerület

eladó panellakás

Vedd és vidd!

Budapest, XIV. kerület, Rákosfalva
Budapest XIV. kerületének egyik legnépszerűbb részén, a Füredi úti lakótelepen, Rákosfalván eladó egy 59nm-es, világos, kiváló elosztású, jó állapotú társasházi lakás. Az ingatlan 6.emeleti, benne ...
Belső terület
59 m²
Szobák
1+2
Emelet
6

72.5 M Ft

azonnal költözhető
Azonnal költözhető
eladó téglalakás, Budapest, XIV. kerület

eladó téglalakás

Budapest, XIV. kerület,
ÁRCSÖKKENÉS!! Zuglóban kínálok megvételre egy 34 nm-es egy szobás, világos, azonnal költözhető lakást három szintes, közös kertrésszel rendelkező téglaház első emeletén. A lakás körfolyosóról nyíl...
Belső terület
34 m²
Szobák
1
Emelet
1

46 M Ft

azonnal költözhető
Azonnal költözhető
eladó téglalakás, Budapest, XIV. kerület

eladó téglalakás

Budapest, XIV. kerület, Herminamező
Eladó (Bp.XIV.) Zuglóban az Amerikai és a Korong utca sarkánál egy régi villaépület első emeletén egy 4 szobás bútorozatlan napfényes lakás. A nappaliból nyílik egy nagy hálószoba, a folyosóról ped...
Belső terület
88 m²
Szobák
2+2
Emelet
1

129 M Ft

azonnal költözhető
Azonnal költözhető
eladó új építésű téglalakás, Budapest, XIV. kerület

eladó új építésű téglalakás

Budapest, XIV. kerület, Törökőr
A Mogyoródi úton valósul meg ez a modern, új építésű lakópark, amely parkosított belső kert köré szervezett kialakításával élhető lakókörnyezetet kínál a városi elhelyezkedés előnyei mellett. Az épül...
Belső terület
90 m²
Szobák
0
Emelet
földszint

126.03 M Ft + Áfa

eladó panellakás, Budapest, XIV. kerület

eladó panellakás

Budapest, XIV. kerület, Alsórákos, Csertő park
Eladó a 14. kerületben, Zuglóban, a Füredi lakótelepen, a Csertő park 2. szám alatti 15 emeletes panelházban, egy 6. emeleti, PANORÁMÁS, NAPSÜTÉSES, ABLAKOS KONYHÁVAL rendelkező, jó állapotú, ÚJ MŰANY...
Belső terület
55 m²
Szobák
2
Emelet
6

67.4 M Ft

eladó téglalakás, Budapest, XIV. kerület

eladó téglalakás

Budapest, XIV. kerület, Alsórákos, Szugló u.
Eladó egy különleges hangulatú, újszerű lakás hatalmas terasszal és saját zöld oázissal Egy 2021-ben átadott, modern társasház 3. emeletén kínálunk megvételre egy 75 m²-es, nappali + 2 szobás, déli...
Belső terület
75 m²
Szobák
3
Emelet
3

179 M Ft

eladó panellakás, Budapest, XIV. kerület

eladó panellakás

Kiváló panel Zuglóban!

Budapest, XIV. kerület, Rákosfalva
Budapest XIV. kerületének egyik legnépszerűbb részén, a Füredi úti lakótelepen, Rákosfalván eladó egy 49nm-es, 2 szobás, világos, remek elosztású, kiváló állapotú társasházi lakás. Figyelem! Néhány...
Belső terület
49 m²
Szobák
2
Emelet
3

63.9 M Ft

Felújított!
Felújított
Budapest, XIV. kerület - Alsórákos
Budapest, XIV. kerület - Alsórákos
Budapest, XIV. kerület - Alsórákos
Budapest, XIV. kerület - Alsórákos