Eladó új építésű sorház - Győr

KAPCSOLAT
Kovács Eszter


+36 20 397

kovacs.eszter@

Az időpont kérés naptár ikonja
IDŐPONTOT KÉREK
A visszahívás kérés telefon ikonja egy azt körbe ölelő nyíllal
VISSZAHÍVÁST KÉREK
Ajánlom egy ismerősömnek ikon
AJÁNLOM EGY ISMERŐSÖMNEK
Facebook megosztás ikon
MEGOSZTÁS

KAPCSOLATFELVÉTEL

Küldés

Az üzenetet sikeresen elküldtük!
Hiba történt!
INGATLAN ADATAI

Ingatlan jellege

sorház

Belső terület

112 m²

Telek terület

303 m²

Tájolás

délnyugat

Építési állapot

új

Építési mód

tégla

Szobák száma

2+2 félszoba

Erkély

3.92 m²

Terasz

18.15 m²

Épület szintje

2.

Épült

2026

Ingatlan állapot

kívül: épülő
belül: épülő

Szigetelés

15 cm

Ablak szerkezete

3 rétegű thermoplan

Komfort

összkomfort

Közműállapot

csatorna: bekötve
gáz: bekötve
villany: bekötve
víz: bekötve

Energetika

A:

Az időpont kérés naptár ikonja
HTML
Az időpont kérés naptár ikonja
PDF
Eladó új építésű sorház
Ingatlan azonosító:
4166_ko

Győr-Moson-Sopron megye, Győr, Szitásdomb

Irányár

108 M Ft
(964.29 E Ft/㎡)

Szobák

2+2 félszoba

Terület

112 m²

Telek terület

303 m²
INGATLAN LEÍRÁSA
Családi ház, sorház – Győr Szitásdomb II.

A Komplex Ingatlaniroda megvételre kínálja Győr egyik legdinamikusabban fejlődő környezetében, a Szitásdomb II. lakóparkban (közigazgatásilag Vámosszabadi belterületén) ezt a kiváló adottságú, emeltszintű fűtéskész állapotban épülő, kétszintes, sorház jellegű, zárt sorú beépítésű lakóházat.

Az ingatlan 303 m²-es telken valósul meg, 2026. szeptemberi átadással, összesen 159 m² alapterülettel, amely az alábbiak szerint oszlik meg:
– nettó lakótér: 112 m²
– garázs: 25,2 m²
– terasz: 18,15 m²
– erkély: 3,92 m²

Az átgondolt alaprajzi kialakításnak köszönhetően az otthon nappali + 3 hálószobával rendelkezik, ahol az életterek tökélesen elkülönülnek egymástól.

A beruházás keretében 8 db lakóház épül egymás szomszédságában. A lakóházak önálló helyrajzi számmal rendelkeznek, nem társasházi formában kerülnek kialakításra.

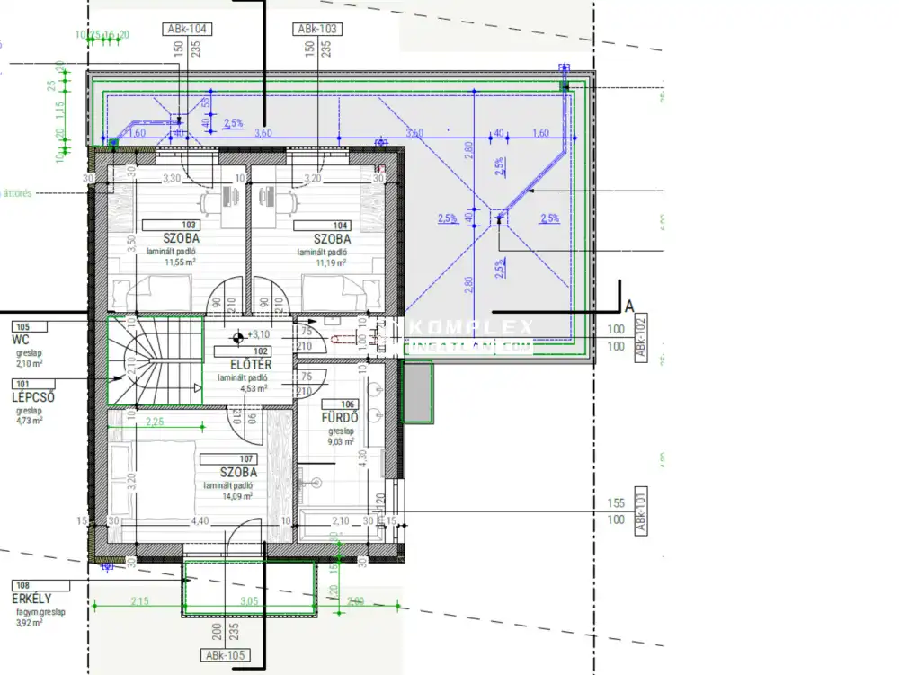
Helyiségek elrendezése:
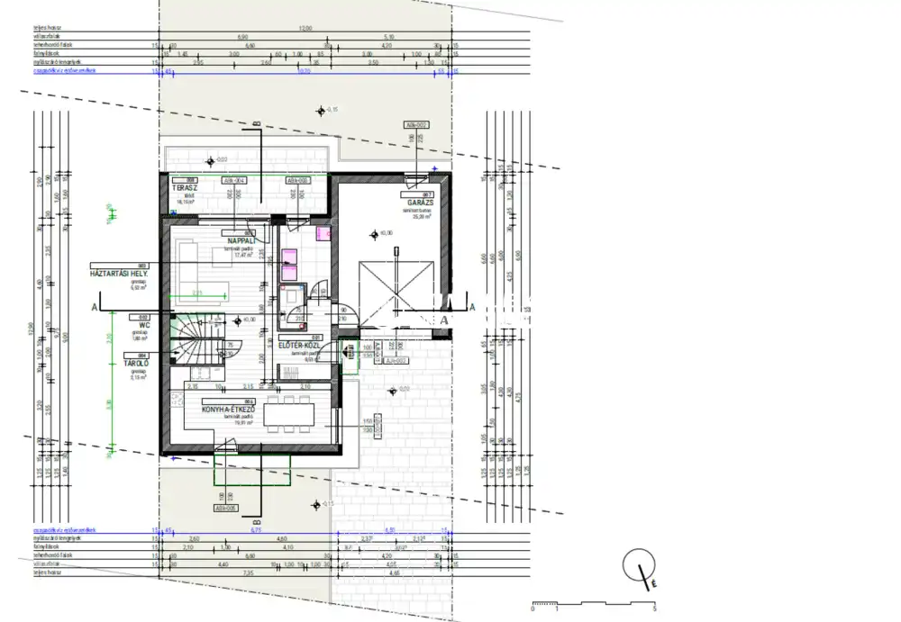
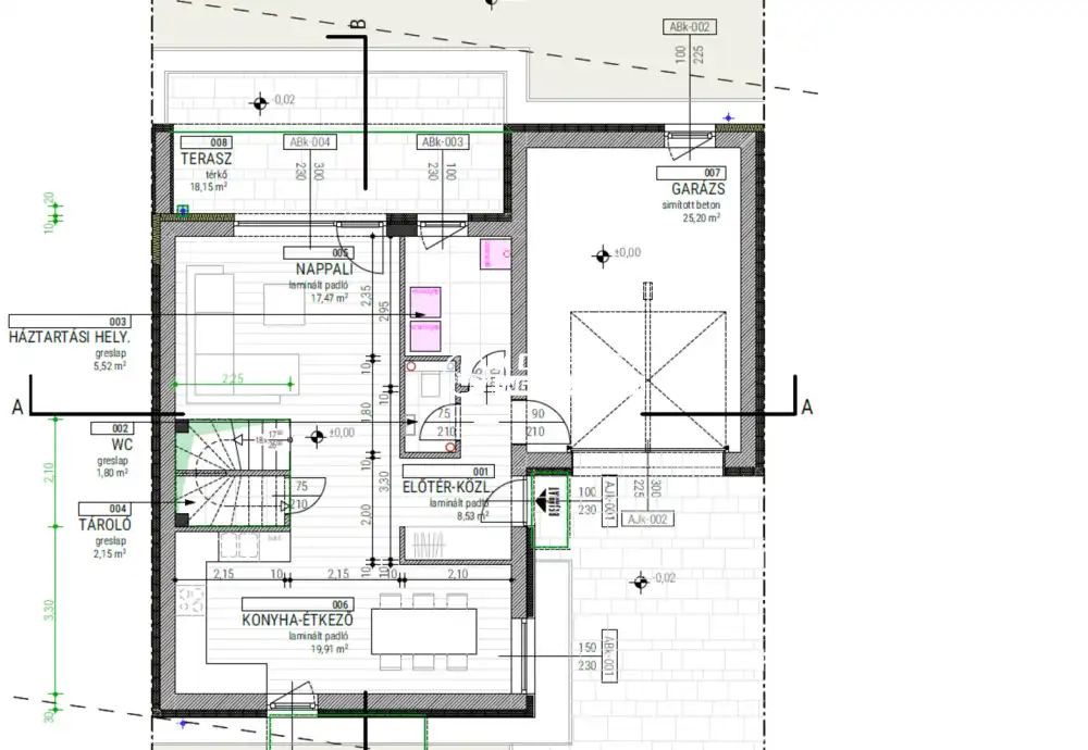
– Földszint: előtér, WC, háztartási helyiség, tároló, nappali, étkező-konyha, terasz, garázs
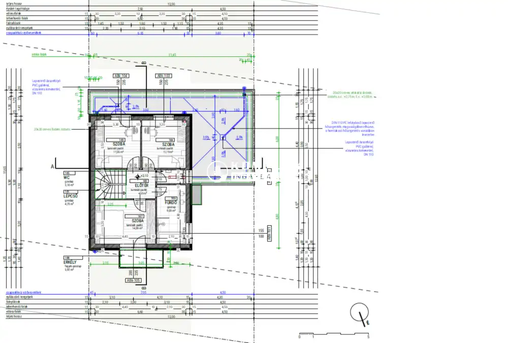
– Emelet: lépcső, előtér, 3 hálószoba, erkély, WC, fürdőszoba

Műszaki tartalom:
- Porotherm 30 N+F főfalazat
- 15 cm vastag homlokzati hőszigetelés
- mindkét szinten monolit vasbeton -födém
- lapostetős kialakítás
- háromrétegű üvegezésű műanyag nyílászárók, kívül antracit, belül fehér színben
- rejtett redőnytok és elektromos redőny előkészítés
- hőszigetelt műanyag bejárati ajtó styrodur betéttel és biztonsági zárral
- Hörmann típusú, antracit színű, motoros vezérlésű szekcionált garázskapu
- Központi kondenzációs gázkazán beépített HMV tárolóval
- padlófűtéssel történik minden helyiségben, így a garázsban is
- 2 db, egyenként 3,5 kWh teljesítményű hűtő-fűtő klímaberendezés, bel- és kültéri egységekkel

A vételár részét képezi:
- a terasz és a kocsibejáró térkövezése
– a hátsó udvar körbekerítése 3D táblás drótkerítéssel
– a hátsó terasz kerti csap és elektromos kiállása
– tereprendezés

Igény esetén a kivitelező kulcsrakész befejezést is vállal.

Emeltszintű fűtéskész vételár: 108.000.000 Ft

További információért és megtekintésért keressen bizalommal!

Irodánk díjmentesen segít hitel- és támogatás ügyintézés során, hogy Ön könnyedén megtalálja a legjobb pénzügyi megoldásokat.


INGATLAN ADATAI

Ingatlan jellege
sorház
Belső terület
112 m²
Telek terület
303 m²
Tájolás
délnyugat
Építési állapot
új
Építési mód
tégla
Szobák száma
2+2 félszoba
Erkély
3.92 m²
Terasz
18.15 m²
Épület szintje
2.
Épült
2026
Ingatlan állapot
kívül: épülő
belül: épülő
Szigetelés
15 cm
Ablak szerkezete
3 rétegű thermoplan
Komfort
összkomfort
Közműállapot
csatorna: bekötve
gáz: bekötve
villany: bekötve
víz: bekötve
Energetika
A:
TÉRKÉP

Győr-Moson-Sopron megye, Győr, Szitásdomb

Hitelkalkulátor


KAPCSOLAT
Kovács Eszter
Kovács Eszter


+36 20 397 0776

kovacs.eszter@komplexingatlan.com

KAPCSOLAT
Kovács Eszter

+36 20 397

kovacs.eszter@

Az időpont kérés naptár ikonja
IDŐPONTOT KÉREK
A visszahívás kérés telefon ikonja egy azt körbe ölelő nyíllal
VISSZAHÍVÁST KÉREK
Ajánlom egy ismerősömnek ikon
AJÁNLOM EGY ISMERŐSÖMNEK
Facebook megosztás ikon
MEGOSZTÁS

KAPCSOLATFELVÉTEL

Küldés

Az üzenetet sikeresen elküldtük!
Hiba történt!
INGATLAN ADATAI

Ingatlan jellege

sorház

Belső terület

112 m²

Telek terület

303 m²

Tájolás

délnyugat

Építési állapot

új

Építési mód

tégla

Szobák száma

2+2 félszoba

Erkély

3.92 m²

Terasz

18.15 m²

Épület szintje

2.

Épült

2026

Ingatlan állapot

kívül: épülő
belül: épülő

Szigetelés

15 cm

Ablak szerkezete

3 rétegű thermoplan

Komfort

összkomfort

Közműállapot

csatorna: bekötve
gáz: bekötve
villany: bekötve
víz: bekötve

Energetika

A:

Az időpont kérés naptár ikonja
HTML
Az időpont kérés naptár ikonja
PDF

Hasonló ingatlan hírdetések

Eladó új építésű családi ház, vagy kertes ház hirdetést keres Győr területén?
Tekintse meg további ajánlatainkat!

eladó családi ház, Győr

eladó családi ház

Győr-Moson-Sopron megye, Győr, Győrszabadhegy
Győr közkedvelt, nyugodt részén, Szabadhegy impozáns utcájában kínálunk megvételre egy egyedi karakterű, kétszintes családi házat, ahol a természetes fény, a fa melegsége és az átgondolt terek harmoni...
Belső terület
98 m²
Telek terület
586 m²
Szobák
3

125 M Ft

kiemelt
Kiemelt
eladó családi ház, Győr

eladó családi ház

Győr-Moson-Sopron megye, Győr, (Újváros), Béke utca
KIS HÁZ, NAGY LEHETŐSÉG – PRIVÁT KERTTEL GYŐR - ÚJVÁROSBAN A Komplex Ingatlaniroda megvételre kínálja Győr–Újváros csendes, családi házas övezetében ezt az 54 m² hasznos alapterületű, hangulatos cs...
Belső terület
54 m²
Telek terület
298 m²
Szobák
2+2

62 M Ft

eladó családi ház, Győr

eladó családi ház

Győr-Moson-Sopron megye, Győr, Gyárváros
Polgári jellegű családi ház eladó Győr–Gyárváros szívében, csendes utcában A Komplex Ingatlaniroda megvételre kínálja Győr – Gyárváros központi részén, mégis nyugodt, kis forgalmú utcában ezt a pol...
Belső terület
150 m²
Telek terület
300 m²
Szobák
3

69 M Ft

eladó családi ház, Győr

eladó családi ház

Győr-Moson-Sopron megye, Győr, Szalmatelep
Győr-Szabadhegyen panziónak/szálláshelynek kiválóan alkalmas panel társasház eladó Győr-Szabadhegy könnyen megközelíthető, biztonságos területén eladó egy panziónak, vagy szálláshelynek kiválóan a...
Belső terület
480 m²
Telek terület
250 m²
Szobák
12

248 M Ft

eladó családi ház, Győr

eladó családi ház

Győr-Moson-Sopron megye, Győr, Belváros
Győr klasszikus belvárosában 5 szintes, felújított ház patinás üzlethelyiséggel eladó Győr-Belvárosban, a belváros klasszikus részén, sétálóutcában eladó egy 5 szintes elegáns megjelenésű ház. Az é...
Belső terület
160 m²
Telek terület
47 m²
Szobák
6

198 M Ft

eladó családi ház, Győr

eladó családi ház

Győr-Moson-Sopron megye, Győr, (Belváros), Baross Gábor út
Győr-Belvárosában, a Baross úton 4 szintes, felújított műemlék épület eladó Győr-Belvárosban, a Baross úton eladó egy 441 m2 alapterületű, 4 szintes, pincés, többféle felhasználási lehetőségre is k...
Belső terület
441 m²
Telek terület
240 m²
Szobák
6+1

358 M Ft

Győr-Moson-Sopron megye - Győr
Győr-Moson-Sopron megye - Győr
Győr-Moson-Sopron megye - Győr
Győr-Moson-Sopron megye - Győr
Győr-Moson-Sopron megye - Győr
Győr-Moson-Sopron megye - Győr
Győr-Moson-Sopron megye - Győr
Győr-Moson-Sopron megye - Győr
Győr-Moson-Sopron megye - Győr
Győr-Moson-Sopron megye - Győr
Győr-Moson-Sopron megye - Győr
Győr-Moson-Sopron megye - Győr
Győr-Moson-Sopron megye - Győr