Eladó új építésű ikerház - Gödöllő

KAPCSOLAT
Kómár-Benke Nikoletta


+36 70 396

almaestatekft@

Az időpont kérés naptár ikonja
IDŐPONTOT KÉREK
A visszahívás kérés telefon ikonja egy azt körbe ölelő nyíllal
VISSZAHÍVÁST KÉREK
Ajánlom egy ismerősömnek ikon
AJÁNLOM EGY ISMERŐSÖMNEK
Facebook megosztás ikon
MEGOSZTÁS

KAPCSOLATFELVÉTEL

Küldés

Az üzenetet sikeresen elküldtük!
Hiba történt!
INGATLAN ADATAI

Ingatlan jellege

ikerház

Belső terület

95 m²

Telek terület

389 m²

Tájolás

délnyugat

Építési állapot

új

Építési mód

tégla

Szobák száma

4 szoba

Épület szintje

1.

Épült

2026

Ingatlan állapot

kívül: új
belül: új

Szigetelés

10 cm

Ablak szerkezete

3 rétegű thermoplan

Fűtés

padlófűtés

Komfort

duplakomfort

Parkolás

van fedetlen felszíni beálló

Közműállapot

csatorna: bekötve
gáz: bekötve
villany: bekötve
víz: bekötve

Energetika

A++:

Az időpont kérés naptár ikonja
HTML
Az időpont kérés naptár ikonja
PDF
Eladó új építésű ikerház
Ingatlan azonosító:
57_aes

Pest megye, Gödöllő, Fecske utca

Irányár

115 M Ft
(1.21 M Ft/㎡)

Szobák

4 szoba

Terület

95 m²

Telek terület

389 m²
INGATLAN LEÍRÁSA
Budapesttől mindössze 20 percre Gödöllőn, Blaha városrészen eladásra kínálok egy 732 nm-es sarok telekre tervezett ikerházat.

Az ingatlanokat teljesen elszeparálják egymástól, így garantált az intim szféra.
Az első „A” egy szintesre, míg a „B” házat 2 szintesre tervezték.

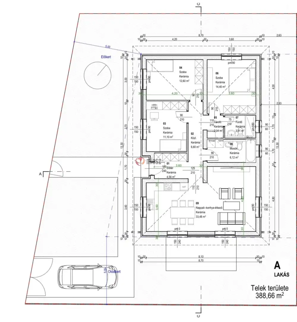
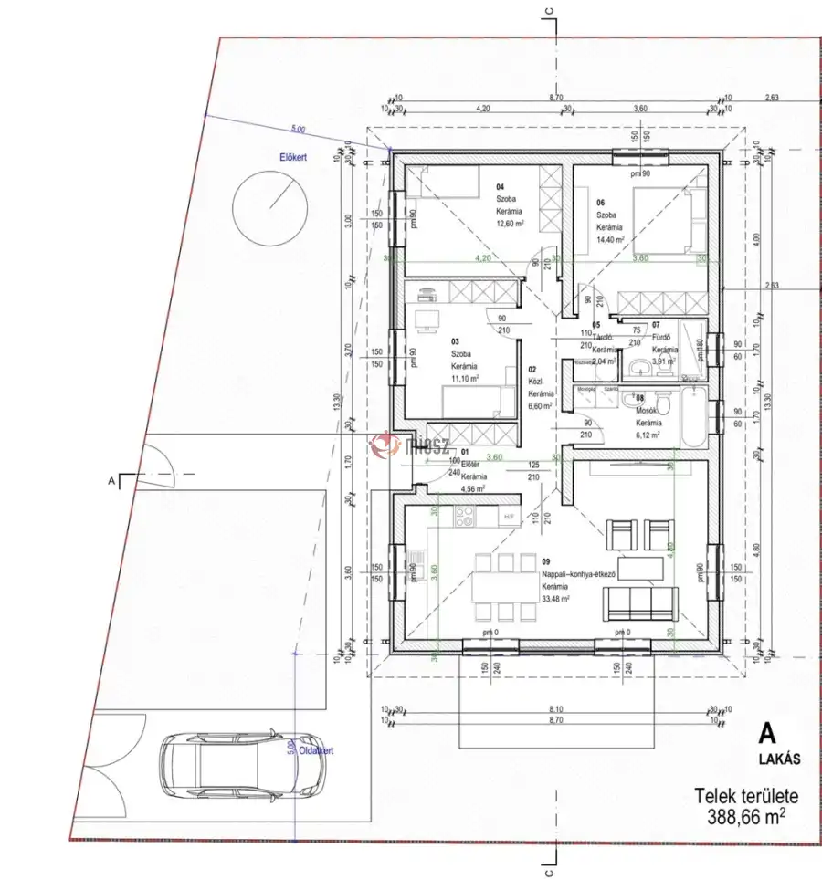
„A” ház jellemzői:
- 389 nm-es elszeparált kert
- tágas előtér (~6 nm, szekrény beépítésére van lehetőség)
- 3 szoba (~11 nm, ~13 nm, ~14 nm)
- nappali, konyha, étkező (~33 nm)
- mosókonyha (~6 nm, mellékhelyiség és fürdőszoba kialakítása)
- fürdőszoba (~4 nm)
- tároló (~2 nm)
- közlekedő (~7 nm)
- nagyméretű terasz ˙(~15 nm)

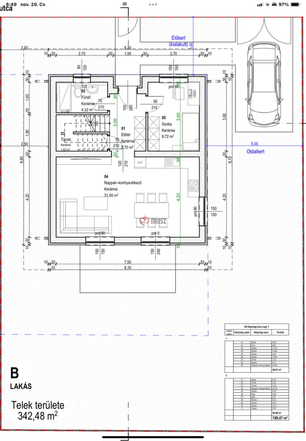
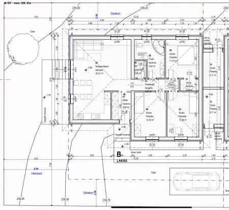
„B” ház jellemzői:
-342 nm elszeparált kert
Földszint:
- tágas előtér (~6 nm, szekrény beépítésére van lehetőség)
- 1 szoba (~9 nm)
- nappali, konyha, étkező (~32 nm)
- tároló (~2 nm)
- fürdő (~7 nm)
- terasz (~15 nm)
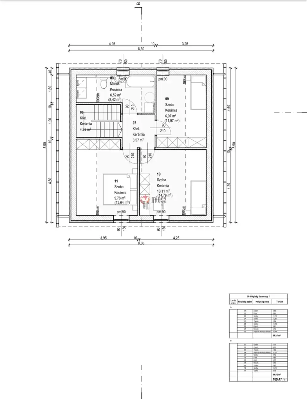
Emelet:
- közlekedő (~9 nm)
- 3 hálószoba (~10 nm, ~7 nm, ~10 nm)
- fürdő (~8 nm)
Mind két ingatlan minőségi anyagokból épül, energiatakarékos, amit gáz és hőszivattyús fűtéssel is lehet kérni. Részletes tájékoztatást, műszaki leírást és vállalást e-mail címre továbbítok.

Kert:
- körbe kerítve (zsaluköves kerítés)
- kis és nagykapu
- térkövezett járda és parkoló
- építési törmelékektől megtisztítva kerül átadásra

A közelben minden…
-Tesco, Lidl, Aldi, H&M éttermek és egyéb élelmiszerboltok
- Iskola, óvoda, buszmegálló, M3
Az ingatlant nagy múltú, számos referenciával rendelkező kivitelező építi, akivel gördülékeny a munka így szívből tudom ajánlani.
A házak rugalmasan megtekinthetők, hétvégén is, referenciaházak megtekintése csakis előre egyeztetett időpontokban.

Ezekkel támogatom a vásárlást:
- teljes körű hitelügyintézés
- ügyvédi háttértámogatás

Portfóliómban további igényes, új építésű ingatlanok várják. A Referens további hirdetései gombra kattintva érheti el őket.
Keressen bizalommal.

*** A kész házakról készült fotók, referenciaházakról készültek***

INGATLAN ADATAI

Ingatlan jellege
ikerház
Belső terület
95 m²
Telek terület
389 m²
Tájolás
délnyugat
Építési állapot
új
Építési mód
tégla
Szobák száma
4 szoba
Épület szintje
1.
Épült
2026
Ingatlan állapot
kívül: új
belül: új
Szigetelés
10 cm
Ablak szerkezete
3 rétegű thermoplan
Fűtés
padlófűtés
Komfort
duplakomfort
Parkolás
van fedetlen felszíni beálló
Közműállapot
csatorna: bekötve
gáz: bekötve
villany: bekötve
víz: bekötve
Energetika
A++:
TÉRKÉP

Pest megye, Gödöllő, Fecske utca

Hitelkalkulátor


KAPCSOLAT
Kómár-Benke Nikoletta
Kómár-Benke Nikoletta


+36 70 396 5533

almaestatekft@gmail.com

KAPCSOLAT
Kómár-Benke Nikoletta

+36 70 396

almaestatekft@

Az időpont kérés naptár ikonja
IDŐPONTOT KÉREK
A visszahívás kérés telefon ikonja egy azt körbe ölelő nyíllal
VISSZAHÍVÁST KÉREK
Ajánlom egy ismerősömnek ikon
AJÁNLOM EGY ISMERŐSÖMNEK
Facebook megosztás ikon
MEGOSZTÁS

KAPCSOLATFELVÉTEL

Küldés

Az üzenetet sikeresen elküldtük!
Hiba történt!
INGATLAN ADATAI

Ingatlan jellege

ikerház

Belső terület

95 m²

Telek terület

389 m²

Tájolás

délnyugat

Építési állapot

új

Építési mód

tégla

Szobák száma

4 szoba

Épület szintje

1.

Épült

2026

Ingatlan állapot

kívül: új
belül: új

Szigetelés

10 cm

Ablak szerkezete

3 rétegű thermoplan

Fűtés

padlófűtés

Komfort

duplakomfort

Parkolás

van fedetlen felszíni beálló

Közműállapot

csatorna: bekötve
gáz: bekötve
villany: bekötve
víz: bekötve

Energetika

A++:

Az időpont kérés naptár ikonja
HTML
Az időpont kérés naptár ikonja
PDF

Hasonló ingatlan hírdetések

Eladó új építésű családi ház, vagy kertes ház hirdetést keres Gödöllő területén?
Tekintse meg további ajánlatainkat!

eladó ikerház, Gödöllő

eladó ikerház

Pest megye, Gödöllő, Kertváros
Új építésű, kétszintes családi házak Gödöllő kertvárosi részén! Gödöllő kertvárosi, nyugodt és zöldövezeti részén két új, modern, kétszintes családi ház épül egy 650 m²-es telekre. A projekt során ...
Belső terület
113 m²
Telek terület
350 m²
Szobák
5

115 M Ft

eladó családi ház, Gödöllő

eladó családi ház

Pest megye, Gödöllő, Királytelep
Álmai otthona Gödöllőn várja! Ez az eladó családi ház igazi oázis mindazok számára, akik értékelik a csendes, barátságos környezetet. KÉT HÁZ EGY TELKEN! Eladó Gödöllőn, csendes kertvárosi kö...
Belső terület
206 m²
Telek terület
1191 m²
Szobák
7

205 M Ft

eladó ikerház, Gödöllő

eladó ikerház

Pest megye, Gödöllő
Eladásra kínálok Gödöllőn, a Királytelepen, közkedvelt kertvárosi környezetben egy új építésű ikerházat, amely közel 1000 m²-es telken valósul meg. Nyugodt, családbarát környezet, kiváló infrastruk...
Belső terület
112 m²
Telek terület
600 m²
Szobák
5

135 M Ft

eladó családi ház, Gödöllő

eladó családi ház

Pest megye, Gödöllő, (Blaha), Sőtér Kálmán utca
Megvételre kínálunk Gödöllő egyik legkedveltebb részén, a Blahán, a Sőtér Kálmán utcában egy páratlan adottságokkal rendelkező ingatlant, amely lenyűgöző panorámát kínál a városra. Az ingatlan 2004-b...
Belső terület
264 m²
Telek terület
800 m²
Szobák
6+1

194 M Ft

eladó ikerház, Gödöllő

eladó ikerház

Pest megye, Gödöllő
Pest Vármegyében, Budapesttől mindössze 20 percre Gödöllőn, Alvég városrészen, aszfaltozott utcában, eladásra kínálok egy 1800 nm-es telekre tervezett ikerházat. AZ INGATLANOK GARÁZSON KERESZTŰL KAPC...
Belső terület
150 m²
Telek terület
1300 m²
Szobák
4

137.9 M Ft

eladó családi ház, Gödöllő

eladó családi ház

Pest megye, Gödöllő, Kertváros
Gödöllő kedvelt, kertvárosi részén eladásra kínálok egy új építésű, földszintes ikerházat, amely nettó ~110 m² lakótérrel rendelkezik. Az ingatlan 3 külön nyíló hálószobával, egy tágas amerikai konyhá...
Belső terület
110 m²
Telek terület
350 m²
Szobák
5

115 M Ft

eladó ikerház, Gödöllő

eladó ikerház

Pest megye, Gödöllő, Csanak
Új építésű, különálló ikerház Gödöllő-Csanakon, 960 m²-es telken! Eladó Gödöllő egyik legkedveltebb, kertvárosi részén, Csanakon, egy új építésű, kétlakásos ikerház, amelyben a két lakás teljesen kül...
Belső terület
115 m²
Telek terület
500 m²
Szobák
4

144.9 M Ft

eladó családi ház, Gödöllő

eladó családi ház

Pest megye, Gödöllő, Kertváros
Eladó Gödöllőn 125 nm-es, 4 szobás, gázkonvektor fűtéses, közepes állapotú családi ház, 665 nm-es telekkel. A házban jelenleg 3 önálló lakrész van kialakítva: egy kétszoba, konyha, spejz, fürdőszob...
Belső terület
125 m²
Telek terület
665 m²
Szobák
4

87.99 M Ft

azonnal költözhető
Azonnal költözhető
Pest megye - Gödöllő
Pest megye - Gödöllő
Pest megye - Gödöllő
Pest megye - Gödöllő
Pest megye - Gödöllő
Pest megye - Gödöllő
Pest megye - Gödöllő
Pest megye - Gödöllő
Pest megye - Gödöllő
Pest megye - Gödöllő
Pest megye - Gödöllő
Pest megye - Gödöllő
Pest megye - Gödöllő
Pest megye - Gödöllő
Pest megye - Gödöllő
Pest megye - Gödöllő
Pest megye - Gödöllő
Pest megye - Gödöllő
Pest megye - Gödöllő