KAPCSOLATFELVÉTEL
Ingatlan jellege
ikerház
Belső terület
119 m²
Telek terület
881 m²
Tájolás
délkelet
Építési állapot
új
Építési mód
tégla
Szobák száma
5 szoba
Terasz
15 m²
Épület szintje
1.
Épült
2026
Ingatlan állapot
kívül: új
belül: új
Klíma
van
Szigetelés
15 cm
Ablak szerkezete
3 rétegű thermoplan
Fűtés
gázkazán
Komfort
duplakomfort
Parkolás
van fedett felszíni beálló
Közműállapot
csatorna: bekötve
gáz: bekötve
villany: bekötve
víz: bekötve
Energetika
nincs megadva
Pest megye, Erdőkertes, Háromház
Irányár
(780.67 E Ft/㎡)
Szobák
Terület
Telek terület
BERUHÁZÓI ÁRON!
Kiváló lehetőség Erdőkertesen: új építésű, amerikai konyhás nappali + 4 szobás, dupla komfortos családi ház várja új lakóit.
Az előszobából nyílik az amerikai konyhás nappali, amely közvetlenül kapcsolódik a teraszhoz. Négy kényelmes hálószoba—mindegyik külön nyíló—teremti meg a család személyes tereit. Két fürdőszoba, háztartási helyiség, kamra és tároló gondoskodik a mindennapok praktikumáról.
A 881 m²-es telek önállóságot és szabad teret kínál, az egyszintes ház minden korosztály számára ideális választás.
A BELSŐ TEREK KIALAKÍTÁSA – válaszfalak elhelyezése – JELENLEG MÉG MÓDOSÍTHATÓ!
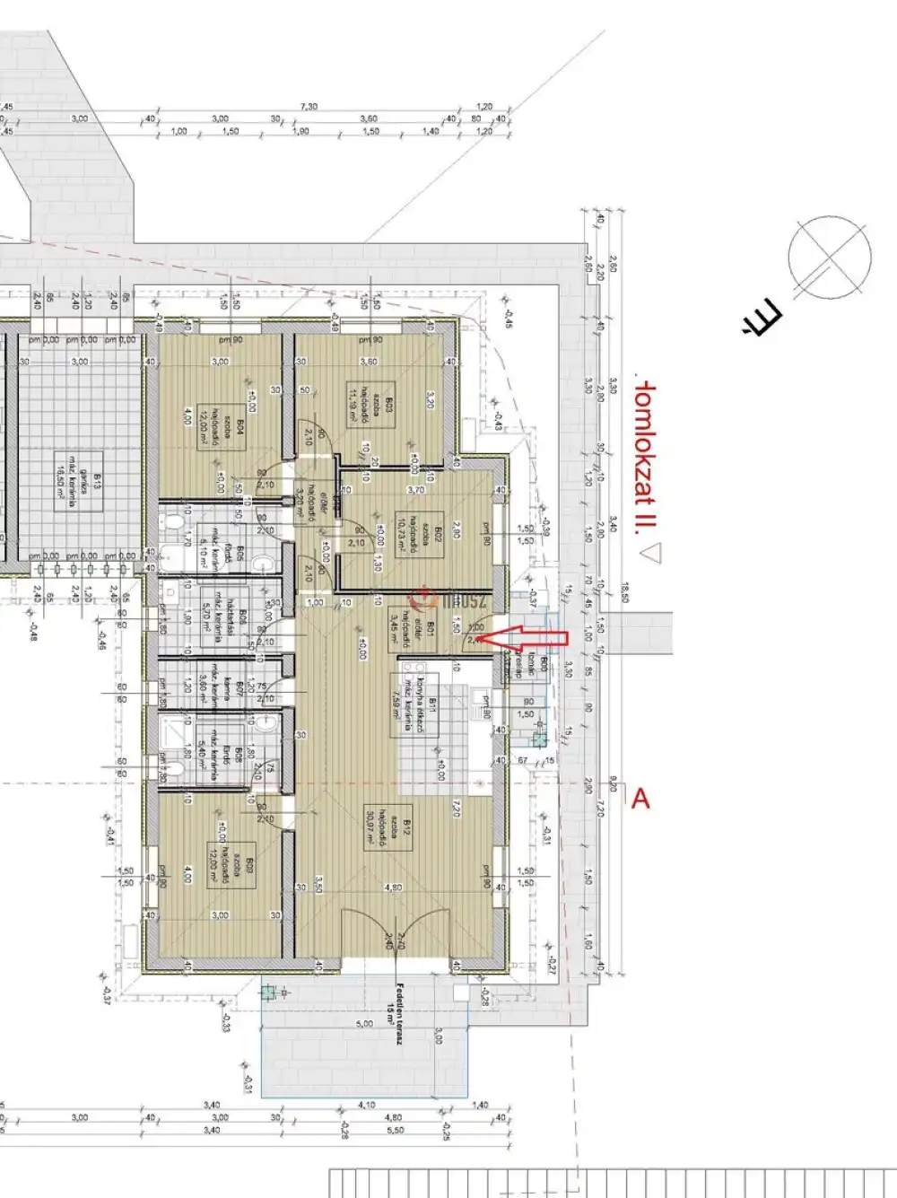
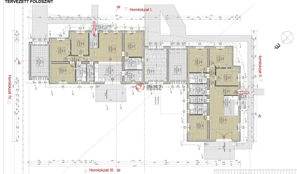
Az 1762 nm-es telekre két ház épül, melyek csak a gépkocsi beállóknál érintkeznek, nincs közös fal, önálló házként funkcionálnak.
„A” lakás:
- nettó 110 nm + 15 nm terasz + 3.4 nm tornác + 15 nm terasz + 16.5 nm garázs,
- amerikai konyhás nappali terasz kapcsolattal, 4 szoba, 2 fürdőszoba, háztartási helyiség, kamra, előszoba-közlekedő helyiségekből áll.
„B” lakás elrendezése:
- nettó 111 nm + 15 nm terasz + 3.4 nm tornác + 16.5 nm garázs + 23.6 nm gk. beálló,
- amerikai konyhás nappali, 4 hálószoba, 2 fürdőszoba, háztartási helyiség, kamra, előszoba-közlekedő.
Az ingatlan korszerű technikai megoldásokat kínál:
- főfalak 30 cm-es Porotherm téglából, 15 cm-es szigeteléssel,
- a tető beton cserépfedés,
- fűtés kondenzációs kazánnal, padlófűtéssel, értékegyeztetéssel hőszivattyús fűtéssel,
-2 db klíma,
- 3 rétegű, hőszigetelt üvegezésű műanyag nyílászárók, bukó-nyíló kivitelben, igény esetén redőnnyel, szúnyoghálóval felszerelve,
-a szobák burkolata laminált padló, a vizes helyiségekbe kerámia burkolatok kerülnek,
- választható burkolatok, szaniterek, belső ajtók.
A kivitelező számos referencia munkával rendelkezik.
Közlekedés: buszmegálló gyalogosan pár perc alatt elérhető.
Hívjon a részletekért, a részletes műszaki tartalomért.
Irodánk ÚJ ÉPÍTÉSŰ ingatlanok specialistája, felkészült értékesítőkkel!
Jogi háttérrel (kedvező díjazással) és az egyik legjobb, bank semleges HITELKÖZVETÍTŐVEL segítjük vásárlását.
Új építésű ingatlanjainkat BERUHÁZÓI ÁRON értékesítjük!
Amennyiben értékesíteni kívánja ingatlanát, irodánk egyedi, kedvező ajánlattal áll rendelkezésére!
belül: új
gáz: bekötve
villany: bekötve
víz: bekötve
Pest megye, Erdőkertes, Háromház
Hitelkalkulátor
+36 20 334 3328
arenaingatlanok@gmail.com
KAPCSOLATFELVÉTEL
Ingatlan jellege
ikerház
Belső terület
119 m²
Telek terület
881 m²
Tájolás
délkelet
Építési állapot
új
Építési mód
tégla
Szobák száma
5 szoba
Terasz
15 m²
Épület szintje
1.
Épült
2026
Ingatlan állapot
kívül: új
belül: új
Klíma
van
Szigetelés
15 cm
Ablak szerkezete
3 rétegű thermoplan
Fűtés
gázkazán
Komfort
duplakomfort
Parkolás
van fedett felszíni beálló
Közműállapot
csatorna: bekötve
gáz: bekötve
villany: bekötve
víz: bekötve
Energetika
nincs megadva