KAPCSOLATFELVÉTEL
Ingatlan jellege
családi ház
Belső terület
120 m²
Telek terület
706 m²
Tájolás
észak, dél, kelet, nyugat
Építési állapot
új
Építési mód
könnyűszerkezetes
Szobák száma
3+2 félszoba
Terasz
40 m²
Épület szintje
1.
Épült
2025
Akadálymentes
igen
Ingatlan állapot
 
										kívül: kitűnő
belül: kitűnő									
Klíma
van
Szigetelés
10 cm
Fűtés
hőszivattyús
Komfort
duplakomfort
Parkolás
van fedett felszíni beálló
Közműállapot
 
								csatorna: bekötve										
								gáz: nincs										
								villany: bekötve										
								víz: bekötve										
									
Energetika
A+ 2024:
Fejér megye, Kulcs
Irányár
(1.02 M Ft/㎡)
Szobák
Terület
Telek terület
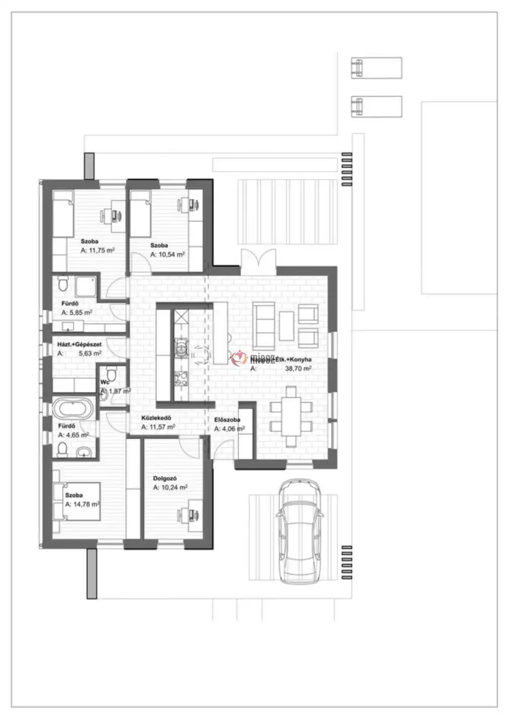
Az ingatlan négy különnyíló szobával, két fürdőszobával, vendég mosdóval, háztarási helyiséggel és világos amerikai konyhás nappalival épül fel. A nappaliból és a szobákból mindenhonnan kijutunk a részben fedett teraszra.
A ház ideális nagycsaládnak és/vagy home officban dolgozóknak egyaránt, mivel kialakításánál fogva mind a szeparált magánszféra lehetősége, mind a kényelmes és tágas közösségi terek adottak.
Műszaki adatok:
- fűtés - hűtés hőszivattyúval
- padlófűtés és fan-coil
- kiépített szellőztető rendszer
- 10 cm-es homlokzati szigetelés
- 30 cm-es födémszigetelés
- A+ energetikai besorolás
- automatikus vezérlésű okosotthon
A világítás, szaniterek, hideg és meleg burkolatok, színek, s minden egyéb esztétikai megoldás egyedi igény szerint választható.
A beruházó több mint 30 éve prosperáló, leinformálható, megbízható cég, számos meglévő referenciával és teljeskörű (tervezéstől a kulcs átadásáig) szolgáltatással.
Kulcs község:
Folyamatosan fejlődő, közel 4800 lakosú község, mely közvetlen lehajtóval rendelkezik az M6-os autópályáról, saját vasútállomással (Budapest-Pusztaszabolcs vonal), saját hajóállomással és a 6-os számú főút révén jó közlekedéssel. Budapest autóval 30 perc, Dunaújváros 15, így - dacára annak, hogy Fejér megyében található - mindkét nagyváros agglomerációjának tekinthető.
Az ingatlannak helyet adó utca csendes, mégis 3-5 perc alatt elérhető bölcsőde, óvoda, általános iskola, egynapos sebészettel kibővített orvosi rendelő, gyógyszertár, boltok és szolgáltató egységek, valamint számos közigazgatási hivatal. Az M6 autópálya felhajtója és / vagy a vasútállomás 6 percre, a Duna-part 3 perc távolságra található.
belül: kitűnő
gáz: nincs
villany: bekötve
víz: bekötve
Hitelkalkulátor
 
							+36 70 771 4476
ertekesbiztonsag@gmail.com
KAPCSOLATFELVÉTEL
Ingatlan jellege
családi ház
Belső terület
120 m²
Telek terület
706 m²
Tájolás
észak, dél, kelet, nyugat
Építési állapot
új
Építési mód
könnyűszerkezetes
Szobák száma
3+2 félszoba
Terasz
40 m²
Épület szintje
1.
Épült
2025
Ingatlan állapot
 
									kívül: kitűnő
belül: kitűnő								
Klíma
van
Szigetelés
10 cm
Fűtés
hőszivattyús
Komfort
duplakomfort
Parkolás
van fedett felszíni beálló
Közműállapot
 
							csatorna: bekötve									
							gáz: nincs									
							villany: bekötve									
							víz: bekötve									
								
Energetika
A+ 2024:
 
								 
											 
																 
																 
																 
										 
										 
										 
										 
										 
										 
										 
										 
						
					 
						
					 
						
					