Eladó téglalakás - Vác

Panorámás!
Panorámás
KAPCSOLAT
Gere Géza


+36 70 558

hesu52@

Az időpont kérés naptár ikonja
IDŐPONTOT KÉREK
A visszahívás kérés telefon ikonja egy azt körbe ölelő nyíllal
VISSZAHÍVÁST KÉREK
Ajánlom egy ismerősömnek ikon
AJÁNLOM EGY ISMERŐSÖMNEK
Facebook megosztás ikon
MEGOSZTÁS

KAPCSOLATFELVÉTEL

Küldés

Az üzenetet sikeresen elküldtük!
Hiba történt!
INGATLAN ADATAI

Ingatlan jellege

téglalakás

Belső terület

105 m²

Tájolás

délnyugat

Panoráma

igen

Építési állapot

használt

Építési mód

tégla

Szobák száma

3+1 félszoba

Emelet

2.

Épület szintje

3.

Épült

1982

Akadálymentes

igen

Lift

nincs

Ingatlan állapot

kívül: átlagos
belül: jó

Klíma

van

Szigetelés

15 cm

Ablak szerkezete

3 rétegű thermoplan

Fűtés

cirko

Komfort

összkomfort

Parkolás

van önálló garázs

Kilátás

utcára, kertre

Energetika

nincs

Extrák

panorámás terasz

Az időpont kérés naptár ikonja
HTML
Az időpont kérés naptár ikonja
PDF
Eladó téglalakás
Belső azonosító:
GG931
Ingatlan azonosító:
13585_bhv

Pest megye, Vác, (Belváros), Cházár András utca

Irányár

109.9 M Ft + Áfa
(1.05 M Ft/㎡) + Áfa

Szobák

3+1 félszoba

Emelet

2

Terület

105 m²
INGATLAN LEÍRÁSA
Eladó 105 m2-es, belső kétszintes társasházi téglaépítésű lakás Vácon a Cházár András utcában.

Dunakanyar ékkövében, a közel ezeréves múltú Vác városának történelmi kebelén, ott, hol a nagy folyam, a Duna csendes méltósággal hömpölyög, kínáltatik eladásra egy nemes hajlék, mely egyszerre hordozza a polgári időtlenség báját és a modernkor kényelmét.

A patinás Cházár András utcában, Vác ódon belvárosának szívében emelkedik ama négylakásos, tisztes társasház, mely 1982 esztendejében építtetett, s külső falazatát 15 centiméteres hőszigetelés oltalmazza a tél zordságától s a nyár hevének túlzásaitól.
A lépcsőház tiszta és rendezett, lakóközössége konszolidált; ablakai háromrétegű üvegezéssel bocsátják be a természet áldott fényét, miközben őrzik a benső csendet.

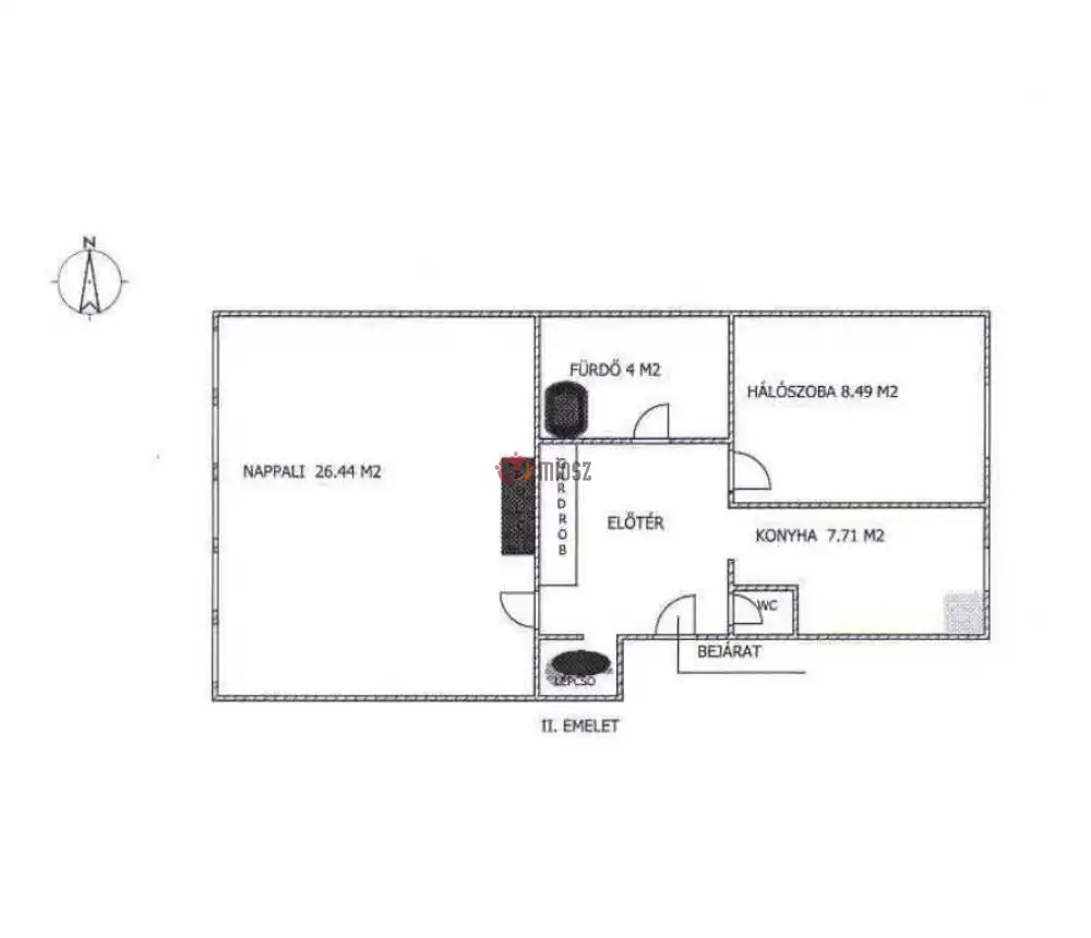
A második emeleten lelhető fel e 105 négyzetméteres, belső kétszintes, téglaépítésű lakás, mely saját tárolóval, utcafrontról nyíló, árammal ellátott garázzsal és fenséges panorámájú tetőterasszal ékes.

Az alsó szinten előszoba fogad beépített szekrénnyel; innen nyílik a délnyugati tájolású, tágas, 26, 44 m²-s parkettás nappali, melyet klíma hűsít a nyár idején.

Külön álló, 7, 71 m²- s bútorozott konyha szolgálja a ház asszonyának vagy urának kedvét.

Található továbbá kádas fürdőszoba bojlerrel, külön illemhely, s egy 8, 49 m²- s, világos, parkettázott hálószoba.
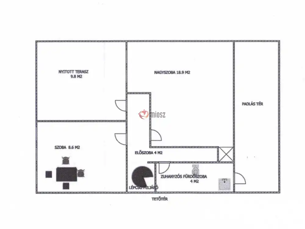
A felső szintre acélcsővázas, tölgyfokokkal ékesített csigalépcső vezet.
Itt lépcsőtér (2, 68 m²), közlekedő (3, 21 m²), tusolós fürdő WC- el (4, 13 m²), továbbá két külön nyíló, parkettázott szoba (15, 11 m² és 10 m²) várja új lakóit.
A korona pedig a 12, 18 m²- s panorámás terasz, ahonnan a város háztetőire és a belső udvar nyugalmára tekinthetünk alá – méltó helyszíne reggeli kávénak vagy alkonyi elmélkedésnek.

A fűtésről gázcirkó, meleg vízről villanybojler éjszakai árammal gondoskodik, a nyári túlmelegedés ellen klímaberendezések őrködnek.

Közös költség: 14. 180 Ft havonta.

Az utcai bejárat mellett Hörmann motoros kapuval ellátott garázs szolgálja a kényelmet; a lépcsőházból nyíló tároló (0, 74 m²) további praktikus teret biztosít.
A lakás egy helyrajzi számon szerepel, a garázs és a tároló külön nem értékesíthető.
Az alapító okirat a tulajdoni hányadokat egyértelműen rögzíti.

Az ingatlan tehermentes; igénybe vehetők állami támogatások és kedvezményes hitelek (Start Otthon 3%, CSOK, Babaváró).

A téglalakás korának megfelelő állapotú, a leendő tulajdonos saját ízlése szerint alakíthatja át.

Elhelyezkedése kivételes: néhány perces sétával elérhetők élelmiszerboltok, zöldséges, hentes, pékség, bölcsőde, óvoda, iskola, orvosi rendelő, gyógyszertár, parkok, a Duna-part, buszmegálló és vasútállomás.

Irányár (garázzsal és tárolóval együtt): 109. 900. 000 Ft

Ha e nemes falak között képzeli el jövendő életét, várom megtisztelő hívását!

Találja meg otthonát Vác történelmi ölelésében, hol múlt és jelen méltósággal fonódik egybe.


INGATLAN ADATAI

Ingatlan jellege
téglalakás
Belső terület
105 m²
Tájolás
délnyugat
Panoráma
igen
Építési állapot
használt
Építési mód
tégla
Szobák száma
3+1 félszoba
Emelet
2.
Épület szintje
3.
Épült
1982
Akadálymentes
igen
Lift
nincs
Ingatlan állapot
kívül: átlagos
belül: jó
Klíma
van
Szigetelés
15 cm
Ablak szerkezete
3 rétegű thermoplan
Fűtés
cirko
Komfort
összkomfort
Parkolás
van önálló garázs
Kilátás
utcára, kertre
Energetika
nincs
Extrák
panorámás terasz
TÉRKÉP

Pest megye, Vác, Cházár András utca

Hitelkalkulátor


KAPCSOLAT
Gere Géza
Gere Géza


+36 70 558 1160

hesu52@gmail.com

KAPCSOLAT
Gere Géza

+36 70 558

hesu52@

Az időpont kérés naptár ikonja
IDŐPONTOT KÉREK
A visszahívás kérés telefon ikonja egy azt körbe ölelő nyíllal
VISSZAHÍVÁST KÉREK
Ajánlom egy ismerősömnek ikon
AJÁNLOM EGY ISMERŐSÖMNEK
Facebook megosztás ikon
MEGOSZTÁS

KAPCSOLATFELVÉTEL

Küldés

Az üzenetet sikeresen elküldtük!
Hiba történt!
INGATLAN ADATAI

Ingatlan jellege

téglalakás

Belső terület

105 m²

Tájolás

délnyugat

Panoráma

igen

Építési állapot

használt

Építési mód

tégla

Szobák száma

3+1 félszoba

Emelet

2.

Épület szintje

3.

Épült

1982

Lift

nincs

Ingatlan állapot

kívül: átlagos
belül: jó

Klíma

van

Szigetelés

15 cm

Ablak szerkezete

3 rétegű thermoplan

Fűtés

cirko

Komfort

összkomfort

Parkolás

van önálló garázs

Kilátás

utcára, kertre

Energetika

nincs

Extrák

panorámás terasz

Az időpont kérés naptár ikonja
HTML
Az időpont kérés naptár ikonja
PDF

Hasonló ingatlan hírdetések

Eladó tégla-, vagy panellakás hirdetést keres Vác területén?
Tekintse meg további ajánlatainkat!

eladó panellakás, Vác

eladó panellakás

Pest megye, Vác, Alsóváros
Vác egyik legjobb elhelyezkedésű lakása –panorámás kilátással! Eladó Vácon, a Költő utcában egy 55 m²-es, 4. emeleti, erkélyes lakás, amely kiváló lehetőséget kínál mindazok számára, akik saját ízl...
Belső terület
55 m²
Szobák
2
Emelet
4

54.9 M Ft

eladó téglalakás, Vác

eladó téglalakás

Eladó tégla lakás Vácon! Remek lehetőség a Dunakanyar kapujában, kiváló közlekedéssel.

Pest megye, Vác, Kisvác
Igazi lehetőség Vác szívében – tégla lakás kiváló közlekedéssel! Eladásra kínálunk egy remek adottságokkal rendelkező 32 m2-es, társasházi téglalakást Vác keresett részén. A lakáshoz tartozik saját...
Belső terület
32 m²
Szobák
1

35 M Ft

eladó új építésű téglalakás, Vác

eladó új építésű téglalakás

Pest megye, Vác, Deákvár
PÁRATLAN PANORÁMA A VÁROSRA!!! ENERGETIKAI MINŐSÉG SZERINTI BESOROLÁS: AA++ Örökpanoráma,modern kivitelezés, gyönyörű környezet jellemzi a társasházat, melyet megvételre kínálunk. A modern épüle...
Belső terület
173 m²
Szobák
4

175 M Ft

Új építésű!
Új építésű
eladó téglalakás, Vác

eladó téglalakás

Pest megye, Vác
Eladóvá vált Vácon egy 49 m2-es, 2 szobás, tégla építésű lakás! A lakás csendes, tiszta, liftes házban található, a legfelső szinten, felső szomszéd hiányában teljes nyugalma lehet az itt lakóknak....
Belső terület
49 m²
Szobák
2
Emelet
5

55 M Ft

eladó téglalakás, Vác

eladó téglalakás

Pest megye, Vác, (Deákvár), Újhegyi út
Vác Deákvár városrészén, az Újhegyi úton kínálok megvételre egy magasföldszinti elhelyezkedésű, erkélyes, tégla falazatú társasházi lakást, amely kiváló választás lehet saját otthonnak vagy akár befek...
Belső terület
57 m²
Szobák
2

56.99 M Ft

eladó téglalakás, Vác

eladó téglalakás

Eladó földszinti tégla lakás Vác szívében! Központi helyen, kiváló közlekedéssel – álmai lakását most találja meg! ➡️ 59.9 millió Ft. Ragadja meg ezt a lehetőséget Vác nyüzsgő központjában! ✨ #eladó #václakás

Pest megye, Vác, Belváros
Eladó földszinti tégla lakás Vác központjában! Kiemelkedő lehetőség váci lakásvásárlóknak: most kínálunk megvételre egy földszinten található tégla építésű lakást Vác egyik legkedveltebb részen, ki...
Belső terület
51 m²
Szobák
2
Emelet
földszint

59.9 M Ft

eladó téglalakás, Vác

eladó téglalakás

Pest megye, Vác, Václiget
Eladó új építésű, akadálymentes lakás Vácon – kiváló befektetés! Ár (cégek részére): 39 millió Ft + ÁFA (nettó) Vác déli részén, modern társasházban eladó egy 50 m²-es, földszinti, teljesen akadál...
Belső terület
50 m²
Szobák
1+1
Emelet
földszint

49.9 M Ft

eladó téglalakás, Vác

eladó téglalakás

Eladó igényesen felújított 1. emeleti garzon lakás!

Pest megye, Vác
Eladó igényesen felújított 1. emeleti, erkélyes garzon lakás! A 47 nm-es lakás minden részletében a minőséget képviseli. Teljes körű felújítás során minden megújult: modern nyílászárók, burkolatok, v...
Belső terület
47 m²
Szobák
1+1
Emelet
1

64 M Ft

Pest megye - Vác
Pest megye - Vác
Pest megye - Vác
Pest megye - Vác
Pest megye - Vác
Pest megye - Vác
Pest megye - Vác
Pest megye - Vác
Pest megye - Vác
Pest megye - Vác
Pest megye - Vác
Pest megye - Vác
Pest megye - Vác
Pest megye - Vác
Pest megye - Vác
Pest megye - Vác
Pest megye - Vác
Pest megye - Vác
Pest megye - Vác
Pest megye - Vác
Pest megye - Vác
Pest megye - Vác
Pest megye - Vác
Pest megye - Vác
Pest megye - Vác
Pest megye - Vác
Pest megye - Vác
Pest megye - Vác
Pest megye - Vác
Pest megye - Vác
Pest megye - Vác
Pest megye - Vác
Pest megye - Vác