Eladó téglalakás - Gyula

KAPCSOLAT
Lengyel Géza


+36 30 928

inter@

Az időpont kérés naptár ikonja
IDŐPONTOT KÉREK
A visszahívás kérés telefon ikonja egy azt körbe ölelő nyíllal
VISSZAHÍVÁST KÉREK
Ajánlom egy ismerősömnek ikon
AJÁNLOM EGY ISMERŐSÖMNEK
Facebook megosztás ikon
MEGOSZTÁS

KAPCSOLATFELVÉTEL

Küldés

Az üzenetet sikeresen elküldtük!
Hiba történt!
INGATLAN ADATAI

Ingatlan jellege

téglalakás

Belső terület

110 m²

Tájolás

észak

Építési állapot

használt

Építési mód

vályog

Szobák száma

3 szoba

Emelet

nincs emelet.

Épület szintje

1.

Épült

kb. 1950

Lift

nincs

Ingatlan állapot

kívül: jó
belül: jó

Fűtés

központi fűtés

Komfort

összkomfort

Energetika

nincs megadva

Az időpont kérés naptár ikonja
HTML
Az időpont kérés naptár ikonja
PDF
Eladó téglalakás
Ingatlan azonosító:
40_int

Békés megye, Gyula, Budai Nagy Antal utca

Irányár

45.9 M Ft
(417.27 E Ft/㎡)

Szobák

3 szoba

Terület

110 m²
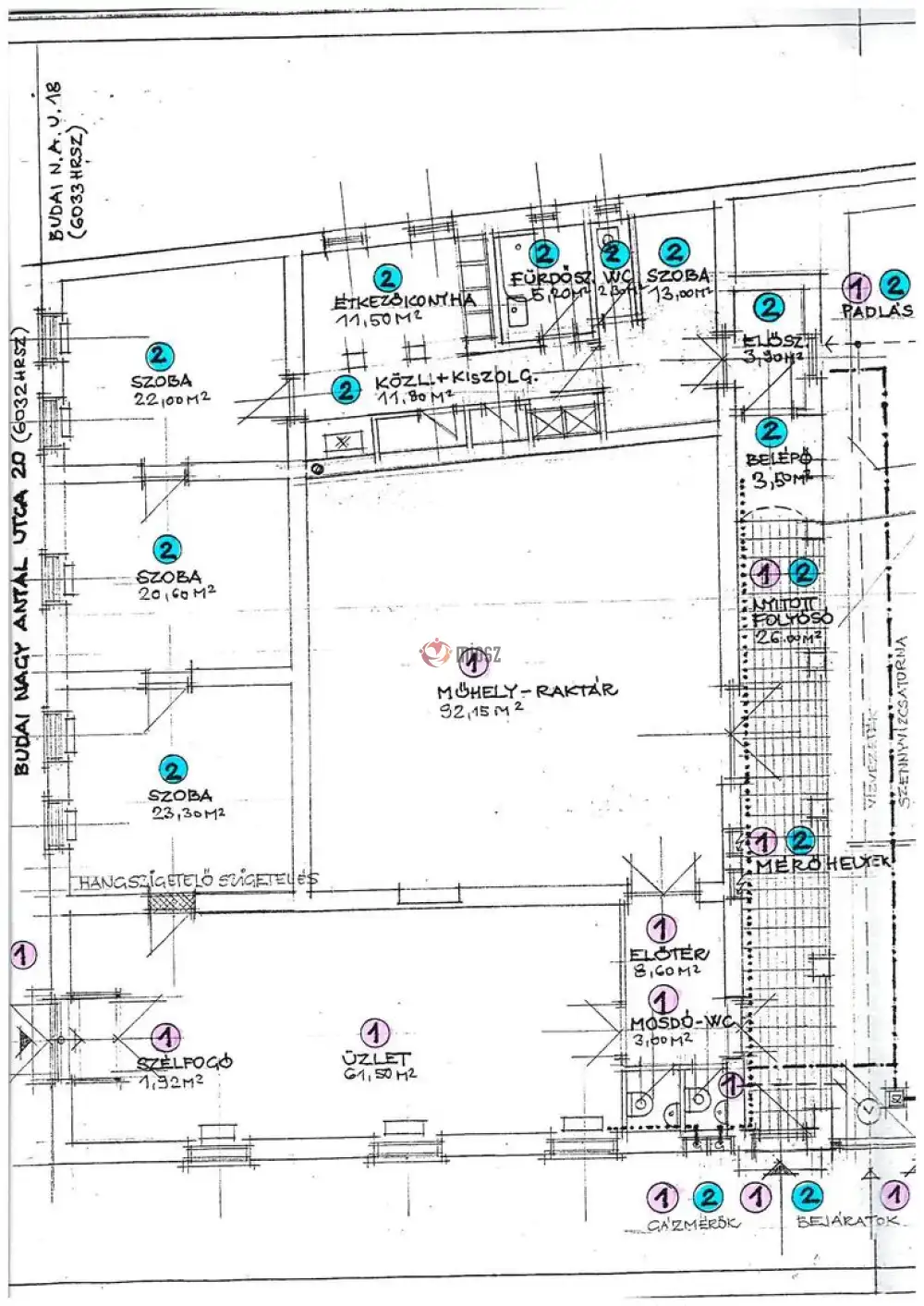
INGATLAN LEÍRÁSA
ELADÓ!
Gyula (Békés vármegye),
Budai Nagy Antal u. (Németváros),
1.192 m2-es területen, társasházi, téglafalazatú ingatlan,
110 m2-es, felújított, korszerűsített, 3 szobás,
összkomfortos lakás, 29 m2-es garázzsal, filagóriával,
fémszerkezetű udvari tárolóval.

INGATLAN ADATAI

Ingatlan jellege
téglalakás
Belső terület
110 m²
Tájolás
észak
Építési állapot
használt
Építési mód
vályog
Szobák száma
3 szoba
Emelet
nincs emelet.
Épület szintje
1.
Épült
kb. 1950
Lift
nincs
Ingatlan állapot
kívül: jó
belül: jó
Fűtés
központi fűtés
Komfort
összkomfort
Energetika
nincs megadva

Hitelkalkulátor


KAPCSOLAT
Lengyel Géza
Lengyel Géza


+36 30 928 5323

inter@inter.ingatlan.hu

KAPCSOLAT
Lengyel Géza

+36 30 928

inter@

Az időpont kérés naptár ikonja
IDŐPONTOT KÉREK
A visszahívás kérés telefon ikonja egy azt körbe ölelő nyíllal
VISSZAHÍVÁST KÉREK
Ajánlom egy ismerősömnek ikon
AJÁNLOM EGY ISMERŐSÖMNEK
Facebook megosztás ikon
MEGOSZTÁS

KAPCSOLATFELVÉTEL

Küldés

Az üzenetet sikeresen elküldtük!
Hiba történt!
INGATLAN ADATAI

Ingatlan jellege

téglalakás

Belső terület

110 m²

Tájolás

észak

Építési állapot

használt

Építési mód

vályog

Szobák száma

3 szoba

Emelet

nincs emelet.

Épület szintje

1.

Épült

kb. 1950

Lift

nincs

Ingatlan állapot

kívül: jó
belül: jó

Fűtés

központi fűtés

Komfort

összkomfort

Energetika

nincs megadva

Az időpont kérés naptár ikonja
HTML
Az időpont kérés naptár ikonja
PDF

Hasonló ingatlan hírdetések

Eladó tégla-, vagy panellakás hirdetést keres Gyula területén?
Tekintse meg további ajánlatainkat!

eladó téglalakás, Gyula

eladó téglalakás

Otthonok, melyek történeteket mesélnek.

Békés megye, Gyula, (Fürdőövezet), Halász sor
Szegedi ingatlan beszámítással/cserével! Fedezze fel ezt a kivételes lehetőséget Gyula egyik legkeresettebb részén, a Fürdőövezetben, közvetlenül a folyóparton! A környék kiváló tömegközlekedéssel...
Belső terület
220 m²
Szobák
6

106 M Ft

eladó téglalakás, Gyula

eladó téglalakás

Otthonok, melyek történeteket mesélnek

Békés megye, Gyula, (Újváros), Budapest körút
Kiváló lehetőséget kínálunk azon vevők számára, akik egy kényelmes otthont keresnek Gyulán, a Budapest körúton. Ez az 59 nm-es, 2 szobás téglalakás a 4. emeleten található, é...
Belső terület
59 m²
Szobák
2
Emelet
4

30.09 M Ft

Békés megye - Gyula
Békés megye - Gyula
Békés megye - Gyula
Békés megye - Gyula
Békés megye - Gyula
Békés megye - Gyula
Békés megye - Gyula
Békés megye - Gyula