Eladó téglalakás - Budapest, XVIII. kerület

Új építésű!
Új építésű
KAPCSOLAT
Kiss Jutka


+36 20 334

arenaingatlanok@

Az időpont kérés naptár ikonja
IDŐPONTOT KÉREK
A visszahívás kérés telefon ikonja egy azt körbe ölelő nyíllal
VISSZAHÍVÁST KÉREK
Ajánlom egy ismerősömnek ikon
AJÁNLOM EGY ISMERŐSÖMNEK
Facebook megosztás ikon
MEGOSZTÁS

KAPCSOLATFELVÉTEL

Küldés

Az üzenetet sikeresen elküldtük!
Hiba történt!
INGATLAN ADATAI

Ingatlan jellege

téglalakás

Belső terület

93 m²

Tájolás

délkelet

Építési állapot

használt

Építési mód

tégla

Szobák száma

4 szoba

Kert

(közös kerthasználat)

Terasz

23 m²

Emelet

1.

Épület szintje

2.

Épült

2025

Lift

nincs

Ingatlan állapot

kívül: új
belül: új

Klíma

van

Szigetelés

12 cm

Ablak szerkezete

3 rétegű thermoplan

Fűtés

hőszivattyús

Komfort

duplakomfort

Parkolás

van önálló garázs

Energetika

nincs megadva

Az időpont kérés naptár ikonja
HTML
Az időpont kérés naptár ikonja
PDF
Eladó téglalakás
Ingatlan azonosító:
1318_ar

Budapest, XVIII. kerület, Bókay telep

Irányár

120.6 M Ft
(1.3 M Ft/㎡)

Szobák

4 szoba

Emelet

1

Terület

93 m²
INGATLAN LEÍRÁSA
Eladó ÚJ ÉPÍTÉSŰ, ENERGIATAKARÉKOS lakások a XVIII. kerületben, 4 lakásos házban!
BERUHÁZÓI ÁRON!

FOLYAMATBAN LÉVŐ ÉPÍTKEZÉS!

Eladó a XVIII. kerületben, a Bókaytelepen, ÚJ ÉPÍTÉSŰ 4 lakásos házban, emeleti 65 nm-es, amerikai konyhás nappali + 3 szobás, dupla komfortos lakás, 23 nm-es terasszal.

A lakás praktikus belső kialakítású: amerikai konyhás nappali, 3 hálószoba, 2 fürdőszoba.

További lakások:
földszint:
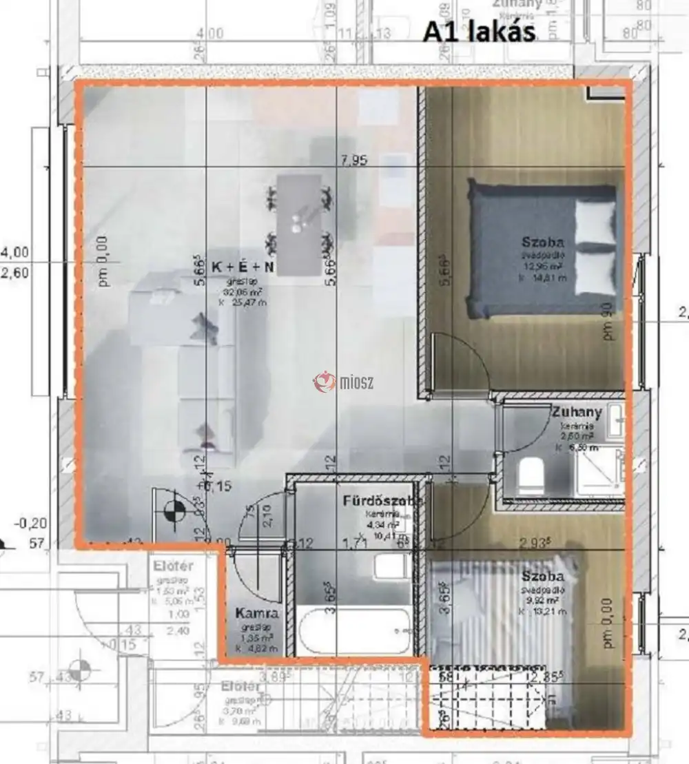
A1- es lakás: 66 nm, amerikai konyhás nappali + 2 szoba, kamra, 2 fürdőszoba, ár: 79.99MFt
B1-es lakás: 69 nm, amerikai konyhás nappali + 2 szoba, fürdőszoba, vendég WC, 80 nm-es kizárólagos használatú kert, ár: 83.99MFt

emelet:
A2 lakás: 93 nm, amerikai konyhás nappali + 3 szoba, 2 fürdőszoba, 23 nm tetőterasz, ár: 120.6MFt
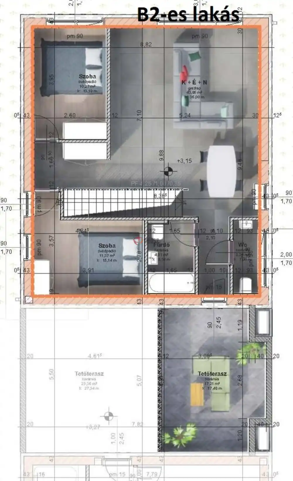
B2 lakás: 75 nm, amerikai konyhás nappali + 2 szoba, fürdőszoba, vendég WC, 17 nm terasz, ár: 99.99MFt

A lakásokhoz garázs vagy gépkocsi beálló vásárolható, melyek árát a vételár nem tartalmazza.
Garázs ára: +5.5MFt, gépkocsi beálló + 1.5MFt.

Az ingatlan maximális energiahatékonyságát a korszerű építőanyagok és technológia biztosítja:
- főfalak 30-as Porotherm téglából, 12 cm-es dryvit szigeteléssel
- Bramac Teglit Star beton cserépfedés,
- 3 rétegű üvegezésű műanyag nyílászárók, kívül világos szürke, belül fehér színben,
- redőnytok előkészítés, igény esetén – értékegyeztetéssel – redőnnyel, szúnyoghálóval,
- monoblokkos hőszivattyús fűtés, padlófűtéssel,
- magas oldalfali fan coil,
- választható burkolatok, szaniterek, belső ajtók.

Hívjon a részletekért, a részletes műszaki tartalomért.

A környék infrastruktúrája kiváló, tömegközlekedés, bevásárlási lehetőség a közelben elérhető.

Irodánk ÚJ ÉPÍTÉSŰ ingatlanok specialistája, felkészült értékesítőkkel!
Jogi háttérrel (kedvező díjazással) és az egyik legjobb, bank semleges HITELKÖZVETÍTŐVEL segítjük vásárlását.
Hitelszakértőnk teljes körű ügyintézéssel áll Vevőink rendelkezésére, legyen szó OTTHON START, CSOK+, BABAVÁRÓ vagy a legjobb piaci hitelről.
Új építésű ingatlanjainkat BERUHÁZÓI ÁRON értékesítjük!

Amennyiben értékesíteni kívánja ingatlanát, irodánk egyedi, kedvező ajánlattal áll rendelkezésére!

INGATLAN ADATAI

Ingatlan jellege
téglalakás
Belső terület
93 m²
Tájolás
délkelet
Építési állapot
használt
Építési mód
tégla
Szobák száma
4 szoba
Kert
(közös kerthasználat)
Terasz
23 m²
Emelet
1.
Épület szintje
2.
Épült
2025
Lift
nincs
Ingatlan állapot
kívül: új
belül: új
Klíma
van
Szigetelés
12 cm
Ablak szerkezete
3 rétegű thermoplan
Fűtés
hőszivattyús
Komfort
duplakomfort
Parkolás
van önálló garázs
Energetika
nincs megadva
TÉRKÉP

Budapest, XVIII. kerület, Bókay telep

Hitelkalkulátor


KAPCSOLAT
Kiss Jutka
Kiss Jutka


+36 20 334 3328

arenaingatlanok@gmail.com

KAPCSOLAT
Kiss Jutka

+36 20 334

arenaingatlanok@

Az időpont kérés naptár ikonja
IDŐPONTOT KÉREK
A visszahívás kérés telefon ikonja egy azt körbe ölelő nyíllal
VISSZAHÍVÁST KÉREK
Ajánlom egy ismerősömnek ikon
AJÁNLOM EGY ISMERŐSÖMNEK
Facebook megosztás ikon
MEGOSZTÁS

KAPCSOLATFELVÉTEL

Küldés

Az üzenetet sikeresen elküldtük!
Hiba történt!
INGATLAN ADATAI

Ingatlan jellege

téglalakás

Belső terület

93 m²

Tájolás

délkelet

Építési állapot

használt

Építési mód

tégla

Szobák száma

4 szoba

Kert

(közös kerthasználat)

Terasz

23 m²

Emelet

1.

Épület szintje

2.

Épült

2025

Lift

nincs

Ingatlan állapot

kívül: új
belül: új

Klíma

van

Szigetelés

12 cm

Ablak szerkezete

3 rétegű thermoplan

Fűtés

hőszivattyús

Komfort

duplakomfort

Parkolás

van önálló garázs

Energetika

nincs megadva

Az időpont kérés naptár ikonja
HTML
Az időpont kérés naptár ikonja
PDF

Hasonló ingatlan hírdetések

Eladó tégla-, vagy panellakás hirdetést keres Budapesten a XVIII. kerületben?
Tekintse meg további ajánlatainkat!

eladó téglalakás, Budapest, XVIII. kerület

eladó téglalakás

Budapest, XVIII. kerület, Bókay telep
XVIII. kerületében, a Gloriett-telepen található ez a 427 m2-es telken lévő, 119 m2-es, két szintes CSALÁDI HÁZ. - 1982-ben épült tégla falazatú - beépített tetőtér könnyen leválasztható, akár két...
Belső terület
119 m²
Szobák
3+1

114.9 M Ft

eladó téglalakás, Budapest, XVIII. kerület

eladó téglalakás

Most KEDVEZŐ ÁRON eladó a 18. kerületben, Pestszentlőrinc központjában egy 68 m2-es, nappali + 2 hálós penthouse jellegű lakás 77 m2-es panorámás terasszal!

Budapest, XVIII. kerület, Miklóstelep
Most KEDVEZŐ ÁRON eladó a 18. kerületben, Pestszentlőrinc központjában egy 68 m2-es, nappali + 2 hálós penthouse jellegű lakás 77 m2-es panorámás terasszal! Rendkívül jó, frekventált helyen, csende...
Belső terület
68 m²
Szobák
2+1
Emelet
4

109.99 M Ft

eladó panellakás, Budapest, XVIII. kerület

eladó panellakás

Budapest, XVIII. kerület, Havanna ltp.
Eladó világos, 2+1 félszobás lakás a XVIII. kerületben! A Havanna utcában, egy 10 emeletes panelház 1. emeletén, DK-i tájolással eladó egy 2+1 félszobás, világos, jó elosztású lakás. A lépcsőház...
Belső terület
72 m²
Szobák
2+1
Emelet
1

64.8 M Ft

eladó téglalakás, Budapest, XVIII. kerület

eladó téglalakás

KÉNYELMES, TÁGAS, 2+2 SZOBÁS BELSŐ KÉTSZINTES LAKÁS!

Budapest, XVIII. kerület, Bókay telep
KÉNYELMES, TÁGAS, 2+2 SZOBÁS BELSŐ KÉTSZINTES LAKÁS! Budapest XVIII. kerületében, a Bókaytelep csendes, nyugodt utcájában kínálunk eladásra egy hatlakásos társasház első emeletén lévő 2+2 szobás, b...
Belső terület
104 m²
Szobák
2+2
Emelet
2

95 M Ft

CSOK igényelhető
CSOK igényelhető
eladó téglalakás, Budapest, XVIII. kerület

eladó téglalakás

Budapest, XVIII. kerület, Bókay telep
Eladó ÚJ ÉPÍTÉSŰ, ENERGIATAKARÉKOS lakások a XVIII. kerületben, 4 lakásos házban! BERUHÁZÓI ÁRON! FOLYAMATBAN LÉVŐ ÉPÍTKEZÉS! Eladó a XVIII. kerületben, a Bókaytelepen, ÚJ ÉPÍTÉSŰ 4 lakásos h...
Belső terület
66 m²
Szobák
3
Emelet
földszint

79.99 M Ft

Új építésű!
Új építésű
eladó új építésű téglalakás, Budapest, XVIII. kerület

eladó új építésű téglalakás

Budapest, XVIII. kerület, Bókay telep
Eladó ÚJ ÉPÍTÉSŰ, ENERGIATAKARÉKOS lakások a XVIII. kerületben, 4 lakásos házban! BERUHÁZÓI ÁRON! FOLYAMATBAN LÉVŐ ÉPÍTKEZÉS! Eladó a XVIII. kerületben, a Bókaytelepen, ÚJ ÉPÍTÉSŰ 4 lakásos ház...
Belső terület
75 m²
Szobák
3
Emelet
1

99.99 M Ft

Új építésű!
Új építésű
eladó téglalakás, Budapest, XVIII. kerület

eladó téglalakás

Budapest, XVIII. kerület, Bókay telep
Eladó ÚJ ÉPÍTÉSŰ, ENERGIATAKARÉKOS lakások a XVIII. kerületben, 4 lakásos házban! BERUHÁZÓI ÁRON! FOLYAMATBAN LÉVŐ ÉPÍTKEZÉS! Eladó a XVIII. kerületben, a Bókaytelepen, ÚJ ÉPÍTÉSŰ 4 lakásos h...
Belső terület
69 m²
Szobák
3
Emelet
földszint

83.99 M Ft

Új építésű!
Új építésű
eladó téglalakás, Budapest, XVIII. kerület

eladó téglalakás

Eladó a 18. kerületben, Szemeretelep kedvelt, családias lakóövezetében, egyik csendes, ősfákkal teli utcájában egy önálló, saját kis kerttel és garázzsal rendelkező, 87 nm alapterületű, 1. emeleti, 3 szobás, rendkívül kényelmes, jó atmoszférájú, körbenapozott lakás!

Budapest, XVIII. kerület, Szemere telep
Eladó a 18. kerületben, Szemeretelep kedvelt, családias lakóövezetében, egyik csendes, ősfákkal teli utcájában egy önálló, saját kis kerttel és garázzsal rendelkező, 87 nm alapterületű, 1. emeleti, 3 ...
Belső terület
87 m²
Szobák
3
Emelet
1

94 M Ft

Budapest, XVIII. kerület - Bókay telep
Budapest, XVIII. kerület - Bókay telep
Budapest, XVIII. kerület - Bókay telep
Budapest, XVIII. kerület - Bókay telep
Budapest, XVIII. kerület - Bókay telep
Budapest, XVIII. kerület - Bókay telep
Budapest, XVIII. kerület - Bókay telep
Budapest, XVIII. kerület - Bókay telep
Budapest, XVIII. kerület - Bókay telep
Budapest, XVIII. kerület - Bókay telep
Budapest, XVIII. kerület - Bókay telep
Budapest, XVIII. kerület - Bókay telep
Budapest, XVIII. kerület - Bókay telep