Eladó újszerű téglalakás - Budapest, XIII. kerület

KAPCSOLAT
Bakos Zsuzsanna


+36 20 974

zsuzsanna.bakos@

Az időpont kérés naptár ikonja
IDŐPONTOT KÉREK
A visszahívás kérés telefon ikonja egy azt körbe ölelő nyíllal
VISSZAHÍVÁST KÉREK
Ajánlom egy ismerősömnek ikon
AJÁNLOM EGY ISMERŐSÖMNEK
Facebook megosztás ikon
MEGOSZTÁS

KAPCSOLATFELVÉTEL

Küldés

Az üzenetet sikeresen elküldtük!
Hiba történt!
INGATLAN ADATAI

Ingatlan jellege

téglalakás

Belső terület

42 m²

Tájolás

kelet

Építési állapot

újszerű

Építési mód

tégla

Szobák száma

2 szoba

Szobák elhelyezkedése

külön nyílik min. 2 szoba

Erkély

10 m²

Emelet

3.

Épület szintje

8.

Épült

2021

Lift

van

Ingatlan állapot

kívül: újszerű
belül: újszerű

Klíma

van

Ablak szerkezete

3 rétegű thermoplan

Fűtés

központi egyedi méréssel

Komfort

összkomfort

Parkolás

van teremgarázs

Kilátás

utcára

Energetika

nincs megadva

Az időpont kérés naptár ikonja
HTML
Az időpont kérés naptár ikonja
PDF
Eladó újszerű téglalakás
Ingatlan azonosító:
1543_bl

Budapest, XIII. kerület, Angyalföld, Taksony u.

Irányár

97 M Ft
(2.31 M Ft/㎡)

Szobák

2 szoba

Emelet

3

Terület

42 m²
INGATLAN LEÍRÁSA
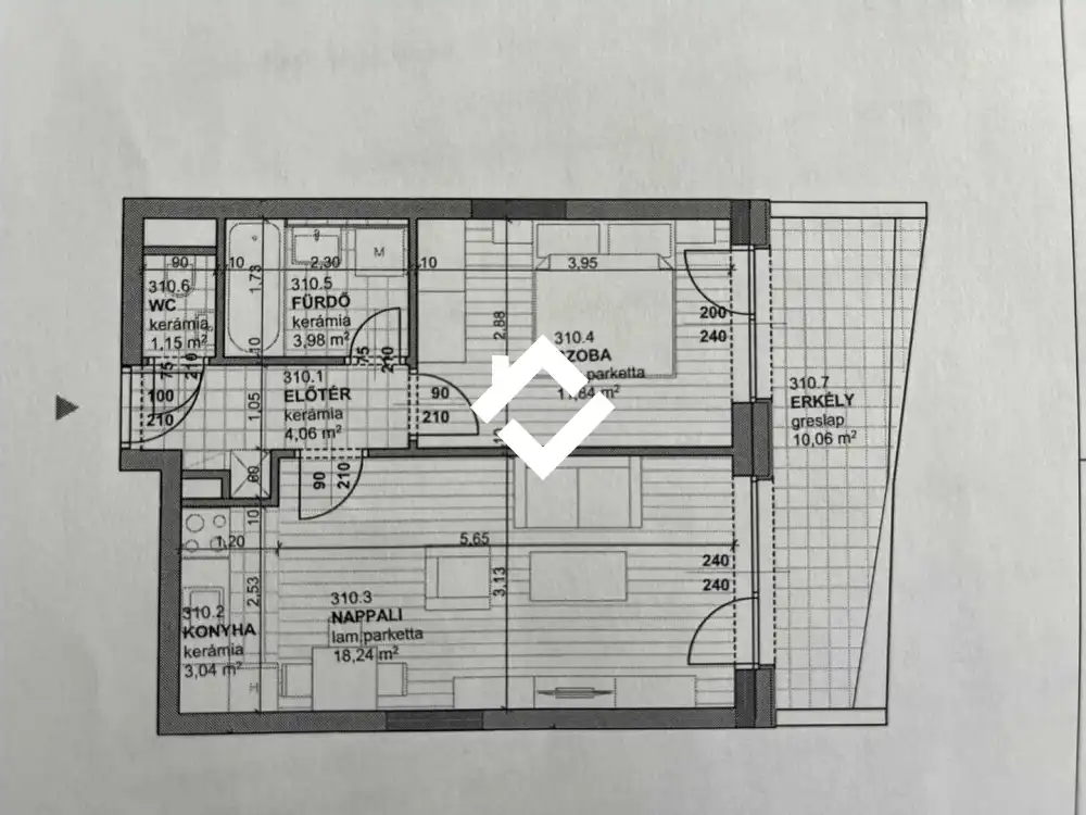
Green Court II-ben, Taksony utcában 2021-ben épült modern társasházban eladó csöndes, napfényes 3. emeleti, 42 nm + 10 nm erkély alapterületű, 2 külön nyíló szobás lakás. A lakásban amerikai konyhás nappali étkezővel, egy hálószoba, kádas fürdőszoba, külön wc és előszoba helyiségek találhatók. A konyhában beépített gépek: sütő, főzőlap, kombinált hűtő, szagelszívó. Nappaliban klíma. A lakás keleti tájolású sok napfénnyel. A terasz csendes, kis forgalmú utcára néz.

A társasház liftes, bekamerázott, szépen karbantartott, földszintjén kávézóval és pékséggel, alatta teremgarázzsal.

Közös költség lakásra 18.000 Ft, garázsra 3200 Ft. Házközponti fűtés egyedi mérővel. A lakáshoz tartozik egy teremgarázshely, ami külön díjért megvásárolható, +8M Ft-ért.

A környéken kiváló tömegközlekedés (M3 metró, villamos, busz, troli pár perc sétára), és infrastruktúra (Lehel téri piac és a Westend gyalogosan könnyen elérhető, park, játszótér, fitnesz terem a közelben)
Fiataloknak, pároknak, valamint befektetésre is kiváló választás.

A hirdetésben szereplő BERENDEZTT FOTÓK (nappali kanapé, hálószoba franciaágy) LÁTVÁNYTERVEK.

INGATLAN ADATAI

Ingatlan jellege
téglalakás
Belső terület
42 m²
Tájolás
kelet
Építési állapot
újszerű
Építési mód
tégla
Szobák száma
2 szoba
Szobák elhelyezkedése
külön nyílik min. 2 szoba
Erkély
10 m²
Emelet
3.
Épület szintje
8.
Épült
2021
Lift
van
Ingatlan állapot
kívül: újszerű
belül: újszerű
Klíma
van
Ablak szerkezete
3 rétegű thermoplan
Fűtés
központi egyedi méréssel
Komfort
összkomfort
Parkolás
van teremgarázs
Kilátás
utcára
Energetika
nincs megadva
TÉRKÉP

Budapest, XIII. kerület, Angyalföld, Taksony u.

Hitelkalkulátor


KAPCSOLAT
Bakos Zsuzsanna
Bakos Zsuzsanna


+36 20 974 0571

zsuzsanna.bakos@t-online.hu

KAPCSOLAT
Bakos Zsuzsanna

+36 20 974

zsuzsanna.bakos@

Az időpont kérés naptár ikonja
IDŐPONTOT KÉREK
A visszahívás kérés telefon ikonja egy azt körbe ölelő nyíllal
VISSZAHÍVÁST KÉREK
Ajánlom egy ismerősömnek ikon
AJÁNLOM EGY ISMERŐSÖMNEK
Facebook megosztás ikon
MEGOSZTÁS

KAPCSOLATFELVÉTEL

Küldés

Az üzenetet sikeresen elküldtük!
Hiba történt!
INGATLAN ADATAI

Ingatlan jellege

téglalakás

Belső terület

42 m²

Tájolás

kelet

Építési állapot

újszerű

Építési mód

tégla

Szobák száma

2 szoba

Szobák elhelyezkedése

külön nyílik min. 2 szoba

Erkély

10 m²

Emelet

3.

Épület szintje

8.

Épült

2021

Lift

van

Ingatlan állapot

kívül: újszerű
belül: újszerű

Klíma

van

Ablak szerkezete

3 rétegű thermoplan

Fűtés

központi egyedi méréssel

Komfort

összkomfort

Parkolás

van teremgarázs

Kilátás

utcára

Energetika

nincs megadva

Az időpont kérés naptár ikonja
HTML
Az időpont kérés naptár ikonja
PDF

Hasonló ingatlan hírdetések

Eladó újszerű tégla-, vagy panellakás hirdetést keres Budapesten a XIII. kerületben?
Tekintse meg további ajánlatainkat!

eladó téglalakás, Budapest, XIII. kerület

eladó téglalakás

Budapest, XIII. kerület, Újlipótváros
Városi elegancia a XIII. kerület szívében – ahol a lokáció önmagában érték A XIII. kerület egyik legkeresettebb, hangulatos részén, a Visegrádi utca elején kínálunk megvételre egy 26 m²-es, kiváló ...
Belső terület
26 m²
Szobák
1
Emelet
1

49.99 M Ft

eladó téglalakás, Budapest, XIII. kerület

eladó téglalakás

Ritka lehetőség ! 35 nm lakás 18 nm terasszal

Budapest, XIII. kerület, Angyalföld
Ritka Lehetőség! 35 nm-es lakás 18-nm terasszal a XIII. kerületben -újszerű házban Eladó XIII. kerület a Kerekes utcában a modern, különleges ZIg-Zag házban egy 35 nm praktikus elosztású lakás, ame...
Belső terület
35 m²
Szobák
1
Emelet
1

64.9 M Ft

eladó téglalakás, Budapest, XIII. kerület

eladó téglalakás

Budapest, XIII. kerület, Angyalföld
Eladó felújított, 3 szobás lakás – kiváló lokáció, ide csak költözni kell, XIII. kerület❗️ Budapest XIII. kerületében, egy csendes, mégis kiváló elhelyezkedésű utcában kínálunk eladásra egy 3 szobá...
Belső terület
66 m²
Szobák
3

95 M Ft

eladó új építésű téglalakás, Budapest, XIII. kerület

eladó új építésű téglalakás

Budapest, XIII. kerület, Angyalföld
ÚJ PROJEKT ÉPÍTÉSE ELINDULT A 13. KERÜLETBEN!! 2027 4. N.ÉV-I KÖLTÖZÉSSEL! 5 % ÁFA VISSZAIGÉNYLÉSSEL! 10-90% fizetési ütemezés!! A LAKÁSOK 50 %-A MÁR ÉRTÉKESÍTVE! LAKÁS 91,89 NM + TERASZ 48,63 N...
Belső terület
92 m²
Szobák
4
Emelet
9

193.49 M Ft

Panorámás!
Panorámás
eladó új építésű téglalakás, Budapest, XIII. kerület

eladó új építésű téglalakás

Budapest, XIII. kerület, Angyalföld
ÚJ PROJEKT ÉPÍTÉSE ELINDULT A 13. KERÜLETBEN!! 2027 4. N.ÉV-I KÖLTÖZÉSSEL! 5 % ÁFA VISSZAIGÉNYLÉSSEL! 10-90% fizetési ütemezés!! A LAKÁSOK 50 %-A MÁR ÉRTÉKESÍTVE! LAKÁS 50,64 NM + ERKÉLY 12,4 NM...
Belső terület
51 m²
Szobák
2
Emelet
8

107.99 M Ft

Energiatahatékony!
Energiatahatékony
eladó új építésű téglalakás, Budapest, XIII. kerület

eladó új építésű téglalakás

Budapest, XIII. kerület, Angyalföld
ÚJ PROJEKT ÉPÍTÉSE ELINDULT A 13. KERÜLETBEN!! 2027 4. N.ÉV-I KÖLTÖZÉSSEL! 5 % ÁFA VISSZAIGÉNYLÉSSEL! 10-90% fizetési ütemezés!! A LAKÁSOK 50 %-A MÁR ÉRTÉKESÍTVE! LAKÁS 86 NM + ERKÉLY 9,36! A...
Belső terület
86 m²
Szobák
4
Emelet
8

151.49 M Ft

Alacsony rezsi!
Alacsony rezsi
eladó új építésű téglalakás, Budapest, XIII. kerület

eladó új építésű téglalakás

Budapest, XIII. kerület, Angyalföld
ÚJ PROJEKT ÉPÍTÉSE ELINDULT A 13. KERÜLETBEN!! 2027 4. N.ÉV-I KÖLTÖZÉSSEL! 5 % ÁFA VISSZAIGÉNYLÉSSEL! 10-90% fizetési ütemezés!! A LAKÁSOK 50 %-A MÁR ÉRTÉKESÍTVE! LAKÁS 64,03 NM + ERKÉLY 5,01 NM...
Belső terület
64 m²
Szobák
3
Emelet
8

121.49 M Ft

Energiatahatékony!
Energiatahatékony
eladó új építésű téglalakás, Budapest, XIII. kerület

eladó új építésű téglalakás

Budapest, XIII. kerület, Angyalföld
ÚJ PROJEKT ÉPÍTÉSE ELINDULT A 13. KERÜLETBEN!! 2027 4. N.ÉV-I KÖLTÖZÉSSEL! 5 % ÁFA VISSZAIGÉNYLÉSSEL! 10-90% fizetési ütemezés!! A LAKÁSOK 50 %-A MÁR ÉRTÉKESÍTVE! LAKÁS 63,16 NM + ERKÉLY 8,89 NM...
Belső terület
63 m²
Szobák
3
Emelet
7

113.49 M Ft

Energiatakarékos!
Energiatakarékos
Budapest, XIII. kerület - Angyalföld
Budapest, XIII. kerület - Angyalföld
Budapest, XIII. kerület - Angyalföld
Budapest, XIII. kerület - Angyalföld
Budapest, XIII. kerület - Angyalföld
Budapest, XIII. kerület - Angyalföld
Budapest, XIII. kerület - Angyalföld
Budapest, XIII. kerület - Angyalföld
Budapest, XIII. kerület - Angyalföld
Budapest, XIII. kerület - Angyalföld
Budapest, XIII. kerület - Angyalföld
Budapest, XIII. kerület - Angyalföld
Budapest, XIII. kerület - Angyalföld
Budapest, XIII. kerület - Angyalföld
Budapest, XIII. kerület - Angyalföld
Budapest, XIII. kerület - Angyalföld
Budapest, XIII. kerület - Angyalföld
Budapest, XIII. kerület - Angyalföld