Eladó téglalakás - Budapest, XI. kerület

KAPCSOLAT
Hosszú Levente


+36 70 456

hosszu.levente@

Az időpont kérés naptár ikonja
IDŐPONTOT KÉREK
A visszahívás kérés telefon ikonja egy azt körbe ölelő nyíllal
VISSZAHÍVÁST KÉREK
Ajánlom egy ismerősömnek ikon
AJÁNLOM EGY ISMERŐSÖMNEK
Facebook megosztás ikon
MEGOSZTÁS

KAPCSOLATFELVÉTEL

Küldés

Az üzenetet sikeresen elküldtük!
Hiba történt!
INGATLAN ADATAI

Ingatlan jellege

téglalakás

Belső terület

100 m²

Tájolás

délnyugat

Építési állapot

használt

Építési mód

tégla

Szobák száma

4 szoba

Kert

(közös kerthasználat)

Erkély

4 m²

Emelet

2.

Épület szintje

3.

Épült

2007

Lift

nincs

Ingatlan állapot

kívül: felújított
belül: felújított

Klíma

van

Fűtés

cirko

Komfort

duplakomfort

Parkolás

van teremgarázs

Kilátás

utcára, kertre, parkra

Energetika

nincs megadva

Az időpont kérés naptár ikonja
HTML
Az időpont kérés naptár ikonja
PDF
Eladó téglalakás
Ingatlan azonosító:
3971_red

Budapest, XI. kerület, Sasad

Irányár

169.5 M Ft
(1.7 M Ft/㎡)

Szobák

4 szoba

Emelet

2

Terület

100 m²
INGATLAN LEÍRÁSA
Napfényes, panorámás lakás eladó Sasad egyik legkedveltebb utcájában!

A XI. kerület elegáns, villaövezeti részén, Sasadon található ez a bruttó 100 m²-es, teljes szintet elfoglaló, panorámás lakás, amelyet a nyugalom és a kiváló fényviszonyok jellemeznek.

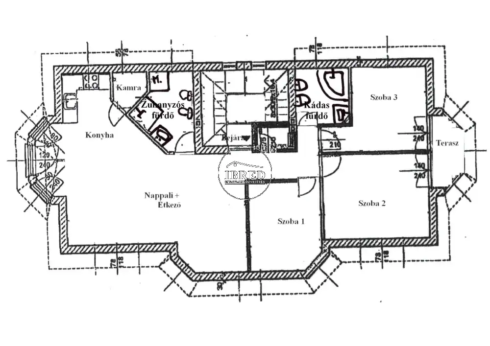
A lakás körbenapozott, NAPPALI + 3 szobás, mindegyik szobája világos és tágas, a nappalihoz étkező és modern, amerikai konyha kapcsolódik.
Két különálló, teljes felszereltségű fürdőszoba, bidével és WC-vel, valamint egy kamra is a lakók kényelmét szolgálja. A klimatizálásról két légkondicionáló, a fűtésről egy új Bosch kondenzációs kazán gondoskodik.

A lakás csak négy lakásos, gondosan karbantartott társasházban helyezkedik el, ahol a rendezett kert és a nyugodt lakóközösség tovább növeli az ingatlan értékét.

A lakás elválaszthatatlan része egy tágas, 32 m²-es teremgarázs és egy külön kerti beálló, amelyek +10 M Ft értékben kötelezően megvásárolandók.

Kérésre alaprajzzal és további képekkel állok rendelkezésére!

INGATLAN ADATAI

Ingatlan jellege
téglalakás
Belső terület
100 m²
Tájolás
délnyugat
Építési állapot
használt
Építési mód
tégla
Szobák száma
4 szoba
Kert
(közös kerthasználat)
Erkély
4 m²
Emelet
2.
Épület szintje
3.
Épült
2007
Lift
nincs
Ingatlan állapot
kívül: felújított
belül: felújított
Klíma
van
Fűtés
cirko
Komfort
duplakomfort
Parkolás
van teremgarázs
Kilátás
utcára, kertre, parkra
Energetika
nincs megadva
TÉRKÉP

Budapest, XI. kerület, Sasad

Hitelkalkulátor


KAPCSOLAT
Hosszú Levente
Hosszú Levente


+36 70 456 1112

hosszu.levente@ibred.hu

KAPCSOLAT
Hosszú Levente

+36 70 456

hosszu.levente@

Az időpont kérés naptár ikonja
IDŐPONTOT KÉREK
A visszahívás kérés telefon ikonja egy azt körbe ölelő nyíllal
VISSZAHÍVÁST KÉREK
Ajánlom egy ismerősömnek ikon
AJÁNLOM EGY ISMERŐSÖMNEK
Facebook megosztás ikon
MEGOSZTÁS

KAPCSOLATFELVÉTEL

Küldés

Az üzenetet sikeresen elküldtük!
Hiba történt!
INGATLAN ADATAI

Ingatlan jellege

téglalakás

Belső terület

100 m²

Tájolás

délnyugat

Építési állapot

használt

Építési mód

tégla

Szobák száma

4 szoba

Kert

(közös kerthasználat)

Erkély

4 m²

Emelet

2.

Épület szintje

3.

Épült

2007

Lift

nincs

Ingatlan állapot

kívül: felújított
belül: felújított

Klíma

van

Fűtés

cirko

Komfort

duplakomfort

Parkolás

van teremgarázs

Kilátás

utcára, kertre, parkra

Energetika

nincs megadva

Az időpont kérés naptár ikonja
HTML
Az időpont kérés naptár ikonja
PDF

Hasonló ingatlan hírdetések

Eladó tégla-, vagy panellakás hirdetést keres Budapesten a XI. kerületben?
Tekintse meg további ajánlatainkat!

eladó téglalakás, Budapest, XI. kerület

eladó téglalakás

Budapest, XI. kerület, Madárhegy
XI. Madárhegyen, 2024-ben átadott prémium lakóparkban, emeleti, napos, 3 szobás nagy teraszos zöldövezeti lakás jó közlekedéssel, eladó. A környezet rendezett, modern, könnyen elérhető az M4 metr...
Belső terület
64 m²
Szobák
3
Emelet
2

159 M Ft

Újszerű!
Újszerű
eladó téglalakás, Budapest, XI. kerület

eladó téglalakás

Budapest, XI. kerület,
Kiválóan megközelíthető helyen, újjáépített Amerikai konyhás nappali + 2 hálós, duplakomfortos, erkélyes otthon elérhető áron! Kategóriájában ritka jó lehetőség. INGATLAN HELYSZÍNE: XI. kerület Lá...
Belső terület
57 m²
Szobák
3
Emelet
2

114 M Ft

Újszerű!
Újszerű
eladó téglalakás, Budapest, XI. kerület

eladó téglalakás

XI. KERÜLET · SPORT11 KÖZVETLEN KÖZELÉBEN · ZÖLDRE NÉZŐ · CSENDES KERTKAPCSOLAT · AKADÁLYMENTES · KÖLTÖZHETŐ · TERMÉSZETKÖZELI, KUTYABARÁT KÖRNYEZET!

Budapest, XI. kerület, Kőérberek, Kánai u.
XI. KERÜLET · SPORT11 KÖZVETLEN KÖZELÉBEN · ZÖLDRE NÉZŐ · CSENDES KERTKAPCSOLAT · AKADÁLYMENTES · KÖLTÖZHETŐ · TERMÉSZETKÖZELI, KUTYABARÁT KÖRNYEZET! Eladó egy 2005-ben épült, első ütemes társasház...
Belső terület
64 m²
Szobák
2+1
Emelet
földszint

114.9 M Ft

kiemelt
Kiemelt
eladó téglalakás, Budapest, XI. kerület

eladó téglalakás

Budapest, XI. kerület, Madárhegy
PRAKTIKUS BEOSZTÁSÚ ÚJSZERŰ ZÖLDÖVEZETI LAKÁS N+3 /1.em ÉLMÉNYPARK BELÉPŐVEL! Extra minőségű, újszerű 1 emeleti 96 nm-es N+3 szobás, 2 fürdőszobás lakás 199 M Ft-ért eladó! A szép világos, megkí...
Belső terület
96 m²
Szobák
4
Emelet
1

199 M Ft

eladó új építésű téglalakás, Budapest, XI. kerület

eladó új építésű téglalakás

Budapest, XI. kerület, Madárhegy
BEST FAMILY MADÁRHEGY KÖZÉPSŐ RÉSZÉN, KIVÁLÓ HELYEN, NAGY KERTTEL Frekventált utcában, csendes helyen épülő N+3 szobás , (akár N+4 szobás is kialakítható ) 115 nm-es , nagy kertes, belső kétszintes ...
Belső terület
115 m²
Szobák
4
Emelet
földszint

249 M Ft

eladó téglalakás, Budapest, XI. kerület

eladó téglalakás

Budapest, XI. kerület, Gellért-hegy
Gellért-hegy egyik legkellemesebb részén, zsákutcában, 12 lakásos társasház felső szintjén található 56 m²- es, panorámás lakás eladó! Amerikai konyhás nappali nagy üveg felületekkel rendelkezik, e...
Belső terület
56 m²
Szobák
2
Emelet
2

130 M Ft

azonnal költözhető
Azonnal költözhető
eladó panellakás, Budapest, XI. kerület

eladó panellakás

Gazdagrét kedvelt részén, a Törökugrató utcában panellakás eladó

Budapest, XI. kerület, Adony utcai ltp.
KIZÁRÓLAG NÁLUNK! Gazdagért kedvelt részén a Törökugrató utcában kínálunk eladásra, egy harmadik emeleti, 74nm-es, nappali, étkező konyhás, kettő külön nyíló szobás jó állapotú ingatlant. A laká...
Belső terület
74 m²
Szobák
3
Emelet
3

98.9 M Ft

kiemelt
Kiemelt
eladó panellakás, Budapest, XI. kerület

eladó panellakás

Budapest, XI. kerület, Adony utcai ltp.
Otthon Start Programra ideális választás! Kiválóan megközelíthető helyen, 3 szobás, napfényes otthon ideális méretű loggiával! INGATLAN HELYSZÍNE: XI. kerület Albertfalva részén található, a Fehé...
Belső terület
61 m²
Szobák
2+1
Emelet
3

79.99 M Ft

akciós ár
Akciós
Budapest, XI. kerület - Sasad
Budapest, XI. kerület - Sasad
Budapest, XI. kerület - Sasad
Budapest, XI. kerület - Sasad
Budapest, XI. kerület - Sasad
Budapest, XI. kerület - Sasad
Budapest, XI. kerület - Sasad
Budapest, XI. kerület - Sasad
Budapest, XI. kerület - Sasad
Budapest, XI. kerület - Sasad
Budapest, XI. kerület - Sasad
Budapest, XI. kerület - Sasad
Budapest, XI. kerület - Sasad