Eladó téglalakás - Budapest, V. kerület

KAPCSOLAT
Kovács Barbara


+36 30 915

proluxingatlaniroda@

Az időpont kérés naptár ikonja
IDŐPONTOT KÉREK
A visszahívás kérés telefon ikonja egy azt körbe ölelő nyíllal
VISSZAHÍVÁST KÉREK
Ajánlom egy ismerősömnek ikon
AJÁNLOM EGY ISMERŐSÖMNEK
Facebook megosztás ikon
MEGOSZTÁS

KAPCSOLATFELVÉTEL

Küldés

Az üzenetet sikeresen elküldtük!
Hiba történt!
INGATLAN ADATAI

Ingatlan jellege

téglalakás

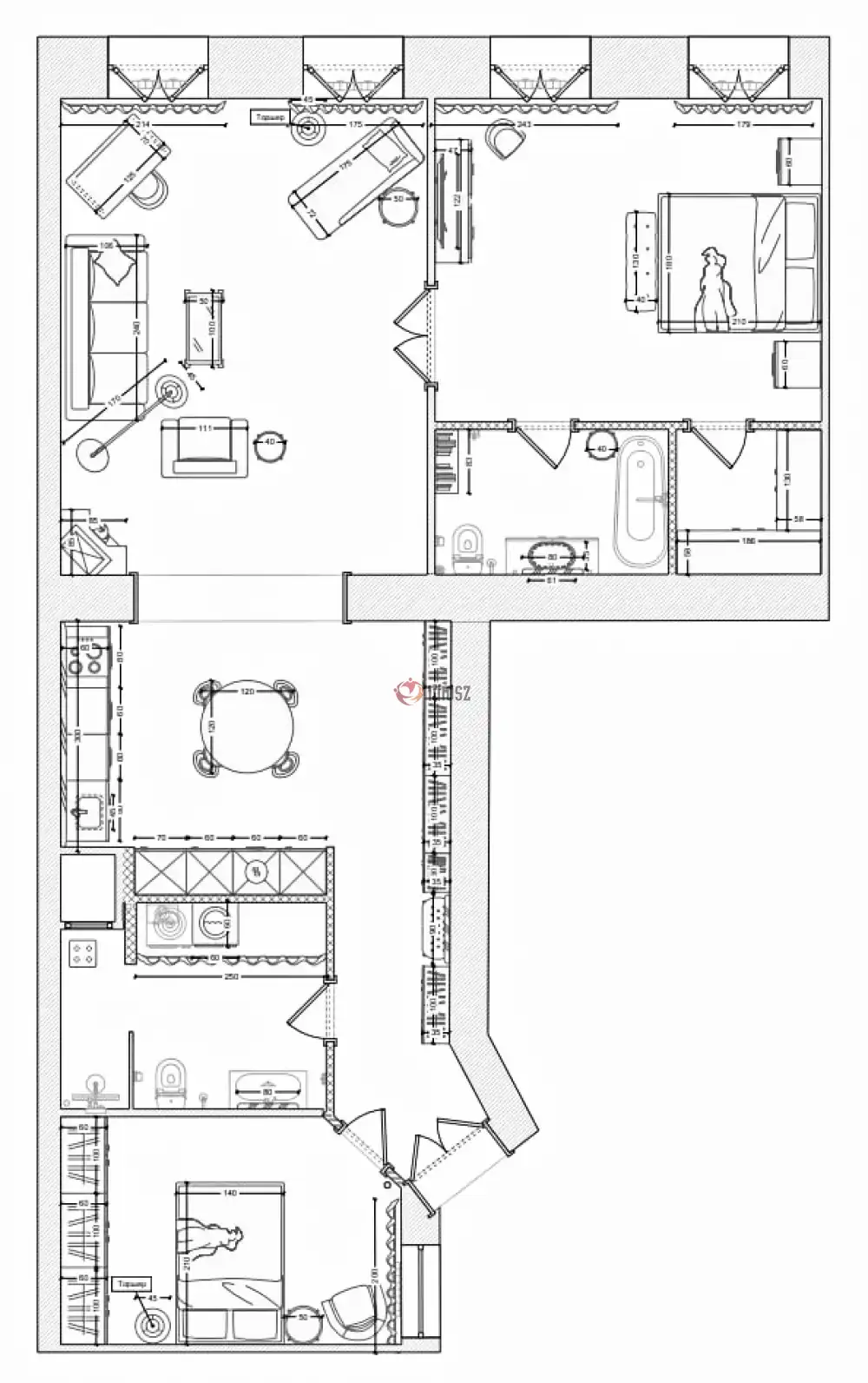
Belső terület

106 m²

Tájolás

délnyugat

Építési állapot

használt

Építési mód

tégla

Szobák száma

3 szoba

Emelet

1.

Épület szintje

4.

Lift

van

Ingatlan állapot

kívül: jó
belül: felújított

Klíma

van

Ablak szerkezete

2 rétegű thermoplan

Fűtés

cirko

Komfort

duplakomfort

Parkolás

van, nem meghatározott

Kilátás

utcára, kertre

Energetika

nincs megadva

Az időpont kérés naptár ikonja
HTML
Az időpont kérés naptár ikonja
PDF
Eladó téglalakás
Ingatlan azonosító:
1907_pl

Budapest, V. kerület, Lipótváros

Irányár

350 M Ft
(3.3 M Ft/㎡)

Szobák

3 szoba

Emelet

1

Terület

106 m²
INGATLAN LEÍRÁSA
Belvárosi elegancia újragondolva – kulcsrakész nagypolgári lakás!

Budapest belvárosának egyik legértékesebb részén kínálunk megvételre egy kivételes adottságú, teljeskörűen felújított lakást, amely egy patinás XIX. századi épületben található.

A 106 m²-es ingatlan különlegességét a 4 méteres belmagasság, az arányos terek és az a gondosan megtervezett enteriőr adja, amely ötvözi a klasszikus építészeti karaktert a mai, magas szintű komforttal.
A felújítás során nem csupán esztétikai, hanem teljes műszaki megújulás történt. Az eredeti részletek — mint a stukkók, spaletták és ajtók — megőrzése mellett minden korszerű rendszer újonnan került kialakításra.
A nappali hangulatát egy restaurált antik kályha határozza meg, amely modern kandalló funkcióval egészül ki.

Térszervezés
– világos nappali
– 2 hálószoba
– 2 fürdőszoba
– külön mosókonyha
Minőségi megoldások
– egyedi konyha kvarc munkalappal, prémium Bosch készülékekkel
– tölgy halszálka parketta
– egyedi nyílászárók
Műszaki tartalom
– új elektromos és vízrendszer
– korszerű gázfűtés
– 3 klíma
– repedésálló falmegoldások, prémium festés

Lokáció
A lakás Budapest szívében található, kilátással a Hild tér-re és a Budapest Óriáskereke-re.
Azonnal költözhető, teljes berendezéssel együtt.
Egy olyan ingatlan, amely ritkán jelenik meg a piacon — kifinomult otthon vagy biztos értéktartó befektetés.

További információért vagy megtekintésért hívjon bizalommal!

Néhány adat a megbízó által közölt információ alapján került feltüntetésre, így a tévedés jogát fenntartjuk!

Egyéb információért hívjon bizalommal.
Amiben segítjük Önöket:
- hitel ügyintézés
- CSOK ügyintézés
- energetikai tanúsítvány
- földhivatali háttér
- földmérés
- értékbecslés
- ingyenes ajánlatküldés országos rendszerből!

Refined downtown residence with timeless character – fully renovated
Located in one of the most desirable central areas of Budapest, this exceptional 106 sqm apartment offers a rare combination of historic charm and contemporary luxury, set within an elegant 19th-century building.
With impressive 4-meter ceiling heights and beautifully proportioned spaces, the property delivers a sense of openness and sophistication that is increasingly hard to find.
The renovation, completed in March 2026, was executed to a high standard, preserving original architectural elements such as decorative moldings, shutters, and classic French doors, while introducing modern systems and premium finishes throughout.
The living room is centered around a restored antique stove, enhanced with a modern electric fireplace feature — creating a unique and inviting atmosphere.
Layout
– spacious living area
– 2 bedrooms
– 2 bathrooms
– separate laundry room
High-end finishes
– custom-designed kitchen with quartz countertop and premium Bosch appliances
– solid oak herringbone flooring
– bespoke doors and windows
Technical upgrades
– fully renewed electrical and plumbing systems
– new gas heating system
– 3 air conditioning units
– crack-resistant wall solutions with premium paint finish
Location
The apartment enjoys a prime setting with views over Hild tér and the iconic Budapest Óriáskereke.
Move-in ready, sold fully furnished and equipped.
A rare opportunity on the market — ideal as a sophisticated residence or a high-value investment.


INGATLAN ADATAI

Ingatlan jellege
téglalakás
Belső terület
106 m²
Tájolás
délnyugat
Építési állapot
használt
Építési mód
tégla
Szobák száma
3 szoba
Emelet
1.
Épület szintje
4.
Lift
van
Ingatlan állapot
kívül: jó
belül: felújított
Klíma
van
Ablak szerkezete
2 rétegű thermoplan
Fűtés
cirko
Komfort
duplakomfort
Parkolás
van, nem meghatározott
Kilátás
utcára, kertre
Energetika
nincs megadva
TÉRKÉP

Budapest, V. kerület, Lipótváros

Hitelkalkulátor


KAPCSOLAT
Kovács Barbara
Kovács Barbara


+36 30 915 2942

proluxingatlaniroda@gmail.com

KAPCSOLAT
Kovács Barbara

+36 30 915

proluxingatlaniroda@

Az időpont kérés naptár ikonja
IDŐPONTOT KÉREK
A visszahívás kérés telefon ikonja egy azt körbe ölelő nyíllal
VISSZAHÍVÁST KÉREK
Ajánlom egy ismerősömnek ikon
AJÁNLOM EGY ISMERŐSÖMNEK
Facebook megosztás ikon
MEGOSZTÁS

KAPCSOLATFELVÉTEL

Küldés

Az üzenetet sikeresen elküldtük!
Hiba történt!
INGATLAN ADATAI

Ingatlan jellege

téglalakás

Belső terület

106 m²

Tájolás

délnyugat

Építési állapot

használt

Építési mód

tégla

Szobák száma

3 szoba

Emelet

1.

Épület szintje

4.

Lift

van

Ingatlan állapot

kívül: jó
belül: felújított

Klíma

van

Ablak szerkezete

2 rétegű thermoplan

Fűtés

cirko

Komfort

duplakomfort

Parkolás

van, nem meghatározott

Kilátás

utcára, kertre

Energetika

nincs megadva

Az időpont kérés naptár ikonja
HTML
Az időpont kérés naptár ikonja
PDF

Hasonló ingatlan hírdetések

Eladó tégla-, vagy panellakás hirdetést keres Budapesten a V. kerületben?
Tekintse meg további ajánlatainkat!

eladó téglalakás, Budapest, V. kerület

eladó téglalakás

DISTRICT V · DOWNTOWN BUDAPEST · PROPERTY FOR SALE · PETŐFI SÁNDOR STREET · 123 SQM · HIGH CEILINGS · TWO-UNIT POTENTIAL · VALUE-ADD INVESTMENT!

Budapest, V. kerület, Belváros
V. KERÜLET · BELVÁROS · ELADÓ LAKÁS/INGATLAN · PETŐFI SÁNDOR UTCA · 123 M² · NAGY BELMAGASSÁG · KÉT LAKÁS KIALAKÍTHATÓ · BEFEKTETÉS! For English please scroll down. Budapest V. kerületében, a Pe...
Belső terület
123 m²
Szobák
4
Emelet
1

179.9 M Ft

azonnal költözhető
Azonnal költözhető
eladó téglalakás, Budapest, V. kerület

eladó téglalakás

Budapest, V. kerület, Belváros
Exkluzív, panorámás, teljeskörűen felújított lakás eladó Budapest V. kerületében, a Nagycsarnok közelében! Budapest V. kerületének egyik legkeresettebb részén, a Nagycsarnok közvetlen közelében kín...
Belső terület
90 m²
Szobák
3
Emelet
4

229 M Ft

eladó téglalakás, Budapest, V. kerület

eladó téglalakás

Budapest, V. kerület, Lipótváros, Sas u.
LOKCIÓ, LOKÁCIÓ, LOKÁCIÓ! LEGYEN JÖVEDELMEZŐ INGATLANBEFEKTETÉSE A BAZILIKA MELLETT! V. kerület kellős közepén, Sas utcában ELADÓ ez a kiváló adottságú, 2. emeleti, 86 nm-es, 2 lakrészre osztott, ...
Belső terület
86 m²
Szobák
2+1
Emelet
2

178 M Ft

kiemelt
Kiemelt
eladó téglalakás, Budapest, V. kerület

eladó téglalakás

Budapest, V. kerület, Belváros
RÉGI POSTA UTCÁBAN - VÖRÖSMARTY TÉRHEZ KÖZEL - PATINÁS LAKÁS V. kerületben a Régi posta utcában található a Dunához közel, ez a 89 m2-es, 2. emeleti, liftes házban lévő eladó lakás. - csendes, k...
Belső terület
89 m²
Szobák
2
Emelet
2

225 M Ft

eladó téglalakás, Budapest, V. kerület

eladó téglalakás

Budapest, V. kerület, Belváros, Veres Pálné u.
CSAK AZ OTTHON KULCS INGATLAN IRODA KÍNÁLATÁBAN Budapest V. kerületének elegáns BELVÁROSI részén, a VERES PÁLNÉ utcában kínálok megvételre egy 150 m²-es, tetőtéri lakást, amely jelenleg nappali + 2...
Belső terület
150 m²
Szobák
3
Emelet
4

230 M Ft

eladó téglalakás, Budapest, V. kerület

eladó téglalakás

Budapest, V. kerület, , Petőfi Sándor u.
Eladó luxus lakás Budapest V. kerületében – Petőfi Sándor utcában Eladó egy teljes körűen bútorozott és gépesített luxus lakás Budapest belvárosában, az V. kerület egyik legkedveltebb utcájában, a ...
Belső terület
2 m²
Szobák
2
Emelet
4

149.9 M Ft

eladó téglalakás, Budapest, V. kerület

eladó téglalakás

Budapest, V. kerület, Belváros
Eladó lakás V. kerület Vármegye utca. A lakás 1 emeleti, közepes állapotú, 73 nm-es 2 szobás (a szobák egymásból nyílnak), étkezős konyha, kamra, külön fürdő WC. A fűtést gázkazán biztosítja. ...
Belső terület
73 m²
Szobák
2
Emelet
1

93.5 M Ft

90 M Ft

eladó téglalakás, Budapest, V. kerület

eladó téglalakás

Van szlogen

Budapest, V. kerület, Lipótváros
Eladó ez a csodálatos lakás az V. kerületben. Én is megvenném....
Belső terület
40 m²
Szobák
1+1
Emelet
11

80 M Ft

alkalmi vétel
Alkalmi vétel
Budapest, V. kerület - Lipótváros
Budapest, V. kerület - Lipótváros
Budapest, V. kerület - Lipótváros
Budapest, V. kerület - Lipótváros
Budapest, V. kerület - Lipótváros
Budapest, V. kerület - Lipótváros
Budapest, V. kerület - Lipótváros
Budapest, V. kerület - Lipótváros
Budapest, V. kerület - Lipótváros
Budapest, V. kerület - Lipótváros
Budapest, V. kerület - Lipótváros
Budapest, V. kerület - Lipótváros
Budapest, V. kerület - Lipótváros
Budapest, V. kerület - Lipótváros
Budapest, V. kerület - Lipótváros
Budapest, V. kerület - Lipótváros
Budapest, V. kerület - Lipótváros