KAPCSOLATFELVÉTEL
Ingatlan jellege
téglalakás
Belső terület
83 m²
Tájolás
nyugat
Építési állapot
használt
Építési mód
tégla
Szobák száma
3 szoba
Kert
(saját kert)
Terasz
17 m²
Emelet
földszint.
Épület szintje
3.
Akadálymentes
részlegesen
Lift
nincs
Ingatlan állapot
kívül: jó
belül: kitűnő
Klíma
van
Fűtés
cirko
Komfort
duplakomfort
Kilátás
kertre, udvarra
Energetika
nincs megadva
Budapest, IX. kerület, Ferencváros-Belváros
Irányár
(1.6 M Ft/㎡)
Szobák
Emelet
Terület
Valakinek ez semmit nem mond -csak egy utca-, valakinek egy fantasztikus lehetőség, remek befektetési potenciál. Airbnb és a hosszútávú kiadás is engedélyezett, kiváló lokáció!
Nézze meg a videót!
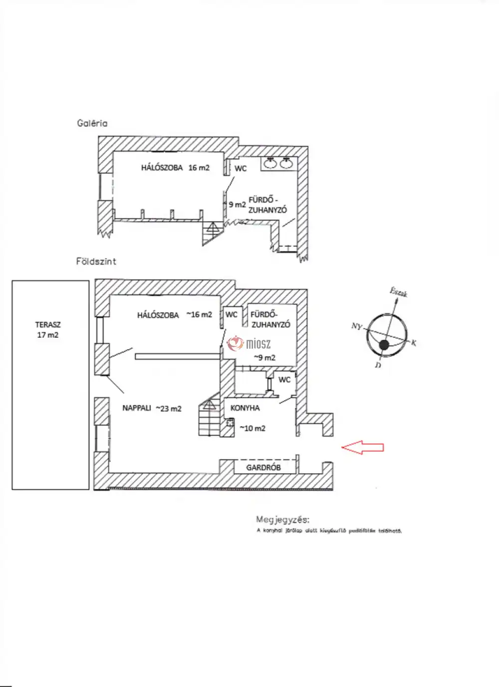
A földszinti lakás egy patinás ház belső udvarából nyílik, belső két szintes, kertkapcsolatos, duplakomfortos.
83 m2 hasznos terület, a földszinten nappali + háló, konyha, fürdőszoba, 2 wc, az emeleten háló, fürdőszoba + wc elosztással rendelkezik.
2017-ben volt felújítás, az ablakok szigeteltek, fűtés és meleg víz ellátásáról kombicirkó gondoskodik. A 2 klíma további komfortérzetet biztosít.
A nappaliból nyíló 17 m2-es terasz egyedi hangulatot kölcsönöz az ingatlannak, csend és nyugalom vesz körbe, a kapun kilépve pedig a belváros nyüzsgő forgataga ragad magával. Külföldiek által is kedvelt, igazán hangulatos környezet.
Az ingatlan tehermentes, akár azonnal birtokba vehető!
belül: kitűnő
Budapest, IX. kerület, Ferencváros-Belváros
Hitelkalkulátor
+36 70 456 1140
ingatlan@callnet.hu
KAPCSOLATFELVÉTEL
Ingatlan jellege
téglalakás
Belső terület
83 m²
Tájolás
nyugat
Építési állapot
használt
Építési mód
tégla
Szobák száma
3 szoba
Kert
(saját kert)
Terasz
17 m²
Emelet
földszint.
Épület szintje
3.
Lift
nincs
Ingatlan állapot
kívül: jó
belül: kitűnő
Klíma
van
Fűtés
cirko
Komfort
duplakomfort
Kilátás
kertre, udvarra
Energetika
nincs megadva