Eladó panellakás - Szigetszentmiklós

KAPCSOLAT
Róka Attila


+36 70 418

roka.attila@

Az időpont kérés naptár ikonja
IDŐPONTOT KÉREK
A visszahívás kérés telefon ikonja egy azt körbe ölelő nyíllal
VISSZAHÍVÁST KÉREK
Ajánlom egy ismerősömnek ikon
AJÁNLOM EGY ISMERŐSÖMNEK
Facebook megosztás ikon
MEGOSZTÁS

KAPCSOLATFELVÉTEL

Küldés

Az üzenetet sikeresen elküldtük!
Hiba történt!
INGATLAN ADATAI

Ingatlan jellege

panellakás

Belső terület

62 m²

Tájolás

délkelet

Építési állapot

használt

Építési mód

panel

Szobák száma

1+2 félszoba

Szobák elhelyezkedése

külön nyílik min. 2 szoba

Emelet

2.

Épület szintje

4.

Épült

kb. 1982

Lift

nincs

Ingatlan állapot

kívül: jó
belül: jó

Klíma

van

Ablak szerkezete

2 rétegű thermoplan

Fűtés

távfűtés egyedi méréssel

Komfort

összkomfort

Kilátás

utcára

Energetika

E:

Az időpont kérés naptár ikonja
HTML
Az időpont kérés naptár ikonja
PDF
Eladó panellakás
Ingatlan azonosító:
2607_rid

Pest megye, Szigetszentmiklós, Szent Miklós úti lakótelep

Irányár

56.9 M Ft
(917.74 E Ft/㎡)

Szobák

1+2 félszoba

Emelet

2

Terület

62 m²
INGATLAN LEÍRÁSA
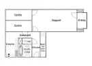
Családok figyelem! Szigetszentmiklós központjában eladó egy jó állapotú, 62 m2-es, 1 + 2 fél szobás, erkélyes (3 m2), jó elosztású, világos, kitűnő adottságokkal rendelkező lakás. A lakás egy négy emeletes ház második emeletén található.

A lakás előszoba, 1 + 2 félszoba, étkezős konyha, kádas fürdőszoba, külön WC, közlekedő helyiségekből áll.

A lakásban két darab inverteres klíma található, az előszobában beépített gardróbszekrény, új biztonsági bejárati ajtó, kétrétegű üvegezéssel ellátott műanyag kültéri nyílászárók, redőnnyel, szúnyoghálóval felszerelve. A lakás távfűtéses, a fűtés radiátoronként szabályozható, a radiátorok egyedi hőmennyiség mérőkkel felszerelve, külön vízórákkal rendelkezik.

A szobák laminált padlóval, a többi helyiség járólappal burkolt.
Új elektromos vezetékek, új megszakítótábla, 32 amper áramerősség.
Nemrégiben a fürdőszoba is teljes körű felújításon esett át.

Az étkezős konyha beépített bútorzata is a vételár részét képezi.

A lakáshoz közös tároló helyiség tartozik.

Tiszta, rendezett lépcsőház, kulturált lakóközösség.

A környék ellátottsága, infrastruktúrája kitűnő. Központi elhelyezkedésének köszönhetően minden egy karnyújtásnyira van tőle. A közelben szupermarketek, üzletek, piac, bölcsőde, óvodák, közép és általános iskolák, orvosi rendelők, gyógyszertár, posta, edzőterem stb. találhatók.

Kitűnő tömegközlekedési lehetőségek, néhány perc távolságra találhatók BKV, valamint Volán buszmegállók, HÉV állomás.

Az utcán a parkolás ingyenes.

A lakás befektetésnek is kiváló, de otthont keresőknek is kitűnő választás lehet.
Amennyiben a hirdetés felkeltette figyelmét, kérem hívjon bizalommal!

CSOK PLUSZ, 3%-os kedvezményes hitel igényelhető. Amennyiben CSOK PLUSZ-al vásárolja meg az ingatlant illetékmentesség jár!
Ingyenes HITEL és CSOK PLUSZ ügyintézés, nem csak nálunk vásárolt INGATLANOKRA!
Kérésére a kalkulációt és a hitel-elő bírálatot elkészítjük Önnek.
Cégünk ügyvédje jogi tanácsadással rendelkezésre áll.
Várjuk megtisztelő hívását!
A Facebookon is keressen minket, napi híreink megtekintéséhez!


INGATLAN ADATAI

Ingatlan jellege
panellakás
Belső terület
62 m²
Tájolás
délkelet
Építési állapot
használt
Építési mód
panel
Szobák száma
1+2 félszoba
Szobák elhelyezkedése
külön nyílik min. 2 szoba
Emelet
2.
Épület szintje
4.
Épült
kb. 1982
Lift
nincs
Ingatlan állapot
kívül: jó
belül: jó
Klíma
van
Ablak szerkezete
2 rétegű thermoplan
Fűtés
távfűtés egyedi méréssel
Komfort
összkomfort
Kilátás
utcára
Energetika
E:
TÉRKÉP

Pest megye, Szigetszentmiklós, Szent Miklós úti lakótelep

Hitelkalkulátor


KAPCSOLAT
Róka Attila
Róka Attila


+36 70 418 1637

roka.attila@ridom.hu

KAPCSOLAT
Róka Attila

+36 70 418

roka.attila@

Az időpont kérés naptár ikonja
IDŐPONTOT KÉREK
A visszahívás kérés telefon ikonja egy azt körbe ölelő nyíllal
VISSZAHÍVÁST KÉREK
Ajánlom egy ismerősömnek ikon
AJÁNLOM EGY ISMERŐSÖMNEK
Facebook megosztás ikon
MEGOSZTÁS

KAPCSOLATFELVÉTEL

Küldés

Az üzenetet sikeresen elküldtük!
Hiba történt!
INGATLAN ADATAI

Ingatlan jellege

panellakás

Belső terület

62 m²

Tájolás

délkelet

Építési állapot

használt

Építési mód

panel

Szobák száma

1+2 félszoba

Szobák elhelyezkedése

külön nyílik min. 2 szoba

Emelet

2.

Épület szintje

4.

Épült

kb. 1982

Lift

nincs

Ingatlan állapot

kívül: jó
belül: jó

Klíma

van

Ablak szerkezete

2 rétegű thermoplan

Fűtés

távfűtés egyedi méréssel

Komfort

összkomfort

Kilátás

utcára

Energetika

E:

Az időpont kérés naptár ikonja
HTML
Az időpont kérés naptár ikonja
PDF

Hasonló ingatlan hírdetések

Eladó tégla-, vagy panellakás hirdetést keres Szigetszentmiklós területén?
Tekintse meg további ajánlatainkat!

eladó téglalakás, Szigetszentmiklós

eladó téglalakás

Nagyszerű belső kialakítású, alacsony rezsijű lakás eladó a legkedveltebb városrészen, Szigetszenmiklóson

Pest megye, Szigetszentmiklós, Paptag utca
Szigetszentmiklós legkedveltebb részén, az Oázis wellness mögötti lakóparkban eladó ez a nagyszerű belső elrendezésű, rendkívül alacsony rezsivel fenntartható lakás. A lakás egy téglaépítésű, 2004...
Belső terület
75 m²
Szobák
2+1
Emelet
1

69.5 M Ft

Energiatakarékos!
Energiatakarékos
Pest megye - Szigetszentmiklós
Pest megye - Szigetszentmiklós
Pest megye - Szigetszentmiklós
Pest megye - Szigetszentmiklós
Pest megye - Szigetszentmiklós
Pest megye - Szigetszentmiklós
Pest megye - Szigetszentmiklós
Pest megye - Szigetszentmiklós
Pest megye - Szigetszentmiklós
Pest megye - Szigetszentmiklós
Pest megye - Szigetszentmiklós
Pest megye - Szigetszentmiklós
Pest megye - Szigetszentmiklós
Pest megye - Szigetszentmiklós
Pest megye - Szigetszentmiklós
Pest megye - Szigetszentmiklós
Pest megye - Szigetszentmiklós
Pest megye - Szigetszentmiklós
Pest megye - Szigetszentmiklós
Pest megye - Szigetszentmiklós