KAPCSOLATFELVÉTEL
Ingatlan jellege
ikerház
Belső terület
121 m²
Telek terület
911 m²
Tájolás
délkelet
Építési állapot
használt
Építési mód
tégla
Szobák száma
4 szoba
Terasz
13 m²
Épület szintje
2.
Épült
2023
Ingatlan állapot
kívül: új
belül: új
Klíma
előkészítve
Szigetelés
12 cm
Fűtés
hőszivattyús
Komfort
összkomfort
Parkolás
van fedetlen felszíni beálló
Közműállapot
csatorna: bekötve
gáz: utcában
villany: bekötve
víz: bekötve
Energetika
BB: 81%–100% Közel nulla energiaigényre vonatkozó követelményeknek megfelelő
Pest megye, Vácrátót
Irányár
(660.33 E Ft/㎡)
Szobák
Emelet
Terület
Telek terület
Vácrátót szélén, pár éve kiépült lakóparkban, megbízható, 16 éve a szakmában lévő, több referencia munkával rendelkező és helyben megtekinthető építtető/beruházó cég által tervezett és kivitelezett, modern, energiatakarékos, kiváló műszaki tartalommal épült ikerházak eladóak egyelőre megrendelésre.
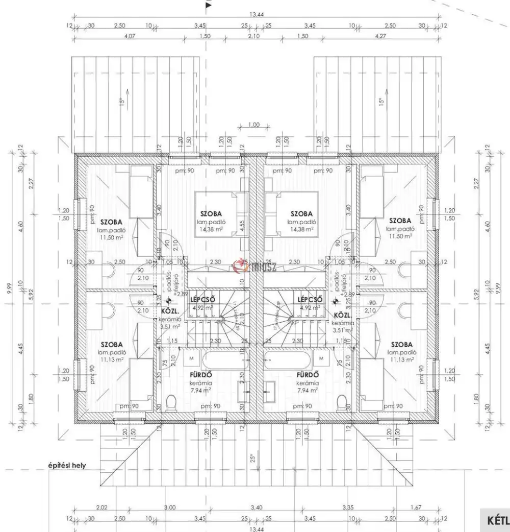
A szóban forgó belső két szintes ikerházakhoz tartozó telek 911nm ( DK-i), terasszal (13.23) együtt összesen 121 nm, három hálószoba és amerikai konyhás nappali, kis kamra és kültéri fedetlen, viacolorozott autó beállási lehetőség tartozik hozzá.
Ebből az ingatlantípusból összesen 2 db fog épülni.
A konyhában 1db sütő, főzőlap, mosogatógép, elszívó elektromos csatlakozási lehetőség és 1 db hideg ill. melegvíz, szennyvíz csatlakozási pont kerül kialakításra.
A beruházó cég rendkívül rugalmas a belső kialakításában, a homlokzatkerítés, térkövek színében. Ennél a ház típusnál a kulcsrakész ingatlan is megtekinthető.
A ház 30-as téglafalakból épült, homlakzata 12 cm dryvit szigetelést kap, a nyílászárók 5 légkamrás fehér PVC alapú bukó-nyíló kivitelben lesznek.
Fűtése innovatív, a mai kor technikájának megfelelő, hőszivattyús rendszer fog gondoskodni H-tarifával, a helyiségekben padlófűtéssel. Igény esetén hőszivattyús fali hűtés is igényelhető.
A ház körüli járdák és a fedetlen autóbeállási lehetőség viacolor burkolással fog elkészülni.
Az új építésű ingatlanokra vonatkozó állami támogatások úgy mint, CSOK, babaváró, illetékmentesség és ÁFA visszaigénylés felvehetőek!
A fotókon más típusú a beruházó cég által elkészült referencia ingatlanok találhatóak, amiket a helyszínen meg lehet tekinteni.
További részletes információk rendelkezésre állnak, vagy amennyiben szeretné az építkezést ill. referencia házakat megtekinteni hívjon!
Ára: 79.900.000.-
Hívását hétvégén is szívesen fogadom!
- CSOK és Hitelügyintézés,
- gyors és precíz hiteles energetikai tanúsítvány intézése,
- ingatlanügyekben tapasztalt ügyvédek, adásvételek leszervezése
- értékbecslés, ingatlan-érték meghatározás
belül: új
gáz: utcában
villany: bekötve
víz: bekötve
Pest megye, Vácrátót
Hitelkalkulátor

+36 70 703 1672
bh.moritzanna@gmail.com
KAPCSOLATFELVÉTEL
Ingatlan jellege
ikerház
Belső terület
121 m²
Telek terület
911 m²
Tájolás
délkelet
Építési állapot
használt
Építési mód
tégla
Szobák száma
4 szoba
Terasz
13 m²
Épület szintje
2.
Épült
2023
Ingatlan állapot
kívül: új
belül: új
Klíma
előkészítve
Szigetelés
12 cm
Fűtés
hőszivattyús
Komfort
összkomfort
Parkolás
van fedetlen felszíni beálló
Közműállapot
csatorna: bekötve
gáz: utcában
villany: bekötve
víz: bekötve
Energetika
BB: 81%–100% Közel nulla energiaigényre vonatkozó követelményeknek megfelelő