Eladó ikerház - Sárszentmihály

KAPCSOLAT
Zalavári Ágnes


+36 20 622

zalavari.agnes@

Az időpont kérés naptár ikonja
IDŐPONTOT KÉREK
A visszahívás kérés telefon ikonja egy azt körbe ölelő nyíllal
VISSZAHÍVÁST KÉREK
Ajánlom egy ismerősömnek ikon
AJÁNLOM EGY ISMERŐSÖMNEK
Facebook megosztás ikon
MEGOSZTÁS

KAPCSOLATFELVÉTEL

Küldés

Az üzenetet sikeresen elküldtük!
Hiba történt!
INGATLAN ADATAI

Ingatlan jellege

ikerház

Belső terület

124 m²

Telek terület

330 m²

Tájolás

északkelet

Építési állapot

használt

Építési mód

tégla

Szobák száma

4 szoba

Terasz

20 m²

Épület szintje

2.

Épült

2012

Akadálymentes

részlegesen

Ingatlan állapot

kívül: átlagos
belül: jó

Klíma

van

Szigetelés

5 cm

Ablak szerkezete

2 rétegű thermoplan

Fűtés

cirko

Komfort

duplakomfort

Közműállapot

csatorna: bekötve
gáz: bekötve
villany: bekötve
víz: bekötve

Energetika

nincs megadva

Az időpont kérés naptár ikonja
HTML
Az időpont kérés naptár ikonja
PDF
Eladó ikerház
Ingatlan azonosító:
200_rd

Fejér megye, Sárszentmihály, Babits Mihály

Irányár

89.5 M Ft
(721.77 E Ft/㎡)

Szobák

4 szoba

Terület

124 m²

Telek terület

330 m²
INGATLAN LEÍRÁSA
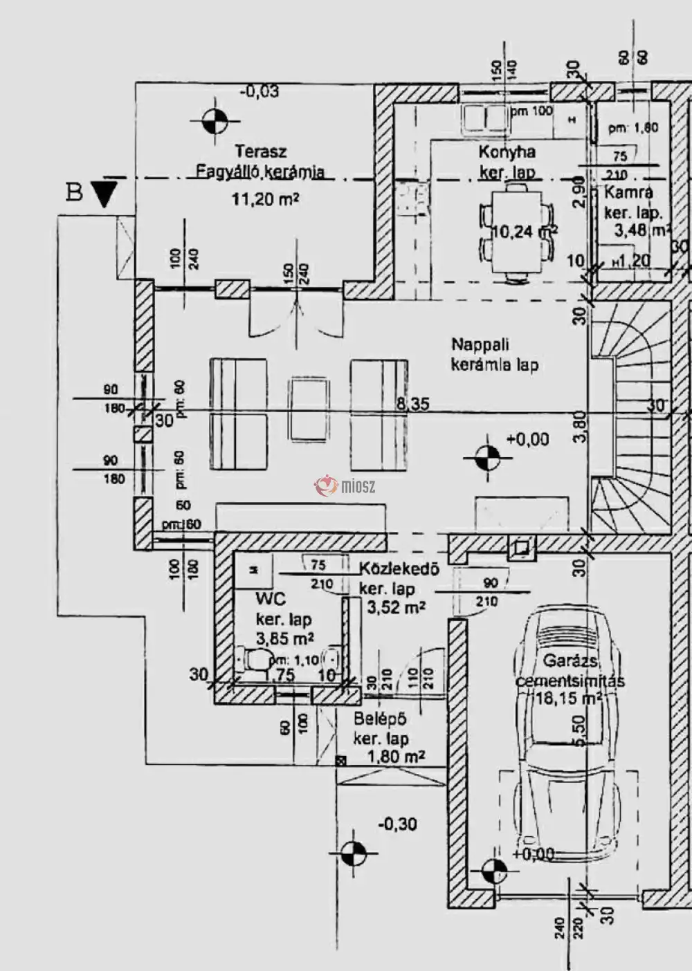
ELADÓ kétszintes családi ház SÁRSZENTMIHÁLYON – ideális otthon kisgyermekes családoknak. Nappali + 3 hálószoba 124 nm, 330 nm parkosított zöldterület, garázs.
i.á.: 89,5 M Ft tel.: 06(20)622-6832

Sárszentmihály csendes, zsákutcás részén kínálunk eladásra egy 2012-ben épült, kétszintes ikerházat, amely nyugodt környezetével és praktikus kialakításával tökéletes választás lehet azoknak a családoknak, akik szeretnének kiszakadni a város zajából, mégis fontos számukra a jó megközelíthetőség.

A ház már az első pillanatban otthonos hangulatot áraszt. A világos, tágas terek és az átgondolt elrendezés valóban élhetővé teszik a mindennapokat. A földszinten található az amerikai konyhás nappali, amely a családi élet központja lehet – legyen szó közös vacsorákról, játékidőről vagy baráti összejövetelekről. Innen közvetlen kijárat nyílik a nagy teraszra, ami jó időben szinte egy plusz nappaliként használható tér.

Ezen a szinten egy praktikus mosókonyha WC-vel is helyet kapott, ami nagy segítség a mindennapok során. A ház aljában található egy egyállásos garázs, ami külön kényelmet jelent, ráadásul innen közvetlenül az előszobába lehet bejutni, ami esős vagy hideg időben kifejezetten előnyös.

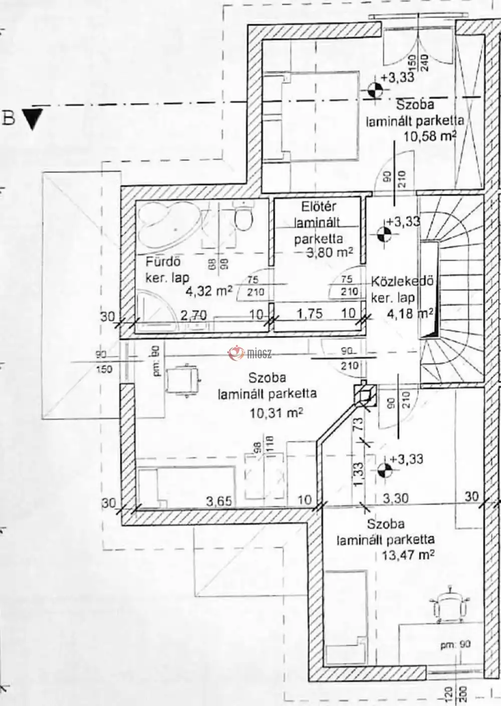
Az emeleten három külön nyíló, kényelmes méretű szoba található, amelyek jól berendezhetők akár gyerekszobának, hálónak vagy dolgozószobának is. A helyiségek kellemesen világosak, a nyári melegben pedig a klíma gondoskodik a komfortos hőmérsékletről. Ezen a szinten egy tágasabb fürdőszoba is kialakításra került káddal, zuhanyzóval és WC-vel, ami nagy segítség a reggeli készülődésnél.

A ház tégla építésű, szigeteléssel ellátott, szigetelt nyílászárókkal és cserép fedéssel, ami nemcsak tartósságot, hanem kedvező fenntartási költségeket is biztosít.
Modern és korszerű műszaki tartalom - A fűtésről gáz cirkó rendszer gondoskodik, ennek köszönhetően a rezsi alacsonyan tartható - és esztétikus burkolatok jellemzik a házat.

A parkosított kert valódi értéke ennek az otthonnak. Ideális hely a gyerekek számára, ahol biztonságosan játszhatnak, miközben a szülők a teraszon pihenhetnek. Bőven jut hely homokozónak, hintának vagy akár egy kisebb veteményesnek is. A kertben található kerti faház praktikus tárolási lehetőséget nyújt a szerszámoknak és egyéb eszközöknek.

Ez az ingatlan remek választás lehet azoknak a fiatal családoknak, akik egy nyugodt, élhető otthont keresnek, ahol minden adott a kényelmes hétköznapokhoz és a közös élményekhez.

További információért vagy megtekintés egyeztetéséhez keress bizalommal!
i.á.: 89,5 M Ft tel.: 06(20)622-6832

INGATLAN ADATAI

Ingatlan jellege
ikerház
Belső terület
124 m²
Telek terület
330 m²
Tájolás
északkelet
Építési állapot
használt
Építési mód
tégla
Szobák száma
4 szoba
Terasz
20 m²
Épület szintje
2.
Épült
2012
Akadálymentes
részlegesen
Ingatlan állapot
kívül: átlagos
belül: jó
Klíma
van
Szigetelés
5 cm
Ablak szerkezete
2 rétegű thermoplan
Fűtés
cirko
Komfort
duplakomfort
Közműállapot
csatorna: bekötve
gáz: bekötve
villany: bekötve
víz: bekötve
Energetika
nincs megadva
TÉRKÉP

Fejér megye, Sárszentmihály, Babits Mihály

Hitelkalkulátor


KAPCSOLAT
Zalavári Ágnes
Zalavári Ágnes


+36 20 622 6832

zalavari.agnes@redingatlan.hu

KAPCSOLAT
Zalavári Ágnes

+36 20 622

zalavari.agnes@

Az időpont kérés naptár ikonja
IDŐPONTOT KÉREK
A visszahívás kérés telefon ikonja egy azt körbe ölelő nyíllal
VISSZAHÍVÁST KÉREK
Ajánlom egy ismerősömnek ikon
AJÁNLOM EGY ISMERŐSÖMNEK
Facebook megosztás ikon
MEGOSZTÁS

KAPCSOLATFELVÉTEL

Küldés

Az üzenetet sikeresen elküldtük!
Hiba történt!
INGATLAN ADATAI

Ingatlan jellege

ikerház

Belső terület

124 m²

Telek terület

330 m²

Tájolás

északkelet

Építési állapot

használt

Építési mód

tégla

Szobák száma

4 szoba

Terasz

20 m²

Épület szintje

2.

Épült

2012

Ingatlan állapot

kívül: átlagos
belül: jó

Klíma

van

Szigetelés

5 cm

Ablak szerkezete

2 rétegű thermoplan

Fűtés

cirko

Komfort

duplakomfort

Közműállapot

csatorna: bekötve
gáz: bekötve
villany: bekötve
víz: bekötve

Energetika

nincs megadva

Az időpont kérés naptár ikonja
HTML
Az időpont kérés naptár ikonja
PDF

Hasonló ingatlan hírdetések

Eladó családi ház, vagy kertes ház hirdetést keres Sárszentmihály területén?
Jelenleg nincsenek hasonló aktuális ajánlatok Sárszentmihály településen.
Tekintse meg további Fejér megyei ajánlatainkat !

eladó családi ház, Vál

eladó családi ház

Fejér megye, Vál
Eladó Válon jelenleg két lakrészes, de könnyen egybe is nyitható családi ház, óriási panorámás telekkel. A '70-es évek elején épült családi ház tégla falazatú, részben betonfödémes, gondosan rendb...
Belső terület
1350 m²
Telek terület
2190 m²
Szobák
3+1

55 M Ft

eladó családi ház, Polgárdi

eladó családi ház

Fejér megye, Polgárdi, Eötvös utca
POLGÁRDI – 235 NM-ES TÖBBGENERÁCIÓS CSALÁDI HÁZ 1426 NM-ES TELKEN, KÉT FŰTÉSI RENDSZERREL, 3 GARÁZZSAL Polgárdi csendes részén eladó egy 1985-ben épült, 235 nm nettó lakóterületű, többszintes csalá...
Belső terület
235 m²
Telek terület
1426 m²
Szobák
6

94.9 M Ft

eladó családi ház, Nagyvenyim

eladó családi ház

Fejér megye, Nagyvenyim
ÁlomOtthon Ingatlan kínálatában – Igényes családi ház eladó Nagyvenyim csendes utcájában! Nagyvenyim nyugodt, családbarát környezetében kínáljuk megvételre ezt a kiváló állapotú, 2003-ban épült, eg...
Belső terület
128 m²
Telek terület
758 m²
Szobák
5

97.5 M Ft

eladó családi ház, Szár

eladó családi ház

Fejér megye, Szár, Nyárfa utca
Szár településen, Budapesttől mindössze mintegy 40 perces autóútra kínálunk megvételre egy különleges adottságokkal rendelkező, új építésű családi házat, amely csendes, természetközeli környezetben he...
Belső terület
145 m²
Telek terület
1083 m²
Szobák
5

95.99 M Ft

eladó családi ház, Dunaújváros

eladó családi ház

Fejér megye, Dunaújváros, Béke városrész
Az ÁlomOtthon Ingatlan iroda megvételre kínálja ezt a Dunaújváros Kertvárosában található, téglából épült, Kádárkocka típusú családi házat! Az ingatlan egy 400 nm-es telken helyezkedik el, a lakóte...
Belső terület
90 m²
Telek terület
400 m²
Szobák
2

65 M Ft

garázzsal
Garázzsal
eladó családi ház, Kulcs

eladó családi ház

Fejér megye, Kulcs
Az ÁlomOtthon Ingatlaniroda kínálatában! Eladó Kulcs kedvelt részén egy állandó lakhatásra is alkalmas hétvégi ház, amelynek tulajdoni lap szerinti besorolása: kert és gazdasági épület. Az ingat...
Belső terület
40 m²
Telek terület
1149 m²
Szobák
1+2

25 M Ft

eladó családi ház, Aba

eladó családi ház

Fejér megye, Aba, Kossuth Lajos utca
Egy valódi vidéki hangulatú parasztházat keres? Ez az abai ingatlan – közel 8000 m²-es telekkel, régi idők báját idéző fagerendás mennyezettel várja új gazdáját. Az ingatlan műszaki jellemzői: -...
Belső terület
106 m²
Telek terület
7886 m²
Szobák
4

27 M Ft

23 M Ft

eladó családi ház, Sárkeresztúr

eladó családi ház

Fejér megye, Sárkeresztúr
redőny ,szúnyog háló.füves kerités tégla,cserép tető .fa gerenda.folyamatban a körbe kerités,fűtés kazán puffer tartállyal,műanyag ablak központi részen bolt iskola óvoda buszmegálló közel bölcsöde ...
Belső terület
92 m²
Telek terület
1518 m²
Szobák
4

27.9 M Ft

Fejér megye - Sárszentmihály
Fejér megye - Sárszentmihály
Fejér megye - Sárszentmihály
Fejér megye - Sárszentmihály
Fejér megye - Sárszentmihály
Fejér megye - Sárszentmihály
Fejér megye - Sárszentmihály
Fejér megye - Sárszentmihály
Fejér megye - Sárszentmihály
Fejér megye - Sárszentmihály
Fejér megye - Sárszentmihály
Fejér megye - Sárszentmihály
Fejér megye - Sárszentmihály
Fejér megye - Sárszentmihály
Fejér megye - Sárszentmihály
Fejér megye - Sárszentmihály
Fejér megye - Sárszentmihály
Fejér megye - Sárszentmihály
Fejér megye - Sárszentmihály
Fejér megye - Sárszentmihály
Fejér megye - Sárszentmihály
Fejér megye - Sárszentmihály
Fejér megye - Sárszentmihály
Fejér megye - Sárszentmihály