Eladó újszerű ikerház - Dunaharaszti

KAPCSOLAT
Hajas Zsuzsanna


+36 30 229

hajaszsuzsa.leeb@

Az időpont kérés naptár ikonja
IDŐPONTOT KÉREK
A visszahívás kérés telefon ikonja egy azt körbe ölelő nyíllal
VISSZAHÍVÁST KÉREK
Ajánlom egy ismerősömnek ikon
AJÁNLOM EGY ISMERŐSÖMNEK
Facebook megosztás ikon
MEGOSZTÁS

KAPCSOLATFELVÉTEL

Küldés

Az üzenetet sikeresen elküldtük!
Hiba történt!
INGATLAN ADATAI

Ingatlan jellege

ikerház

Belső terület

180 m²

Telek terület

400 m²

Tájolás

dél, kelet, nyugat

Építési állapot

újszerű

Építési mód

tégla

Szobák száma

5 szoba

Terasz

35 m²

Épület szintje

2.

Épült

2023

Ingatlan állapot

kívül: újszerű
belül: luxus

Klíma

van

Szigetelés

17 cm

Ablak szerkezete

3 rétegű thermoplan

Fűtés

hőszivattyús

Komfort

duplakomfort

Parkolás

van önálló garázs

Közműállapot

csatorna: bekötve
gáz: telken
villany: bekötve
víz: bekötve

Energetika

nincs megadva

Az időpont kérés naptár ikonja
HTML
Az időpont kérés naptár ikonja
PDF
Eladó újszerű ikerház
Ingatlan azonosító:
8069_leebesfia

Pest megye, Dunaharaszti, Rákócziliget

Irányár

199 M Ft
(1.11 M Ft/㎡)

Szobák

5 szoba

Terület

180 m²

Telek terület

400 m²
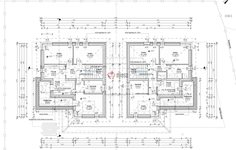
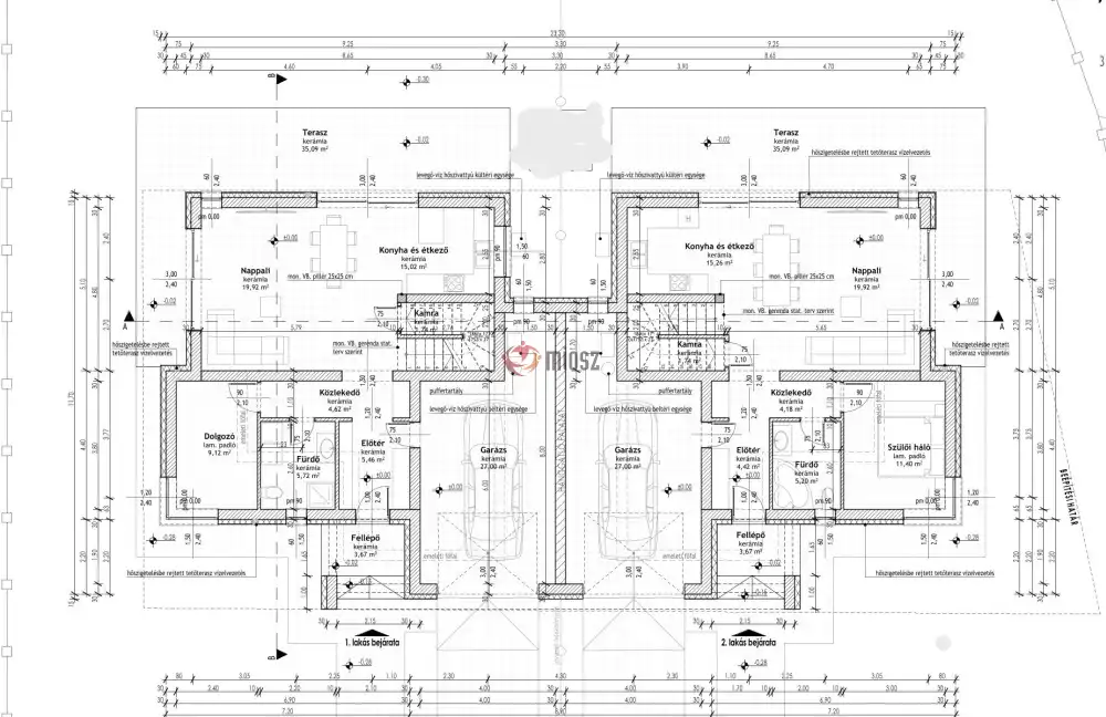
INGATLAN LEÍRÁSA
Prémium minőségű ingatlan Dunaharasztin eladó!
2023-ban épült, 2 szinten 180 nm, tehermentes luxus ingatlan, 400 nm saját, elkerített, privát telekkel eladó.
Tulajdoni formája ikerház, azonban nincs közös lakófal, a tető különálló, csak a garázsok falai érintkeznek egymással, külön mérőórák vannak. A tulajdoni viszonyokat társasházi alapító okirat szabályozza.
Elrendezése földszint: előtér, amerikai konyha-nappali (a beépített konyhabútor a gépekkel az eladás részét képezi), tároló, szoba, fürdőszoba wc-vel, 25 nm terasz, lakás kapcsolatos, egy gépjármű elhelyezésére alkalmas fűtött, 27 nm garázs, a garázs előtt, a kerítésen belül, még 2 gépjárművel kényelmesen parkolhatunk.
Emelet: közlekedő, 3 szoba, fürdőszoba wc-vel, 10 nm terasz.
Műszaki adatokból:
-külső teherhordó fal 30 cm tégla, 17 cm grafit homlokzati szigeteléssel
-belső válaszfalak 10 cm Porotherm tégla
-lábazati hőszigetelés extrudált polisztirol hőszigetelő lemez min. 12,0 cm vastagságban.
-talajon fekvő padló hőszigetelés lépésálló expandált polisztirol hőszigetelő lemez 12 cm vtg-ban
-bádogos szerkezetek festett, színes alumínium, melyek igen magas szinten ötvözött alumíniumból készülnek. A fekvőeresz csatorna és lefolyó rendszer; a vápák és orom szegélyek szintén festett alumínium lemezből készülnek.
-a fűtést a meleg vizet, valamint a mennyezeti hűtést-fűtést, levegő-vízrendszerű hőszivattyús rendszer biztosítja. Alacsony rezsivel számolhat a hőszivattyús rendszernek, és a H tarifájú kedvezményes áram díjszabásának, és a kíváló műszaki tartalomnak köszönhetően.
Az épület 100%-ban padlófűtéssel rendelkezik.
-3 rétegű, 6 légkamrás mindkét oldalon színezett műanyag nyílászárók, elektromos redőnnyel, szúnyoghálóval szereltek.
-pakolható padlástér
-öntöző rendszer, fúrt kút
-2 db elektromos kapu, elektromos garázskapu
Extrákból ízelítő: tűzriasztó, vízlágyító-víztisztító, riasztó és kamera rendszer, 3 rétegű, 14 mm-es tölgyfa parketta, magas minőségű szaniterek, burkolatok, ajtók, a konyhapult és az étkező asztal kvarc kompozit, kandalló, 3 fázis, stb.
Az infrastruktúra nagyon jó, busz, vásárlási lehetőségek a közelben.
Az ingatlan rendkívül igényes, praktikus kialakítású, és hangulatos. Nagyobb családok számára is kitűnő választás, hiszen tágas, világos amerikai-konyhás nappalival, 4 hálószobával és dupla fürdőszobával rendelkezik . Műszakilag és esztétikailag magas színvonal jellemzi.
Hitelezhető, Csok+, és támogatott hitelek is igénybe vehetők rá.
Műszaki dokumentációt tudunk adni.
Irány ár:199.000.000,-Ft
LC8069





INGATLAN ADATAI

Ingatlan jellege
ikerház
Belső terület
180 m²
Telek terület
400 m²
Tájolás
dél, kelet, nyugat
Építési állapot
újszerű
Építési mód
tégla
Szobák száma
5 szoba
Terasz
35 m²
Épület szintje
2.
Épült
2023
Ingatlan állapot
kívül: újszerű
belül: luxus
Klíma
van
Szigetelés
17 cm
Ablak szerkezete
3 rétegű thermoplan
Fűtés
hőszivattyús
Komfort
duplakomfort
Parkolás
van önálló garázs
Közműállapot
csatorna: bekötve
gáz: telken
villany: bekötve
víz: bekötve
Energetika
nincs megadva
TÉRKÉP

Pest megye, Dunaharaszti, Rákócziliget

Hitelkalkulátor


KAPCSOLAT
Hajas Zsuzsanna
Hajas Zsuzsanna


+36 30 229 6926

hajaszsuzsa.leeb@gmail.com

KAPCSOLAT
Hajas Zsuzsanna

+36 30 229

hajaszsuzsa.leeb@

Az időpont kérés naptár ikonja
IDŐPONTOT KÉREK
A visszahívás kérés telefon ikonja egy azt körbe ölelő nyíllal
VISSZAHÍVÁST KÉREK
Ajánlom egy ismerősömnek ikon
AJÁNLOM EGY ISMERŐSÖMNEK
Facebook megosztás ikon
MEGOSZTÁS

KAPCSOLATFELVÉTEL

Küldés

Az üzenetet sikeresen elküldtük!
Hiba történt!
INGATLAN ADATAI

Ingatlan jellege

ikerház

Belső terület

180 m²

Telek terület

400 m²

Tájolás

dél, kelet, nyugat

Építési állapot

újszerű

Építési mód

tégla

Szobák száma

5 szoba

Terasz

35 m²

Épület szintje

2.

Épült

2023

Ingatlan állapot

kívül: újszerű
belül: luxus

Klíma

van

Szigetelés

17 cm

Ablak szerkezete

3 rétegű thermoplan

Fűtés

hőszivattyús

Komfort

duplakomfort

Parkolás

van önálló garázs

Közműállapot

csatorna: bekötve
gáz: telken
villany: bekötve
víz: bekötve

Energetika

nincs megadva

Az időpont kérés naptár ikonja
HTML
Az időpont kérés naptár ikonja
PDF

Hasonló ingatlan hírdetések

Eladó újszerű családi ház, vagy kertes ház hirdetést keres Dunaharaszti területén?
Tekintse meg további ajánlatainkat!

eladó családi ház, Dunaharaszti

eladó családi ház

Pest megye, Dunaharaszti
Megvételre kínálom ezt a Dunaharaszti Alsóvárosán található tágas családi otthont. A ház maga egy osztatlan közös telken található, az első épület kb 60 m2-es, mellette a kocsibehajtón keresztül jutha...
Belső terület
122 m²
Telek terület
443 m²
Szobák
6

82 M Ft

kiemelt
Kiemelt
eladó családi ház, Dunaharaszti

eladó családi ház

Pest megye, Dunaharaszti, (Óváros), Pillangó
✨ Kertvárosi luxus, igazi családi otthon Dunaharasztin – közel Budapesthez! Álmodtatok már egy tágas, modern, zöldövezeti családi házról, ahol a gyerekek szabadon játszhatnak a kertben, miközben ti...
Belső terület
298 m²
Telek terület
800 m²
Szobák
7

249.9 M Ft

Külső medence!
Külső medence
eladó családi ház, Dunaharaszti

eladó családi ház

Pest megye, Dunaharaszti, Bezerédi lakópark
Eladó: Luxus Családi Ház Dunaharaszti Legkedveltebb Lakóparkjában! Fedezze fel álmai otthonát ebben a gyönyörű, luxus minőségű családi házban, amely Dunaharaszti egyik legkedveltebb lakóparkjában t...
Belső terület
240 m²
Telek terület
673 m²
Szobák
5+2

220 M Ft

eladó családi ház, Dunaharaszti

eladó családi ház

Pest megye, Dunaharaszti, (Óváros), Szőlőhegy utca
Több generáció számára ideális otthont keres csendes környezetben? Fedezze fel ezt a kivételes lehetőséget Dunaharaszti legmagasabb pontján, az Óvárosban! Eladó egy 2 generációs, 324 m²-es, három s...
Belső terület
434 m²
Telek terület
1596 m²
Szobák
10

195 M Ft

eladó családi ház, Dunaharaszti

eladó családi ház

Dunaharasztiban 4 lakássá alakított családi ház eladó, bérbeadásra, munkásszállónak ideális.

Pest megye, Dunaharaszti
ELADVA! AZ INGATLANRA VEVŐT TALÁLTUNK 3.5 HÓNAP ALATT! HA ÖN IS ELADNÁ INGATLANÁT, HÍVJON, BESZÉLJÜNK! Dunaharaszti – Alsóváros településrészén eladó egy 108 nm-es, 4 lakásra felosztott családi h...
Belső terület
108 m²
Telek terület
455 m²
Szobák
2+2

52.5 M Ft

eladó családi ház, Dunaharaszti

eladó családi ház

Pest megye, Dunaharaszti
PRÉMIUM MINŐSÉGŰ CSALÁDI HÁZ DUNAHARASZTIN EGYEDI TERVEK ALAPJÁN MEDENCE, DUPLA GARÁZS, TERASZ, ERKÉLY TÁGAS, ÉLHETŐ TEREKKEL, SZINTELTOLÁSOKKAL! Eladó Dunaharaszti kertvárosában, mellékutcában ...
Belső terület
214 m²
Telek terület
560 m²
Szobák
5

159.99 M Ft

Külső medence!
Külső medence
eladó családi ház, Dunaharaszti

eladó családi ház

Pest megye, Dunaharaszti
Nagycsaládos vagy céges főhadiszállást keresel? Akkor olvass tovább! Dunaharaszti Fő útján eladóvá vált egy igazán egyedi, 2 generációnak vagy irodaháznak is alkalmas újszerű tégla családi ház. Az ...
Belső terület
280 m²
Telek terület
775 m²
Szobák
6

149.99 M Ft

eladó családi ház, Dunaharaszti

eladó családi ház

Pest megye, Dunaharaszti, Rákócziliget
Cégek, befektetők figyelem! Dunaharaszti ipari parkhoz közeli Rákóczi-ligeti részén eladó ez a háromemeletes, 1989-ben épült többgenerációs családi ház. Az 500nm telken elhelyezkedő épület 327nm al...
Belső terület
327 m²
Telek terület
500 m²
Szobák
6

109.99 M Ft

Pest megye - Dunaharaszti
Pest megye - Dunaharaszti
Pest megye - Dunaharaszti
Pest megye - Dunaharaszti
Pest megye - Dunaharaszti
Pest megye - Dunaharaszti
Pest megye - Dunaharaszti
Pest megye - Dunaharaszti
Pest megye - Dunaharaszti
Pest megye - Dunaharaszti
Pest megye - Dunaharaszti
Pest megye - Dunaharaszti
Pest megye - Dunaharaszti
Pest megye - Dunaharaszti
Pest megye - Dunaharaszti
Pest megye - Dunaharaszti
Pest megye - Dunaharaszti
Pest megye - Dunaharaszti
Pest megye - Dunaharaszti
Pest megye - Dunaharaszti
Pest megye - Dunaharaszti
Pest megye - Dunaharaszti
Pest megye - Dunaharaszti
Pest megye - Dunaharaszti
Pest megye - Dunaharaszti
Pest megye - Dunaharaszti
Pest megye - Dunaharaszti
Pest megye - Dunaharaszti
Pest megye - Dunaharaszti
Pest megye - Dunaharaszti
Pest megye - Dunaharaszti
Pest megye - Dunaharaszti
Pest megye - Dunaharaszti
Pest megye - Dunaharaszti