Eladó ház - Tatabánya

KAPCSOLAT
Sándor László


+36 70 977

laszlo@

Az időpont kérés naptár ikonja
IDŐPONTOT KÉREK
A visszahívás kérés telefon ikonja egy azt körbe ölelő nyíllal
VISSZAHÍVÁST KÉREK
Ajánlom egy ismerősömnek ikon
AJÁNLOM EGY ISMERŐSÖMNEK
Facebook megosztás ikon
MEGOSZTÁS

KAPCSOLATFELVÉTEL

Küldés

Az üzenetet sikeresen elküldtük!
Hiba történt!
INGATLAN ADATAI

Ingatlan jellege

családi ház

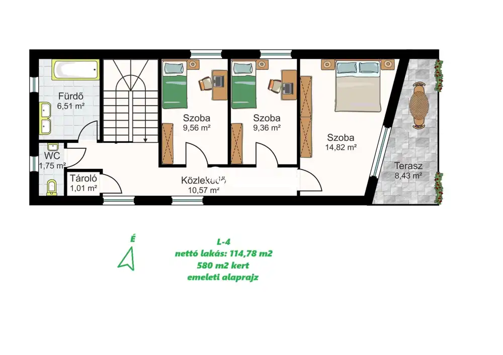
Belső terület

114 m²

Telek terület

580 m²

Tájolás

északkelet

Panoráma

turul-emlékműre

Építési állapot

használt

Építési mód

tégla

Szobák száma

4 szoba

Erkély

8.4 m²

Terasz

8.58 m²

Épület szintje

2.

Épült

2027

Ingatlan állapot

kívül: új
belül: új

Fűtés

hőszivattyús

Komfort

összkomfort

Parkolás

van önálló garázs

Közműállapot

csatorna: bekötve
gáz: telken
villany: bekötve
víz: bekötve

Energetika

nincs megadva

Az időpont kérés naptár ikonja
HTML
Az időpont kérés naptár ikonja
PDF
Eladó ház
Ingatlan azonosító:
4294_ko

Komárom-Esztergom megye, Tatabánya, (Panoráma lakópark), Boróka utca

Irányár

137 M Ft
(1.2 M Ft/㎡)

Szobák

4 szoba

Terület

114 m²

Telek terület

580 m²
INGATLAN LEÍRÁSA
Csak a Komplexnél!

Komárom-Esztergom Vármegyében Tatabányán, a Panoráma-lakóparkban, új, 4 családi házas beruházás veszi kezdetét!

Az építkezés 2026 áprilisában kezdődik ( időjárásfüggő ) és várhatóan 2027 harmadik negyedévében éri el a kulcsrakész állapotot.

Ez a hirdetés az L-4-es ingatlant mutatja be részleteiben, de a projekt minden családi háza azonos időben épül. A következő ingatlanok elérhetők:

L-1-es; 83,46 m2 nettó lakótér+terasz+erkély, 217 m2 kert: 89,9 M Ft.-

L-2-es; 114,66 m2 nettó lakótér+terasz+erkély, fedett parkoló, garázs, tároló, 219 m2 kert: 129,75 M Ft.-

L-3-as; 94,24 m2 nettó lakótér+terasz+erkély, fedett parkoló, garázs, tároló, 259 m2 kert: 105,9 M Ft.-

L-4-es; 114,78 m2 nettó lakótér+terasz+erkély, fedett parkoló, garázs, tároló, 580 m2 kert: 137 M Ft.-

A családi házak csodás panorámával a Gerecse-hegységre, - illetve Tatabánya fő látványosságára - a Kő-hegyen lévő, Turul-emlékműre néznek!

A teljesség igény nélkül, a fontosabb eligazodási adatokat, idézem a műszaki leírásból:

- Alapozás:
Humuszos földréteg letolása (kb. 10-15 cm) után 90 cm széles és a rendezett
terepszint alá minimum 2,0 m mély kútalapok kerülnek kialakításra.
A pontalapokra 25 cm-es vasbeton lemezek ülnek rá.
Pontos kialakítás az építész és statikus tervek alapján.

- Vízszigetelés:
A padló és fal talajnedvesség ellen 1 rétegű VILLAS E-G 4 F/K bitumenes lemezből
készült szigetelést kap. Előtte a felületet portalanítani majd kellősíteni szükséges.
A külső falaknál a vízszigetelést fel kell hajtani min. 25-30 cm magasságban.

- Teherhordó falak:
A teherhordó külső falak 30 cm vtg. POROTHERM 30 N+F tégla falazóelemből
készülnek szükség esetén pillérekkel kiegészítve.

- Födém, belmagasság:
A lakások belmagassága 2,80 m és 2,55 m. A fesztávolság 5,00 m.
A garázsok belmagassága 2,45 m. A fesztávolság 3,90 m.
Az emeleti vasbeton koszorúra faszerkezetes előregyártott rácsostető fedélszerkezet
kerül kialakításra.

- Nyílászárók:
SALAMANDER SL 76 / HEVESTHERM OPTIMA 76
- A" kategóriás 5 légkamrás műanyag ablak profil UW stabil keverékből
- 76mm vastag tok és 82 mm vastag szárnyból álló 3 rétegű üvegezéssel

- Hőszigetelés:
A talajon fekvő padló lépésálló Austrotherm AT-N100-es hőszigetelést kap 12 cm
vtg-ban, mely 12 cm magasságban elhelyezésre kerül a szegélyek mentén, az
aljzatbeton oldalán. A lábazat 20 cm AUSTROTHERM EXPERT hőszigetelést kap. A
padlás 15+ 15 cm kőzetgyapot hőszigetelést kap a gerendák között, és a gerendákra
fektetve. A járhatóságot a födémen biztosítani kell párnafákra erősített ritkított
pallóterítéssel. A főfalak 20 cm vastag AUSTROTHERM AT-H80 homlokzati
hőszigetelést kapnak.

- Burkolatok:
A padlóburkolatok ragasztott greslap és laminált parketta. Az aljzatot kellősíteni kell
Pormex Rapiddal.
A fedett belépő, fedett parkoló és a belső út térkővel burkolt.
A terasz ragasztott fagyálló burkolatot kap. A garázs simított aljzatbetont.
A vizes helyiségekben min. 2,10 m magasságig csempeburkolat készül.
A mennyezet Rigips gipszkartonból készül 2 rtg-ben, glettelve, festve.
A belső felületek vakoltak, gletteltek, festettek.

Az ingatlanok kifizetése, %-os rendszerben, csak az adott, készültségi szint elvégzése után történik!

További részletes tájékoztatás, az Építész műszaki leírás bemutatása, személyesen a Komplex Ingatlanközvetítő irodájában, vagy a Bóróka utcai helyszínen is lehetséges!

A kivitelező cég leinformálható, számos befejezett projekt , fűződik a nevükhöz!

Esetleges hiteligényét - pl. Otthon Start program - gyorsan, pontosan, profi banki háttérrel intézzük!

Köszönöm, h megtekintette a hirdetést!

Amennyiben további kérdései lennének, vagy konkrét vásárlási szándékát jelezné, hétvégén is elérhető vagyok!

S.L.

INGATLAN ADATAI

Ingatlan jellege
családi ház
Belső terület
114 m²
Telek terület
580 m²
Tájolás
északkelet
Panoráma
turul-emlékműre
Építési állapot
használt
Építési mód
tégla
Szobák száma
4 szoba
Erkély
8.4 m²
Terasz
8.58 m²
Épület szintje
2.
Épült
2027
Ingatlan állapot
kívül: új
belül: új
Fűtés
hőszivattyús
Komfort
összkomfort
Parkolás
van önálló garázs
Közműállapot
csatorna: bekötve
gáz: telken
villany: bekötve
víz: bekötve
Energetika
nincs megadva
TÉRKÉP

Komárom-Esztergom megye, Tatabánya, Boróka utca

Hitelkalkulátor


KAPCSOLAT
Sándor László
Sándor László


+36 70 977 0570

laszlo@komplexingatlan.com

KAPCSOLAT
Sándor László

+36 70 977

laszlo@

Az időpont kérés naptár ikonja
IDŐPONTOT KÉREK
A visszahívás kérés telefon ikonja egy azt körbe ölelő nyíllal
VISSZAHÍVÁST KÉREK
Ajánlom egy ismerősömnek ikon
AJÁNLOM EGY ISMERŐSÖMNEK
Facebook megosztás ikon
MEGOSZTÁS

KAPCSOLATFELVÉTEL

Küldés

Az üzenetet sikeresen elküldtük!
Hiba történt!
INGATLAN ADATAI

Ingatlan jellege

családi ház

Belső terület

114 m²

Telek terület

580 m²

Tájolás

északkelet

Panoráma

turul-emlékműre

Építési állapot

használt

Építési mód

tégla

Szobák száma

4 szoba

Erkély

8.4 m²

Terasz

8.58 m²

Épület szintje

2.

Épült

2027

Ingatlan állapot

kívül: új
belül: új

Fűtés

hőszivattyús

Komfort

összkomfort

Parkolás

van önálló garázs

Közműállapot

csatorna: bekötve
gáz: telken
villany: bekötve
víz: bekötve

Energetika

nincs megadva

Az időpont kérés naptár ikonja
HTML
Az időpont kérés naptár ikonja
PDF

Hasonló ingatlan hírdetések

Eladó családi ház, vagy kertes ház hirdetést keres Tatabánya területén?
Tekintse meg további ajánlatainkat!

eladó családi ház, Tatabánya

eladó családi ház

Komárom-Esztergom megye, Tatabánya, (Bánhida), Pósa Lajos utca
Csak a KOMPLEX-nél! Eladó családi ház Tatabánya Bánhidán! Tatabánya szívében, mégis nagyon csendes belső utcában 676m² es telken, 120m² es, három szintes, kertes, családi ház eladó. Az alsó szint...
Belső terület
140 m²
Telek terület
676 m²
Szobák
4

78.9 M Ft

eladó családi ház, Tatabánya

eladó családi ház

Komárom-Esztergom megye, Tatabánya, (Panoráma lakópark), Boróka utca
Csak a Komplexnél! Komárom-Esztergom Vármegyében Tatabányán, a Panoráma-lakóparkban, új, 4 családi házas beruházás veszi kezdetét! Az építkezés 2026 áprilisában kezdődik ( időjárásfüggő ) és vár...
Belső terület
114 m²
Telek terület
219 m²
Szobák
4

129.75 M Ft

eladó családi ház, Tatabánya

eladó családi ház

Komárom-Esztergom megye, Tatabánya, (Panoráma lakópark), Boróka utca
Csak a Komplexnél! Komárom-Esztergom Vármegyében Tatabányán, a Panoráma-lakóparkban, új, 4 családi házas beruházás veszi kezdetét! Az építkezés 2026 áprilisában kezdődik ( időjárásfüggő ) és vár...
Belső terület
83 m²
Telek terület
217 m²
Szobák
3

89.9 M Ft

eladó nyaraló, Tatabánya

eladó nyaraló

Csend, nyugalom, madárcsicsergés, chill! Tatabánya Síkvölgyön. Belterület, 20% beépíthetőség!

Komárom-Esztergom megye, Tatabánya, Síkvölgypuszta
Csend, nyugalom, madárcsicsergés, chill! 20%-ban beépíthető belterületi telek, faházzal, vízzel, villamos árammal, optikai kábeles internettel! Ha Ön ezekre vágyik, akkor ezt a hirdetést feltétlenül...
Belső terület
22 m²
Telek terület
354 m²
Szobák
1

16.9 M Ft

kiemelt
Kiemelt
eladó ikerház, Tatabánya

eladó ikerház

Komárom-Esztergom megye, Tatabánya, (Felsőgalla), Régi Vásártér sor
Leírás Eladó felújított családi ház Tatabányán, Felsőgallán Tatabánya közkedvelt részén, Felsőgallán, a régi városrészben kínálunk megvételre egy 75 m²-es, kiváló állapotú családi házat. Az ingatla...
Belső terület
75 m²
Telek terület
300 m²
Szobák
3

49.99 M Ft

azonnal költözhető
Azonnal költözhető
eladó ikerház, Tatabánya

eladó ikerház

Komárom-Esztergom megye, Tatabánya, Felsőgalla
Tatabánya Felsőgalla, régi városrész csendes zsákutcájában eladó egy 300 m2-es telken álló, 68 m2-es, összközműves iker ház. Az ingatlan három éve teljes felújításon esett át, melynek során a víz- és ...
Belső terület
73 m²
Telek terület
300 m²
Szobák
2

27.99 M Ft + Áfa

azonnal költözhető
Azonnal költözhető
eladó új építésű családi ház, Tatabánya

eladó új építésű családi ház

Komárom-Esztergom megye, Tatabánya, (Panoráma lakópark), Boróka utca
KIZÁRÓLAG IRODÁNKNÁL! Kulcsrakész, modern, kétszintes új építésű sorházi lakás Tatabányán – ideális befektetésnek és első otthonnak! Tatabánya kedvelt részén, a Panoráma lakóparkban, a Boróka utcá...
Belső terület
83 m²
Telek terület
217 m²
Szobák
3

89.9 M Ft

Új építésű!
Új építésű
eladó családi ház, Tatabánya

eladó családi ház

Komárom-Esztergom megye, Tatabánya, (Kertváros), Petőfi Sándor utca
Eladó exkluzív családi ház Tatabánya kertvárosi részén – prémium életérzés és értékálló otthon Fedezze fel ennek a kiemelkedő minőségű, gondosan kialakított családi háznak a páratlan lehetőségeit T...
Belső terület
156 m²
Telek terület
576 m²
Szobák
3

106.9 M Ft

Komárom-Esztergom megye - Tatabánya
Komárom-Esztergom megye - Tatabánya
Komárom-Esztergom megye - Tatabánya
Komárom-Esztergom megye - Tatabánya
Komárom-Esztergom megye - Tatabánya
Komárom-Esztergom megye - Tatabánya
Komárom-Esztergom megye - Tatabánya