Eladó ház - Szentlőrinc

KAPCSOLAT
Boros Linda


+36 70 521

blhomeandfinance@

Az időpont kérés naptár ikonja
IDŐPONTOT KÉREK
A visszahívás kérés telefon ikonja egy azt körbe ölelő nyíllal
VISSZAHÍVÁST KÉREK
Ajánlom egy ismerősömnek ikon
AJÁNLOM EGY ISMERŐSÖMNEK
Facebook megosztás ikon
MEGOSZTÁS

KAPCSOLATFELVÉTEL

Küldés

Az üzenetet sikeresen elküldtük!
Hiba történt!
INGATLAN ADATAI

Ingatlan jellege

családi ház

Belső terület

80 m²

Telek terület

862 m²

Tájolás

dél

Építési állapot

használt

Építési mód

vegyes

Szobák száma

3 szoba

Épület szintje

1.

Épült

1960

Ingatlan állapot

kívül: átlagos
belül: átlagos

Klíma

van

Ablak szerkezete

2 rétegű thermoplan

Fűtés

gázkonvektor

Komfort

összkomfort

Parkolás

van, nem meghatározott

Közműállapot

csatorna: bekötve
gáz: bekötve
villany: bekötve
víz: bekötve

Energetika

nincs megadva

Az időpont kérés naptár ikonja
HTML
Az időpont kérés naptár ikonja
PDF
Eladó ház
Ingatlan azonosító:
42_tw

Baranya megye, Szentlőrinc

Irányár

34.99 M Ft
(437.38 E Ft/㎡)

Szobák

3 szoba

Terület

80 m²

Telek terület

862 m²
INGATLAN LEÍRÁSA
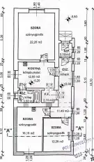
Eladásra kínálok Szentlőrinc családi házas övezetében, egy családi házat.

Az ingatlan 2005-ben bővítésre került. A korábbi házhoz hozzáépítésre került 2 db szoba.
Az eredeti ház vegyes falazatú, mely a 60-as években épült.

Jelenlegi állapotában, így egy 3 szobás családi ház keresi új tulajdonosát.
Fűtése jelenleg gázkonvektorral, fa tüzelésű kályhával, és hűtő-fűtő klímával megoldott. Nyílászárói, 2 rétegű fa nyílászárók, melyek 2005-ben kerültek beépítésre.

A telek mérete 862 m2, melyen 80 m2 a ház. Tetőtér beépítés lehetséges.

A ház végében található egy téglából épült épület, mely jelenleg garázsként funkcionál.

Amennyiben hitelre lenne szüksége a megvásárláshoz, állok rendelkezésre, mint független pénzügyi szakember.

További infó, megtekintés esetén várom hívását a megadott telefonszámon.

INGATLAN ADATAI

Ingatlan jellege
családi ház
Belső terület
80 m²
Telek terület
862 m²
Tájolás
dél
Építési állapot
használt
Építési mód
vegyes
Szobák száma
3 szoba
Épület szintje
1.
Épült
1960
Ingatlan állapot
kívül: átlagos
belül: átlagos
Klíma
van
Ablak szerkezete
2 rétegű thermoplan
Fűtés
gázkonvektor
Komfort
összkomfort
Parkolás
van, nem meghatározott
Közműállapot
csatorna: bekötve
gáz: bekötve
villany: bekötve
víz: bekötve
Energetika
nincs megadva
TÉRKÉP

Baranya megye, Szentlőrinc

Hitelkalkulátor


KAPCSOLAT
Boros Linda
Boros Linda


+36 70 521 0521

blhomeandfinance@gmail.com

KAPCSOLAT
Boros Linda

+36 70 521

blhomeandfinance@

Az időpont kérés naptár ikonja
IDŐPONTOT KÉREK
A visszahívás kérés telefon ikonja egy azt körbe ölelő nyíllal
VISSZAHÍVÁST KÉREK
Ajánlom egy ismerősömnek ikon
AJÁNLOM EGY ISMERŐSÖMNEK
Facebook megosztás ikon
MEGOSZTÁS

KAPCSOLATFELVÉTEL

Küldés

Az üzenetet sikeresen elküldtük!
Hiba történt!
INGATLAN ADATAI

Ingatlan jellege

családi ház

Belső terület

80 m²

Telek terület

862 m²

Tájolás

dél

Építési állapot

használt

Építési mód

vegyes

Szobák száma

3 szoba

Épület szintje

1.

Épült

1960

Ingatlan állapot

kívül: átlagos
belül: átlagos

Klíma

van

Ablak szerkezete

2 rétegű thermoplan

Fűtés

gázkonvektor

Komfort

összkomfort

Parkolás

van, nem meghatározott

Közműállapot

csatorna: bekötve
gáz: bekötve
villany: bekötve
víz: bekötve

Energetika

nincs megadva

Az időpont kérés naptár ikonja
HTML
Az időpont kérés naptár ikonja
PDF

Hasonló ingatlan hírdetések

Eladó családi ház, vagy kertes ház hirdetést keres Szentlőrinc területén?
Jelenleg nincsenek hasonló aktuális ajánlatok Szentlőrinc településen.
Tekintse meg további Baranya megyei ajánlatainkat !

eladó családi ház, Lánycsók

eladó családi ház

Baranya megye, Lánycsók
Felújított, azonnal költözhető családi ház eladó Lánycsókon! Lánycsókon Baranya megyében, Mohácstól mindössze 5 km-re, csendes és rendezett környezetben kínálunk megvételre egy 2025-ben teljes körű...
Belső terület
93 m²
Telek terület
1317 m²
Szobák
3

28.5 M Ft

eladó családi ház, Bár

eladó családi ház

Baranya megye, Bár
Bárban, Mohácstól mindössze 7 km-re kiváló állapotú, folyamatosan karbantartott családi ház eladó! Baranya megye egyik legkedveltebb, nyugodt és rendezett településén kínáljuk megvételre ezt a gond...
Belső terület
152 m²
Telek terület
2723 m²
Szobák
4

35 M Ft

eladó ikerház, Mohács

eladó ikerház

Baranya megye, Mohács
Mohácson, a belvároshoz közel, kiváló állapotú, tégla építésű emeletes ikerház fele eladó! Csendes utcában, mégis mindenhez közel kínálunk megvételre egy szerkezetileg kifogástalan, jó elosztású cs...
Belső terület
110 m²
Telek terület
632 m²
Szobák
3

45 M Ft

eladó családi ház, Homorúd

eladó családi ház

Baranya megye, Homorúd
Homorúdon tágas családi ház nagy telekkel, melléképületekkel – ideális otthon! Eladásra kínálunk egy kiváló adottságokkal rendelkező, 1990-ben épült, tégla falazatú lakóházat, Homorúd csendes utcáj...
Belső terület
134 m²
Telek terület
2590 m²
Szobák
4

27.5 M Ft

eladó új építésű ikerház, Pécs

eladó új építésű ikerház

Baranya megye, Pécs, (Balokány), Ditz-malom utca
Modern ikerházi lakás eladó Pécs belvárosának közvetlen szomszédságában! Eladásra kínálunk egy kiváló elrendezésű, 72 m²-es ikerházat, amely Pécs egyik legkedveltebb, csendes, mégis központi részén...
Belső terület
72 m²
Telek terület
100 m²
Szobák
4

79.9 M Ft

eladó családi ház, Himesháza

eladó családi ház

Baranya megye, Himesháza
Himesházán részben felújított családi ház eladó! Himesházán kínálunk megvételre egy jó állapotú, részben felújított családi házat, gondozott, parkosított telken. Himesháza egy nyugodt, barátságos ...
Belső terület
91 m²
Telek terület
918 m²
Szobák
2+1

35 M Ft

eladó családi ház, Dunaszekcső

eladó családi ház

Baranya megye, Dunaszekcső
Dunaszekcsőn felújított családi ház eladó! Dunaszekcsőn kínálunk eladásra egy jó állapotú, gondosan karbantartott családi házat, amely ideális választás akár családoknak, akár nyugodt vidéki életre...
Belső terület
98 m²
Telek terület
559 m²
Szobák
4

16.5 M Ft

eladó családi ház, Somberek

eladó családi ház

Baranya megye, Somberek
Sombereken két lakrészes, részben felújított családi ház eladó! Somberek Baranya vármegye déli részén, csendes, hagyományőrző német nemzetiségi faluban található, mindössze néhány percre Mohácstól....
Belső terület
202 m²
Telek terület
910 m²
Szobák
8

45 M Ft

Baranya megye - Szentlőrinc
Baranya megye - Szentlőrinc
Baranya megye - Szentlőrinc
Baranya megye - Szentlőrinc
Baranya megye - Szentlőrinc
Baranya megye - Szentlőrinc
Baranya megye - Szentlőrinc
Baranya megye - Szentlőrinc
Baranya megye - Szentlőrinc
Baranya megye - Szentlőrinc
Baranya megye - Szentlőrinc
Baranya megye - Szentlőrinc
Baranya megye - Szentlőrinc
Baranya megye - Szentlőrinc
Baranya megye - Szentlőrinc
Baranya megye - Szentlőrinc