Eladó ház - Rétság

KAPCSOLAT
Erdősi Tamás


+36 30 518

erdosi.tamas.rds@

Az időpont kérés naptár ikonja
IDŐPONTOT KÉREK
A visszahívás kérés telefon ikonja egy azt körbe ölelő nyíllal
VISSZAHÍVÁST KÉREK
Ajánlom egy ismerősömnek ikon
AJÁNLOM EGY ISMERŐSÖMNEK
Facebook megosztás ikon
MEGOSZTÁS

KAPCSOLATFELVÉTEL

Küldés

Az üzenetet sikeresen elküldtük!
Hiba történt!
INGATLAN ADATAI

Ingatlan jellege

családi ház

Belső terület

95 m²

Telek terület

701 m²

Tájolás

délnyugat

Építési állapot

használt

Építési mód

tégla

Szobák száma

5 szoba

Terasz

16.47 m²

Épület szintje

1.

Épült

2026

Ingatlan állapot

kívül: új
belül: új

Klíma

van

Ablak szerkezete

3 rétegű thermoplan

Fűtés

hőszivattyús

Komfort

összkomfort

Parkolás

van fedetlen felszíni beálló

Közműállapot

csatorna: bekötve
gáz: utcában
villany: bekötve
víz: bekötve

Energetika

nincs megadva

Az időpont kérés naptár ikonja
HTML
Az időpont kérés naptár ikonja
PDF
Eladó ház
Ingatlan azonosító:
12687_rds

Nógrád megye, Rétság, Templom utca

Irányár

99.99 M Ft
(1.05 M Ft/㎡)

Szobák

5 szoba

Terület

95 m²

Telek terület

701 m²
INGATLAN LEÍRÁSA
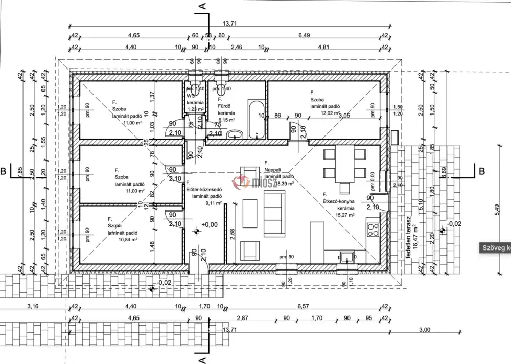
Rétság egyik kedvelt, központhoz közeli utcájában, a Templom utcában kínálok megvételre egy önálló, 701 m²-es telken elhelyezkedő, modern műszaki tartalommal épülő családi házat, amely kiváló elrendezésének és energiatudatos megoldásainak köszönhetően hosszú távon is értékálló választás lehet.

Az ingatlan nettó 95,01 m² lakóterülettel és egy 16,47 m²-es terasszal rendelkezik, amely ideális teret biztosít a családi együttlétekhez és a nyugodt kikapcsolódáshoz. A belső elosztás átgondolt és praktikus: tágas amerikai-konyhás nappali, négy különnyíló szoba, fürdőszoba, külön mellékhelyiség és előszoba szolgálja a kényelmes mindennapokat, akár nagyobb család számára is.

A ház jelenlegi készültségi szintje 80%. Falazata 30-as Porotherm téglából készült, 15 cm külső hőszigeteléssel, a födém 30 cm kőzetgyapot szigetelést kapott, a tető cserépfedéssel készül. A korszerű hőszivattyús rendszer biztosítja a padlófűtést és a melegvíz-ellátást, míg a hűtő-fűtő klíma gondoskodik a nyári komfortérzetről is. Az energiahatékony gépészetnek köszönhetően az ingatlan fenntartási költsége kedvezően alakulhat.

A burkolatok kiválasztása a leendő tulajdonos ízlésére van bízva: laminált padló és járólap egységesen 5.000 Ft/m² árkategóriáig választható, magasabb ár esetén kizárólag a különbözet fizetendő. Ez lehetőséget ad arra, hogy az otthon valóban személyre szabott megjelenést kapjon.

A közművek – villany, víz, csatorna – bevezetésre kerültek, az optikai internet hálózat elérhető. A ház aszfaltos úton megközelíthető, elhelyezkedése ideális, hiszen a város központja rövid távolságon belül elérhető, mégis nyugodt, élhető környezetet biztosít.

A várható befejezés az adásvételi vagy előszerződés megkötését követő 90 napon belül történik. A fix, 99.990.000 Ft-os vételár a burkolt, fűtéskész, használatbavételi engedély megszerzéséhez szükséges állapotra vonatkozik. A kivitelező külön megállapodás alapján vállalja a telek rendezését, asztalos munkák és egyéb befejező munkálatok elvégzését is, amelyek nem képezik a meghirdetett vételár részét. Az ingatlan igény esetén a jelenlegi készültségi állapotban is megvásárolható.

Rétság a Börzsöny és a Cserhát határán fekszik, ez az adottság határozza meg a környék jellegét is. A településen áthalad a 2-s számú (nemzetközi: E77) főútvonal.
Rétságon, mint járási központban megtalálható minden, amire a hétköznapokban szükség lehet: polgármesteri hivatal, orvosi rendelő, óvoda, iskola, posta, járóbeteg-szakellátó központ, munkaügyi kirendeltség, bank, művelődési központ, vegyesboltok, töltőállomások, valamint nemrégiben egy modern uszoda került megépítésre.. Mivel a 2-es számú nemzetközi főútvonal áthalad a városon, így közlekedés szempontjából is kedvező helyen fekszik. Budapest autóval 45 perc alatt elérhető, de óránként indulnak távolsági buszjáratok is a fővárosba. Rétságon a fejlődő és bővülő ipari park folyamatos munkalehetőséget kínál az itt élők számára, de a közeli nagyobb városokba (Vác 23 km-re, Balassagyarmat 25 km-re) való ingázás sem ütközik akadályba a jó tömegközlekedésnek köszönhetően.

INGATLAN ADATAI

Ingatlan jellege
családi ház
Belső terület
95 m²
Telek terület
701 m²
Tájolás
délnyugat
Építési állapot
használt
Építési mód
tégla
Szobák száma
5 szoba
Terasz
16.47 m²
Épület szintje
1.
Épült
2026
Ingatlan állapot
kívül: új
belül: új
Klíma
van
Ablak szerkezete
3 rétegű thermoplan
Fűtés
hőszivattyús
Komfort
összkomfort
Parkolás
van fedetlen felszíni beálló
Közműállapot
csatorna: bekötve
gáz: utcában
villany: bekötve
víz: bekötve
Energetika
nincs megadva
TÉRKÉP

Nógrád megye, Rétság, Templom utca

Hitelkalkulátor


KAPCSOLAT
Erdősi Tamás
Erdősi Tamás


+36 30 518 2620

erdosi.tamas.rds@gmail.com

KAPCSOLAT
Erdősi Tamás

+36 30 518

erdosi.tamas.rds@

Az időpont kérés naptár ikonja
IDŐPONTOT KÉREK
A visszahívás kérés telefon ikonja egy azt körbe ölelő nyíllal
VISSZAHÍVÁST KÉREK
Ajánlom egy ismerősömnek ikon
AJÁNLOM EGY ISMERŐSÖMNEK
Facebook megosztás ikon
MEGOSZTÁS

KAPCSOLATFELVÉTEL

Küldés

Az üzenetet sikeresen elküldtük!
Hiba történt!
INGATLAN ADATAI

Ingatlan jellege

családi ház

Belső terület

95 m²

Telek terület

701 m²

Tájolás

délnyugat

Építési állapot

használt

Építési mód

tégla

Szobák száma

5 szoba

Terasz

16.47 m²

Épület szintje

1.

Épült

2026

Ingatlan állapot

kívül: új
belül: új

Klíma

van

Ablak szerkezete

3 rétegű thermoplan

Fűtés

hőszivattyús

Komfort

összkomfort

Parkolás

van fedetlen felszíni beálló

Közműállapot

csatorna: bekötve
gáz: utcában
villany: bekötve
víz: bekötve

Energetika

nincs megadva

Az időpont kérés naptár ikonja
HTML
Az időpont kérés naptár ikonja
PDF

Hasonló ingatlan hírdetések

Eladó családi ház, vagy kertes ház hirdetést keres Rétság területén?
Tekintse meg további ajánlatainkat!

eladó családi ház, Rétság

eladó családi ház

Nógrád megye, Rétság, Széchenyi utca
Rétság egyik legkedveltebb részén, a Széchenyi utcában, közvetlenül az Ady Endre utcai játszótér közelében kínálunk megvételre egy sok lehetőséget rejtő, akár két generáció számára is ideális családi ...
Belső terület
135 m²
Telek terület
1197 m²
Szobák
5

59.99 M Ft

eladó ikerház, Rétság

eladó ikerház

Nógrád megye, Rétság, Nógrádi utca
Rétság csendes, családi házas övezetében, a Nógrádi utcából és a Petőfi utcából nyíló, újonnan kialakított részen kínálunk megvételre négy modern ikerházfelet, amelyek letisztult formavilágukkal, átgo...
Belső terület
112 m²
Telek terület
330 m²
Szobák
5

94.9 M Ft

eladó családi ház, Rétság

eladó családi ház

Nógrád megye, Rétság
Panorámás, 3 szintes családi ház eladó Rétság Rózsadombján! Rétság egyik legszebb részén, eladó egy 189 m²-es, háromszintes családi ház, ahonnan gyönyörű kilátás nyílik a környező hegyekre és f...
Belső terület
189 m²
Telek terület
986 m²
Szobák
6

75 M Ft

eladó családi ház, Rétság

eladó családi ház

Nógrád megye, Rétság, Kossuth Lajos utca
Rétság, Kossuth utcában – Központhoz közeli, két külön bejáratú lakásból álló családi ház eladó. Rétság központjához közel kínálunk megvételre egy kiváló adottságokkal rendelkező, felújított család...
Belső terület
146 m²
Telek terület
524 m²
Szobák
5

94.99 M Ft

eladó családi ház, Rétság

eladó családi ház

Nógrád megye, Rétság, Mező utca
Rétság csendes, rendezett utcájában eladó egy 1203 m²-es telken álló, kétgenerációs családi ház, amely két teljesen külön lakásból áll, önálló közműmérőkkel és elszámolással. Az ingatlan ideális válas...
Belső terület
242 m²
Telek terület
1203 m²
Szobák
9

129.9 M Ft

eladó családi ház, Rétság

eladó családi ház

Nógrád megye, Rétság, Petőfi Sándor utca
Eladó kizárólag irodánk kínálatában a Petőfi utcában egy 120 nm-es családi ház 780 nm-es telekkel Rétságon! Rétság kellemes, családbarát környezetében kínálunk megvételre egy jó állapotú, tetőtér b...
Belső terület
120 m²
Telek terület
780 m²
Szobák
4

68.9 M Ft

Nógrád megye - Rétság
Nógrád megye - Rétság
Nógrád megye - Rétság
Nógrád megye - Rétság
Nógrád megye - Rétság
Nógrád megye - Rétság
Nógrád megye - Rétság
Nógrád megye - Rétság
Nógrád megye - Rétság
Nógrád megye - Rétság
Nógrád megye - Rétság
Nógrád megye - Rétság
Nógrád megye - Rétság
Nógrád megye - Rétság
Nógrád megye - Rétság
Nógrád megye - Rétság