Eladó ház - Markaz

KAPCSOLAT
Laki Veronika Anna


+36 70 771

laki.veronika.anna@

Az időpont kérés naptár ikonja
IDŐPONTOT KÉREK
A visszahívás kérés telefon ikonja egy azt körbe ölelő nyíllal
VISSZAHÍVÁST KÉREK
Ajánlom egy ismerősömnek ikon
AJÁNLOM EGY ISMERŐSÖMNEK
Facebook megosztás ikon
MEGOSZTÁS

KAPCSOLATFELVÉTEL

Küldés

Az üzenetet sikeresen elküldtük!
Hiba történt!
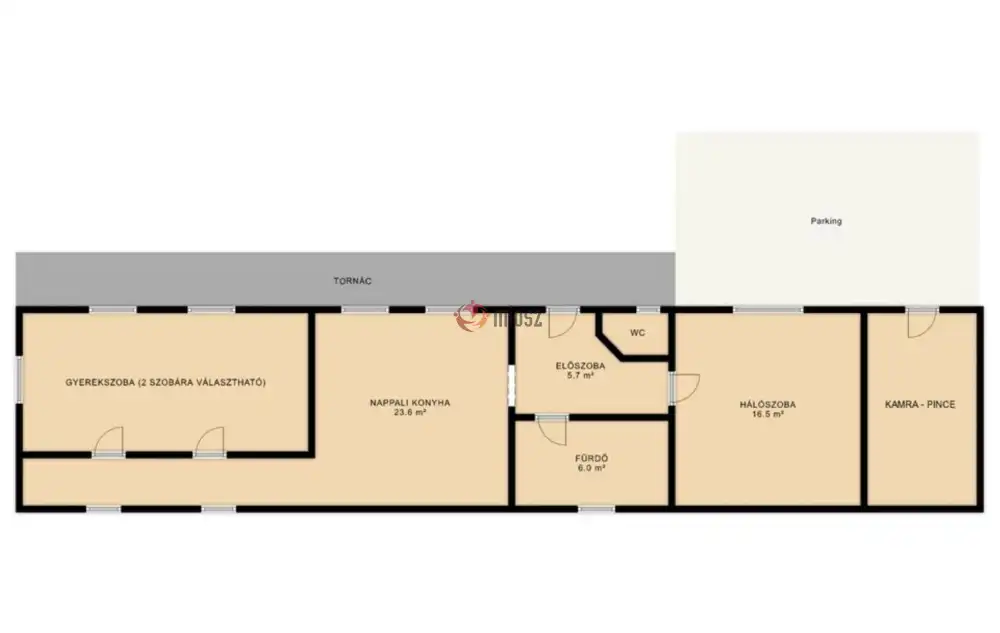
INGATLAN ADATAI

Ingatlan jellege

családi ház

Belső terület

75 m²

Telek terület

900 m²

Tájolás

dél

Építési állapot

használt

Építési mód

vályog

Szobák száma

3 szoba

Szobák elhelyezkedése

külön nyílik min. 2 szoba

Épület szintje

1.

Épült

kb. 1965

Ingatlan állapot

kívül: részben felújított
belül: felújított

Fűtés

központi fűtés

Komfort

összkomfort

Parkolás

van fedett felszíni beálló

Közműállapot

csatorna: bekötve
gáz: bekötve
villany: bekötve
víz: bekötve

Energetika

nincs megadva

Az időpont kérés naptár ikonja
HTML
Az időpont kérés naptár ikonja
PDF
Eladó ház
Ingatlan azonosító:
12_lvi

Heves megye, Markaz, Dobó utca

Irányár

52 M Ft
(693.33 E Ft/㎡)

Szobák

3 szoba

Terület

75 m²

Telek terület

900 m²
INGATLAN LEÍRÁSA
***Markaz gyönyörű településén eladó központból nyíló gyönyörű csendes mellékutcában családi ház.***

*** Az ingatlan különlegessége, hogy a telek határban kis patak, völgy és erdővonulata, azaz az erdei állatok be-beköszönnek a kerítésnél időnként.***

Igazi különlegesség és még a Markazi tó is pár oercre található, ami horgásztóként üzemel, viszont kirándulásra és pihenésre is ideális lehetőség.

Az ingatlan TELJESKÖRŰ felújításon esett át!
- Tető CSERE
- Kőzetgyapot szigeteléssel
- Teljes villanyhálózat csere
- Vízhálózat csere
- Nyílászáró csere
- Szobákban laminált burkolat
- Többi helyiség hideg burkolatot kapott
- Teljes központi fűtés lapradiátorral kondenzációs gázkazánról és a melegvíz is rákötve.

Felszerelésre került 3 db GREE hűtő-fűtő klíma!
A házban a belmagasság 2,45, így kedvező áron fenntartható.

Tartozik hozzá 2 méter körüli belmagasságú pince, fedett autóbeálló 2 autó számára. A telek teljes körbe van kerítve.

Ha felketette az érdeklődését, keressen bizalommal a megtekintéshez, valamint vásárlásnál is számíthat végig a teljes közreműködésemre adásvételnél, hitel esetén, birtokbaadásnál!

INGATLAN ADATAI

Ingatlan jellege
családi ház
Belső terület
75 m²
Telek terület
900 m²
Tájolás
dél
Építési állapot
használt
Építési mód
vályog
Szobák száma
3 szoba
Szobák elhelyezkedése
külön nyílik min. 2 szoba
Épület szintje
1.
Épült
kb. 1965
Ingatlan állapot
kívül: részben felújított
belül: felújított
Fűtés
központi fűtés
Komfort
összkomfort
Parkolás
van fedett felszíni beálló
Közműállapot
csatorna: bekötve
gáz: bekötve
villany: bekötve
víz: bekötve
Energetika
nincs megadva
TÉRKÉP

Heves megye, Markaz, Dobó utca

Hitelkalkulátor


KAPCSOLAT
Laki Veronika Anna
Laki Veronika Anna


+36 70 771 7330

laki.veronika.anna@gmail.com

KAPCSOLAT
Laki Veronika Anna

+36 70 771

laki.veronika.anna@

Az időpont kérés naptár ikonja
IDŐPONTOT KÉREK
A visszahívás kérés telefon ikonja egy azt körbe ölelő nyíllal
VISSZAHÍVÁST KÉREK
Ajánlom egy ismerősömnek ikon
AJÁNLOM EGY ISMERŐSÖMNEK
Facebook megosztás ikon
MEGOSZTÁS

KAPCSOLATFELVÉTEL

Küldés

Az üzenetet sikeresen elküldtük!
Hiba történt!
INGATLAN ADATAI

Ingatlan jellege

családi ház

Belső terület

75 m²

Telek terület

900 m²

Tájolás

dél

Építési állapot

használt

Építési mód

vályog

Szobák száma

3 szoba

Szobák elhelyezkedése

külön nyílik min. 2 szoba

Épület szintje

1.

Épült

kb. 1965

Ingatlan állapot

kívül: részben felújított
belül: felújított

Fűtés

központi fűtés

Komfort

összkomfort

Parkolás

van fedett felszíni beálló

Közműállapot

csatorna: bekötve
gáz: bekötve
villany: bekötve
víz: bekötve

Energetika

nincs megadva

Az időpont kérés naptár ikonja
HTML
Az időpont kérés naptár ikonja
PDF

Hasonló ingatlan hírdetések

Eladó családi ház, vagy kertes ház hirdetést keres Markaz területén?
Jelenleg nincsenek hasonló aktuális ajánlatok Markaz településen.
Tekintse meg további Heves megyei ajánlatainkat !

eladó családi ház, Parád

eladó családi ház

Heves megye, Parád, Parádóhuta
A Mátra hegység északi oldalán, turisztikailag kedvelt kirándulóhelyen, a festői szépségű zsákfaluban, Parádóhután elhelyezkedő, 60 nm-es, földszintes, felújítandó állapotban lévő, tornácos parasztház...
Belső terület
60 m²
Telek terület
600 m²
Szobák
1+1

22.9 M Ft

eladó családi ház, Egerszalók

eladó családi ház

Kiemelt ajánlat Egerszalókon! Álomotthon hatalmas telekkel, parkolóval, fedett beállóval! Fedezd fel ezt a részben felújított családi házat külön nyíló szobákkal, kiváló elhelyezkedéssel, teljes közművel! Ideális családoknak vagy befektetőknek! További információkért keressen elérhetőségeim egyikén! ✨

Heves megye, Egerszalók, Kossuth utca
Tágas otthon nagy telekkel Egerszalók szívében Eladóvá vált egy részben felújított, vegyes falazatú családi ház Egerszalók egyik legkedveltebb részén. A 73 m²-es, egyszintes ház napfényes (déli, dé...
Belső terület
73 m²
Telek terület
2466 m²
Szobák
1+1

32 M Ft

kiemelt
Kiemelt
eladó családi ház, Tiszanána

eladó családi ház

Eladó tágas családi ház Tiszanánán! ???????? Fedezd fel ezt a két szintes, 3 hálószobás otthont, nagy kerttel! Különnyíló szobák, dupla komfort, garázs 2 autónak! Igazi otthonos hangulat, ideális családoknak! Ne hagyd ki, álmaid otthona rád vár! ????✨

Heves megye, Tiszanána, Fő út
Családi otthon Tiszanánán Tiszanána nyugodt részén eladó egy 110 m²-es, 2 szintes tégla építésű családi ház, mely 1248 m²-es telken helyezkedik el. Az ingatlan 1974-ben épült, a helyiségek között e...
Belső terület
110 m²
Telek terület
1248 m²
Szobák
3

31.5 M Ft

eladó családi ház, Parád

eladó családi ház

Heves megye, Parád
A Mátra hegység északi oldalán, a turisztikailag kedvelt kirándulóhelyen, Parádon elhelyezkedő, 85 nm-es, 3 szobás, jó állapotban lévő családi ház eladó! Az eladó parádi családi ház jellemzői: -...
Belső terület
85 m²
Telek terület
1680 m²
Szobák
2+1

55.9 M Ft

eladó sorház, Eger-Felnémet

eladó sorház

Heves megye, Eger-Felnémet, Pirityó utca
Egerben keresel családi házat de túl magasak az árak? Ezt a lehetőséget érdemes megfontolni! Egerben a Pásztorvölgyben, Pirittyó utcában sorház jellegű, saját kertes társasházban, nappali+3 szobás...
Belső terület
100 m²
Telek terület
550 m²
Szobák
4

87.5 M Ft

eladó családi ház, Csány

eladó családi ház

Heves megye, Csány, Központi elhelyezkedés
Modern luxus Csány központjában – alacsony rezsi, azonnal költözhető! Teljesen felújított, 97 m²-es családi ház várja új tulajdonosát! Külső hőszigetelés, modern műanyag nyílászárók, gáz cirkó fűté...
Belső terület
97 m²
Telek terület
850 m²
Szobák
3

48.5 M Ft

eladó családi ház, Kömlő

eladó családi ház

Heves megye, Kömlő
Falusi „Birtok” Kömlőn – felújított ház, saját akácos, nyugalom és biztonság Kömlő csendes, zavartalan részén eladó egy 72 nm-es, szépen karbantartott családi ház, amely egy 4000 nm-es, akácos telk...
Belső terület
72 m²
Telek terület
4000 m²
Szobák
2

11.5 M Ft

sürgős!
Sürgős
eladó családi ház, Füzesabony

eladó családi ház

Heves megye, Füzesabony, Telep
Füzesabony telepi részén, csendes, nyugodt utcában eladó egy AZONNAL KÖLTÖZHETŐ 100 m²-es hagyományos “Kádár kocka” családi ház. Az ingatlan 897 m²-es telken fekszik. A ház 1975-ben épült szilikát fa...
Belső terület
100 m²
Telek terület
897 m²
Szobák
3

30.7 M Ft

Heves megye - Markaz
Heves megye - Markaz
Heves megye - Markaz
Heves megye - Markaz
Heves megye - Markaz
Heves megye - Markaz
Heves megye - Markaz
Heves megye - Markaz
Heves megye - Markaz
Heves megye - Markaz
Heves megye - Markaz
Heves megye - Markaz
Heves megye - Markaz
Heves megye - Markaz
Heves megye - Markaz
Heves megye - Markaz