Eladó ház - Geresdlak

KAPCSOLAT
Szabó Róbert


+36 20 251

szaborobert@

Az időpont kérés naptár ikonja
IDŐPONTOT KÉREK
A visszahívás kérés telefon ikonja egy azt körbe ölelő nyíllal
VISSZAHÍVÁST KÉREK
Ajánlom egy ismerősömnek ikon
AJÁNLOM EGY ISMERŐSÖMNEK
Facebook megosztás ikon
MEGOSZTÁS

KAPCSOLATFELVÉTEL

Küldés

Az üzenetet sikeresen elküldtük!
Hiba történt!
INGATLAN ADATAI

Ingatlan jellege

családi ház

Belső terület

133 m²

Telek terület

681 m²

Tájolás

nyugat

Építési állapot

használt

Építési mód

tégla

Szobák száma

5 szoba

Szobák elhelyezkedése

külön nyílik min. 2 szoba

Terasz

25 m²

Épület szintje

1.

Ingatlan állapot

kívül: jó
belül: jó

Klíma

van

Ablak szerkezete

2 rétegű thermoplan

Fűtés

gázkazán

Komfort

összkomfort

Közműállapot

csatorna: bekötve
gáz: bekötve
villany: bekötve
víz: bekötve

Energetika

nincs megadva

Az időpont kérés naptár ikonja
HTML
Az időpont kérés naptár ikonja
PDF
Eladó ház
Ingatlan azonosító:
999_sri

Baranya megye, Geresdlak

Irányár

48 M Ft
(360.9 E Ft/㎡)

Szobák

5 szoba

Terület

133 m²

Telek terület

681 m²
INGATLAN LEÍRÁSA
Két külön lakrész, jó állapot – ideális többgenerációs otthon Geresdlakon

Geresdlak csendes, rendezett településén eladó egy jó állapotú, két külön lakóépületből álló ingatlan, amely kiváló választás lehet nagyobb családoknak, többgenerációs családnak vagy akár összeköltözőknek. A faluban minden fontos szolgáltatás megtalálható: iskola, óvoda, orvosi rendelő, posta, benzinkút, Polgármesteri Hivatal, így a mindennapi élet kényelmesen megszervezhető.

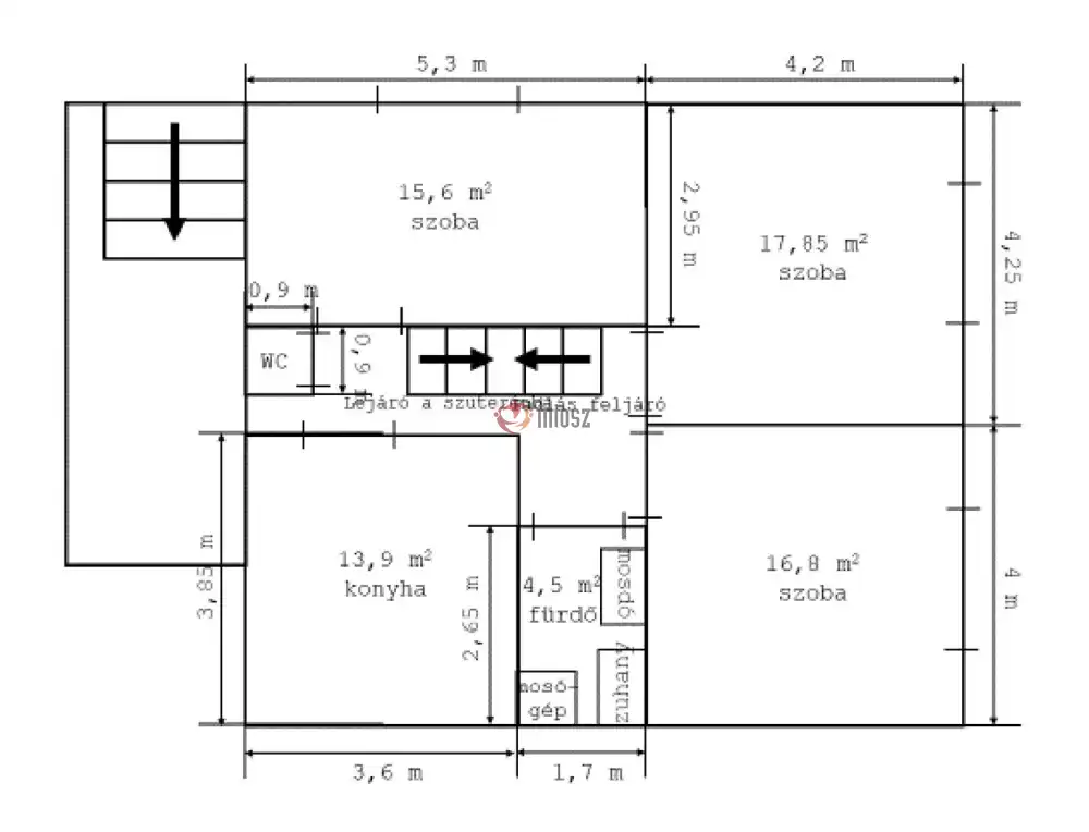
Főépület – 78 m²
Előszoba, konyha, fürdő, külön WC és három szoba biztosítja az élhető, családbarát elrendezést.
• Hőszigetelt külső nyílászárók
• Részben felújított elektromos és szennyvízhálózat
• Felújított tető és ereszcsatorna
• Kiváló állapotú konyha, fürdő és burkolatok
• Az egyik szoba légkondicionált
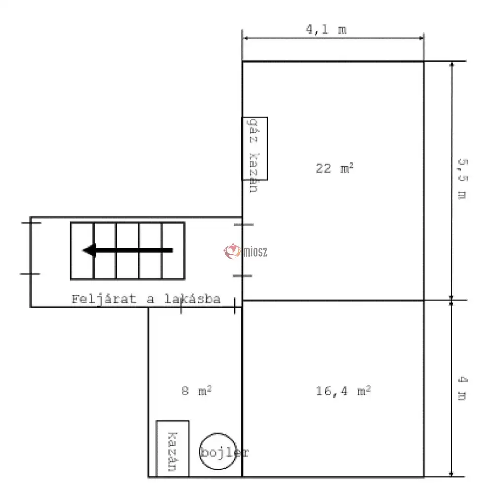
A fűtés vegyes tüzelésű kazánnal és gázkazánnal is megoldott, a kazánok az épület alatti alagsorban kaptak helyet – gazdaságos és rugalmas megoldás.

Külön bejáratú lakrész – 55 m²
Előszoba, fürdő WC-vel és két szoba.
Fűtése gázkonvektoros, a meleg vizet itt is villanybojler biztosítja.

A két lakrész között tágas terasz került kialakításra, ami közös családi térként vagy nyári pihenőhelyként is ideális.
Az ingatlanhoz tartozik továbbá:
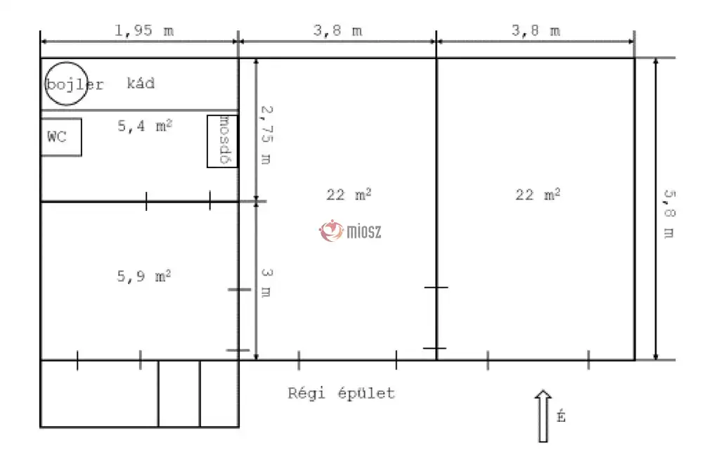
✔ nyári konyha
✔ kamra, tárolók
✔ kút
✔ rendezett, gondozott udvar
Ha meg szeretné tekinteni az ingatlant hívjon bizalommal!


INGATLAN ADATAI

Ingatlan jellege
családi ház
Belső terület
133 m²
Telek terület
681 m²
Tájolás
nyugat
Építési állapot
használt
Építési mód
tégla
Szobák száma
5 szoba
Szobák elhelyezkedése
külön nyílik min. 2 szoba
Terasz
25 m²
Épület szintje
1.
Ingatlan állapot
kívül: jó
belül: jó
Klíma
van
Ablak szerkezete
2 rétegű thermoplan
Fűtés
gázkazán
Komfort
összkomfort
Közműállapot
csatorna: bekötve
gáz: bekötve
villany: bekötve
víz: bekötve
Energetika
nincs megadva
TÉRKÉP

Baranya megye, Geresdlak

Hitelkalkulátor


KAPCSOLAT
Szabó Róbert
Szabó Róbert


+36 20 251 0667

szaborobert@ingatlan-magyarorszag.hu

KAPCSOLAT
Szabó Róbert

+36 20 251

szaborobert@

Az időpont kérés naptár ikonja
IDŐPONTOT KÉREK
A visszahívás kérés telefon ikonja egy azt körbe ölelő nyíllal
VISSZAHÍVÁST KÉREK
Ajánlom egy ismerősömnek ikon
AJÁNLOM EGY ISMERŐSÖMNEK
Facebook megosztás ikon
MEGOSZTÁS

KAPCSOLATFELVÉTEL

Küldés

Az üzenetet sikeresen elküldtük!
Hiba történt!
INGATLAN ADATAI

Ingatlan jellege

családi ház

Belső terület

133 m²

Telek terület

681 m²

Tájolás

nyugat

Építési állapot

használt

Építési mód

tégla

Szobák száma

5 szoba

Szobák elhelyezkedése

külön nyílik min. 2 szoba

Terasz

25 m²

Épület szintje

1.

Ingatlan állapot

kívül: jó
belül: jó

Klíma

van

Ablak szerkezete

2 rétegű thermoplan

Fűtés

gázkazán

Komfort

összkomfort

Közműállapot

csatorna: bekötve
gáz: bekötve
villany: bekötve
víz: bekötve

Energetika

nincs megadva

Az időpont kérés naptár ikonja
HTML
Az időpont kérés naptár ikonja
PDF

Hasonló ingatlan hírdetések

Eladó családi ház, vagy kertes ház hirdetést keres Geresdlak területén?
Jelenleg nincsenek hasonló aktuális ajánlatok Geresdlak településen.
Tekintse meg további Baranya megyei ajánlatainkat !

eladó családi ház, Mohács

eladó családi ház

Baranya megye, Mohács
Felújított családi ház eladó Mohács belvárosához közel – azonnal költözhető állapotban! Mohácson, a belváros közelében kínálunk megvételre egy folyamatosan karbantartott, felújított családi házat, am...
Belső terület
134 m²
Telek terület
521 m²
Szobák
4

58 M Ft

eladó családi ház, Lánycsók

eladó családi ház

Baranya megye, Lánycsók
Lánycsókon, a falu központjában eladó egy jó adottságokkal rendelkező családi ház! A település ideális választás azok számára, akik nyugodt, falusias környezetben szeretnének élni, ugyanakkor fontos ...
Belső terület
87 m²
Telek terület
1238 m²
Szobák
3

35 M Ft

eladó családi ház, Mohács

eladó családi ház

Baranya megye, Mohács
Mohácson, a belvároshoz közel, felújítandó, jó adottságokkal rendelkező családi ház eladó. Az ingatlan tégla falazatú, stabil szerkezetű, repedés és vizesedés nem tapasztalható, így kiváló alapot n...
Belső terület
102 m²
Telek terület
445 m²
Szobák
2

29.9 M Ft

eladó új építésű családi ház, Pécs

eladó új építésű családi ház

Baranya megye, Pécs, (Donátus), Varjú dűlő
Eladásra kínálok Pécs-Donátuson, a Varjú dülőben egy újépítésű családi házat. Az ingatlan építés alatt áll, tervezett átadás: 2026.12.31 Paraméterek: Telek mérete 700 m2, Ingatlan mérete 1...
Belső terület
108 m²
Telek terület
700 m²
Szobák
4

149.9 M Ft

eladó családi ház, Lánycsók

eladó családi ház

Baranya megye, Lánycsók
Lánycsókon, nyugodt környezetben családi ház eladó, sok lehetőséggel! Lánycsók csendes, falusias hangulatú település, ahol a mindennapi élethez szükséges minden fontos intézmény – iskola, óvoda, bolt...
Belső terület
140 m²
Telek terület
4022 m²
Szobák
4

29 M Ft

eladó sorház, Mohács

eladó sorház

Baranya megye, Mohács
Mohácson, a belváros közelében – csendes, nyugodt környezetben – felújított sorházi ingatlan eladó! Ha egy olyan otthont keres, ahová szinte azonnal költözhet, miközben élvezheti a város közelségét é...
Belső terület
107 m²
Telek terület
493 m²
Szobák
4

60 M Ft

eladó családi ház, Mohács

eladó családi ház

Baranya megye, Mohács
Mohácson nagy potenciálú családi ház eladó – alakítsa saját otthonává! Mohács egyik kedvelt, nyugodt részén kínálunk megvételre egy kiváló adottságokkal rendelkező családi házat, amely remek lehető...
Belső terület
100 m²
Telek terület
999 m²
Szobák
4

32 M Ft

eladó családi ház, Babarc

eladó családi ház

Baranya megye, Babarc
Babarcon felújítandó családi ház eladó – jó adottságokkal, kedvező elhelyezkedéssel Babarcon, Baranya vármegye keleti részén kínálunk megvételre egy felújítandó lakóházat. A település mindössze 12 ...
Belső terület
77 m²
Telek terület
1221 m²
Szobák
3

9.7 M Ft

Baranya megye - Geresdlak
Baranya megye - Geresdlak
Baranya megye - Geresdlak
Baranya megye - Geresdlak
Baranya megye - Geresdlak
Baranya megye - Geresdlak
Baranya megye - Geresdlak
Baranya megye - Geresdlak
Baranya megye - Geresdlak
Baranya megye - Geresdlak
Baranya megye - Geresdlak
Baranya megye - Geresdlak
Baranya megye - Geresdlak
Baranya megye - Geresdlak
Baranya megye - Geresdlak
Baranya megye - Geresdlak
Baranya megye - Geresdlak
Baranya megye - Geresdlak
Baranya megye - Geresdlak
Baranya megye - Geresdlak
Baranya megye - Geresdlak
Baranya megye - Geresdlak
Baranya megye - Geresdlak
Baranya megye - Geresdlak
Baranya megye - Geresdlak
Baranya megye - Geresdlak