Eladó ház - Dunaújváros

KAPCSOLAT
Irmainé Zsuzsanna


+36 70 941

irmaine.zsuzsa@

Az időpont kérés naptár ikonja
IDŐPONTOT KÉREK
A visszahívás kérés telefon ikonja egy azt körbe ölelő nyíllal
VISSZAHÍVÁST KÉREK
Ajánlom egy ismerősömnek ikon
AJÁNLOM EGY ISMERŐSÖMNEK
Facebook megosztás ikon
MEGOSZTÁS

KAPCSOLATFELVÉTEL

Küldés

Az üzenetet sikeresen elküldtük!
Hiba történt!
INGATLAN ADATAI

Ingatlan jellege

családi ház

Belső terület

270 m²

Telek terület

599 m²

Tájolás

délnyugat

Építési állapot

használt

Építési mód

tégla

Szobák száma

5 szoba

Épület szintje

3.

Épült

1982

Ingatlan állapot

kívül: átlagos
belül: felújítandó

Ablak szerkezete

3 rétegű thermoplan

Fűtés

cirko

Komfort

duplakomfort

Közműállapot

csatorna: bekötve
gáz: bekötve
villany: bekötve
víz: bekötve

Energetika

E:

Az időpont kérés naptár ikonja
HTML
Az időpont kérés naptár ikonja
PDF
Eladó ház
Ingatlan azonosító:
4146_ko

Fejér megye, Dunaújváros, (Újtelep), Kölcsey Ferenc utca

Irányár

81 M Ft
(300 E Ft/㎡)

Szobák

5 szoba

Terület

270 m²

Telek terület

599 m²
INGATLAN LEÍRÁSA
Kétgenerációs, duplakomfortos családi ház különálló épülettel – lehetőségekben gazdag ingatlan

Dunaújvárosban - Újtelepen kínálunk eladásra egy kétgenerációs, duplakomfortos családi házat, amely nem kész megoldás, hanem komoly potenciált kereső vevőknek ideális választás.

3 szintes családi ház? - Igen!
Ez az ingatlan nem tökéletes – de éppen ettől különleges. Azoknak szól, akik meglátják benne az értéket, és nem riadnak vissza attól, hogy saját elképzeléseikre formálják.

Az ingatlan azonnal nem költözhető, felújítást és korszerűsítést igényel, ugyanakkor átalakítással több lakóegység, üzleti vagy befektetési célú hasznosítás is könnyen megvalósítható.

Amit az ingatlan kínál:
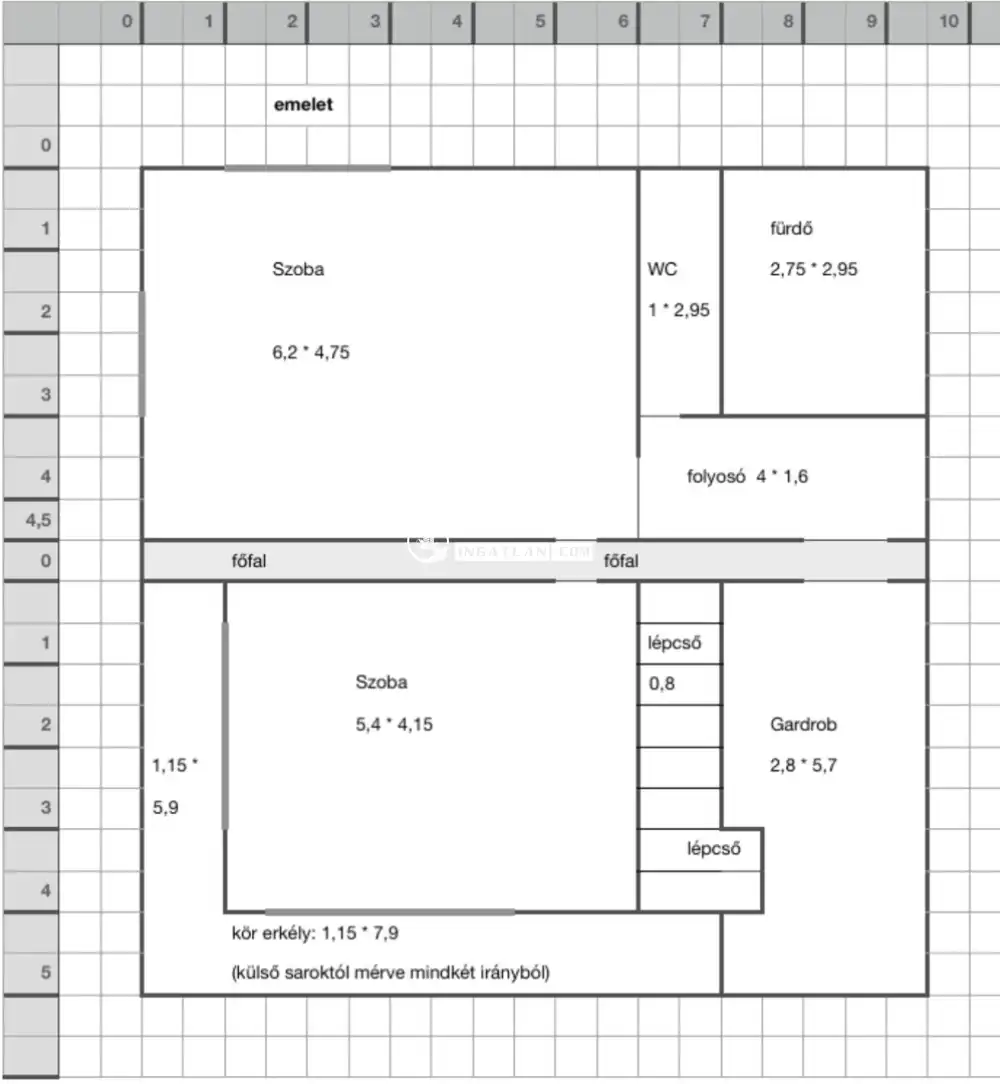
-280 m² lakótér, jól alakítható belső elrendezéssel
(5 szoba, 2 konyha, több fürdőszoba, gardrób, spájz, 3 terasz)
-Kétgenerációs kialakítás lehetősége, akár teljesen szeparált lakrészekkel
-Négy külön bejárat – a földszinten üzlethelyiség, iroda, rendelő is kialakítható
- Földszinti garázs
-599 m²-es, körbekerített kert
- Udvarban különálló, ~70 m²-es épület, amely felújítással
önálló lakóházként vagy vállalkozás, iroda, üzlet céljára is hasznosítható

Műszaki jellemzők:
- 1982-ben épült, tégla szerkezetű
- Tető felújítva, még 25 év garanciával
- Hang- és hőszigetelt nyílászárók 3 éve cserélve
- Gázkazán fűtés
- 3 fázisú villanyhálózat

Az ingatlan irányára: 81.000.000 Ft

Elhelyezkedés:
Csendes, rendezett környezet, mégis kiváló infrastruktúra:
Obi, Tesco a közelben, a belváros gyorsan és könnyen elérhető.

Képzeld el, hogy egy ingatlanon belül együtt, mégis külön élhet két generáció – vagy hogy az utcafronti részen üzletet, irodát működtetsz, miközben a család kényelmesen él a felső szinteken.

Ha meglátod benne a lehetőséget, ne hagyd ki!
Írj üzenetet vagy hívj bizalommal további információért és megtekintésért.

Irodánk teljes körű szakmai tanácsadással, ingyenes hitelügyintézéssel van segítségedre, profi ügyvédi háttérrel rendelkezik.
Kérdése van? Szeretné megnézni az ingatlant?
Keressen bátran, a megadott elérhetőségen, akár hétvégén is!

INGATLAN ADATAI

Ingatlan jellege
családi ház
Belső terület
270 m²
Telek terület
599 m²
Tájolás
délnyugat
Építési állapot
használt
Építési mód
tégla
Szobák száma
5 szoba
Épület szintje
3.
Épült
1982
Ingatlan állapot
kívül: átlagos
belül: felújítandó
Ablak szerkezete
3 rétegű thermoplan
Fűtés
cirko
Komfort
duplakomfort
Közműállapot
csatorna: bekötve
gáz: bekötve
villany: bekötve
víz: bekötve
Energetika
E:
TÉRKÉP

Fejér megye, Dunaújváros, Kölcsey Ferenc utca

Hitelkalkulátor


KAPCSOLAT
Irmainé Zsuzsanna
Irmainé Zsuzsanna


+36 70 941 9698

irmaine.zsuzsa@komplexingatlan.com

KAPCSOLAT
Irmainé Zsuzsanna

+36 70 941

irmaine.zsuzsa@

Az időpont kérés naptár ikonja
IDŐPONTOT KÉREK
A visszahívás kérés telefon ikonja egy azt körbe ölelő nyíllal
VISSZAHÍVÁST KÉREK
Ajánlom egy ismerősömnek ikon
AJÁNLOM EGY ISMERŐSÖMNEK
Facebook megosztás ikon
MEGOSZTÁS

KAPCSOLATFELVÉTEL

Küldés

Az üzenetet sikeresen elküldtük!
Hiba történt!
INGATLAN ADATAI

Ingatlan jellege

családi ház

Belső terület

270 m²

Telek terület

599 m²

Tájolás

délnyugat

Építési állapot

használt

Építési mód

tégla

Szobák száma

5 szoba

Épület szintje

3.

Épült

1982

Ingatlan állapot

kívül: átlagos
belül: felújítandó

Ablak szerkezete

3 rétegű thermoplan

Fűtés

cirko

Komfort

duplakomfort

Közműállapot

csatorna: bekötve
gáz: bekötve
villany: bekötve
víz: bekötve

Energetika

E:

Az időpont kérés naptár ikonja
HTML
Az időpont kérés naptár ikonja
PDF

Hasonló ingatlan hírdetések

Eladó családi ház, vagy kertes ház hirdetést keres Dunaújváros területén?
Tekintse meg további ajánlatainkat!

eladó családi ház, Dunaújváros

eladó családi ház

Fejér megye, Dunaújváros, Béke városrész
Az ÁlomOtthon Ingatlan iroda megvételre kínálja ezt a Dunaújváros Kertvárosában található, téglából épült, Kádárkocka típusú családi házat! Az ingatlan egy 400 nm-es telken helyezkedik el, a lakóte...
Belső terület
90 m²
Telek terület
400 m²
Szobák
2

65 M Ft

garázzsal
Garázzsal
eladó családi ház, Dunaújváros

eladó családi ház

Többgenerációs ház

Fejér megye, Dunaújváros, Újtelep
Kivételes lehetőség Dunaújváros Újtelepének egyik legcsendesebb részén – többgenerációs, prémium adottságú családi ház eladó Dunaújváros Újtelep városrészében kínálunk megvételre egy impozáns megje...
Belső terület
296 m²
Telek terület
160 m²
Szobák
4+5

120 M Ft

eladó családi ház, Dunaújváros

eladó családi ház

Fejér megye, Dunaújváros, Északi lakópark
Dunaújvárosi KIS Ingatlaniroda kínálatában: Eladó családi ház Dunaújváros – Északi lakóparkban! Dunaújváros egyik legkedveltebb részén, az Északi lakóparkban kínálunk megvételre egy 2005-ben épült...
Belső terület
145 m²
Telek terület
1257 m²
Szobák
3

158 M Ft

145 M Ft

eladó nyaraló, Dunaújváros

eladó nyaraló

Fejér megye, Dunaújváros, Pálhalma
Kiváló lehetőség Dunaújvárosban – zártkerti ingatlan eladó! Az ÁlomOtthon Ingatlan kínálatában megvételre kínáljuk ezt a Dunaújváros, régi Vásártér közelében található, belterületi zártkerti ingatl...
Belső terület
20 m²
Telek terület
822 m²
Szobák
1

15.9 M Ft

eladó családi ház, Dunaújváros

eladó családi ház

Fejér megye, Dunaújváros, Újtelep
Exkluzív, prémium családi rezidencia Dunaújváros Újtelepének csendes utcájában!! ÁlomOtthon Ingatlan iroda kínálja megvételre ezt a Dunaújváros egyik legkedveltebb, nyugodt környezetében Újtelepen,...
Belső terület
145 m²
Telek terület
1000 m²
Szobák
4

170 M Ft

eladó családi ház, Dunaújváros

eladó családi ház

Fejér megye, Dunaújváros, Csillagdomb
Napelemes, felújított családi ház Dunaújváros Csillagdombjához közel, különálló lakrésszel! Ideális többgenerációs együttélésre vagy befektetésre, alacsony rezsivel, parkosított kerttel. Az ÁlomOt...
Belső terület
85 m²
Telek terület
692 m²
Szobák
3

63.9 M Ft

azonnal költözhető
Azonnal költözhető
eladó családi ház, Dunaújváros

eladó családi ház

Fejér megye, Dunaújváros, (Óváros), Petőfi Sándor utca
Ha szeretne egy igazi, békés otthont, ahol még érezhető a régi parasztházak hangulata, akkor ezt a Dunaújvárosban található, Petőfi Sándor utcai ingatlant érdemes megnéznie. A ház Budapesttől mindössz...
Belső terület
70 m²
Telek terület
2279 m²
Szobák
2+1

42.9 M Ft

azonnal költözhető
Azonnal költözhető
eladó családi ház, Dunaújváros

eladó családi ház

Fejér megye, Dunaújváros, Barátság városrész
ELADÓ EGY KITŰNŐ ÁLLAPOTÚ CSALÁDI HÁZ 5 PERCRE A VÁROSKÖZPONTTÓL! Dunaújváros közkedvelt kertvárosias környezetében, a Barátság városrészben eladásra kínálunk egy kiváló adottságokkal rendelkező 3 ...
Belső terület
120 m²
Telek terület
432 m²
Szobák
3

82.5 M Ft

Fejér megye - Dunaújváros
Fejér megye - Dunaújváros
Fejér megye - Dunaújváros
Fejér megye - Dunaújváros
Fejér megye - Dunaújváros
Fejér megye - Dunaújváros
Fejér megye - Dunaújváros
Fejér megye - Dunaújváros
Fejér megye - Dunaújváros
Fejér megye - Dunaújváros
Fejér megye - Dunaújváros
Fejér megye - Dunaújváros
Fejér megye - Dunaújváros
Fejér megye - Dunaújváros
Fejér megye - Dunaújváros
Fejér megye - Dunaújváros