KAPCSOLATFELVÉTEL
Ingatlan jellege
családi ház
Belső terület
95 m²
Telek terület
720 m²
Építési állapot
használt
Építési mód
- nem meghatározott -
Szobák száma
0 szoba
Ingatlan állapot
 
										kívül: jó
belül: jó									
Fűtés
egyéb
Komfort
komfort
Közműállapot
 
								csatorna: bekötve										
								gáz: bekötve										
								villany: bekötve										
								víz: bekötve										
									
Borsod-Abaúj-Zemplén megye, Alsószuha
Irányár
(135.79 E Ft/㎡)
Szobák
Emelet
Terület
Telek terület
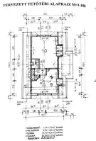
A tervezett lakóépület oldalhatáron álló földszint + tetőteres, útra merőleges gerincű csonka kontyolt nyeregtetővel.
A lakás nettó alapterülete: 56,05+38,95 m2 (fölszint+tetőtér)
A tervrajzok és az engedélyek rendelkezésre állnak.
A telken az ipari áram kialakításra került.
Megtekintés előre egyeztetett időpontban lehetséges.
belül: jó
gáz: bekötve
villany: bekötve
víz: bekötve
Borsod-Abaúj-Zemplén megye, Alsószuha
Hitelkalkulátor
 
							+36204552205
gammaingatlan@gmail.com
KAPCSOLATFELVÉTEL
Ingatlan jellege
családi ház
Belső terület
95 m²
Telek terület
720 m²
Építési állapot
használt
Építési mód
- nem meghatározott -
Szobák száma
0 szoba
Ingatlan állapot
 
									kívül: jó
belül: jó								
Fűtés
egyéb
Komfort
komfort
Közműállapot
 
							csatorna: bekötve									
							gáz: bekötve									
							villany: bekötve									
							víz: bekötve									
								
Energetika
 
								 
											 
																 
																 
																 
																 
																 
																 
																 
																 
																 
										 
						
					 
						
					 
						
					 
						
					 
						
					 
						
					 
						
					 
						
					 
						
					